EasyManua.ls Logo

Wolf IG15/S - Page 13

Wolf IG15/S
120 pages
Print Icon
To Next Page IconTo Next Page
To Next Page IconTo Next Page
To Previous Page IconTo Previous Page
To Previous Page IconTo Previous Page
Loading...
E SERIES BUILT-IN OVENS
13
Refer to installation
instructions shipped
with each Wolf
product for detailed
specifications.
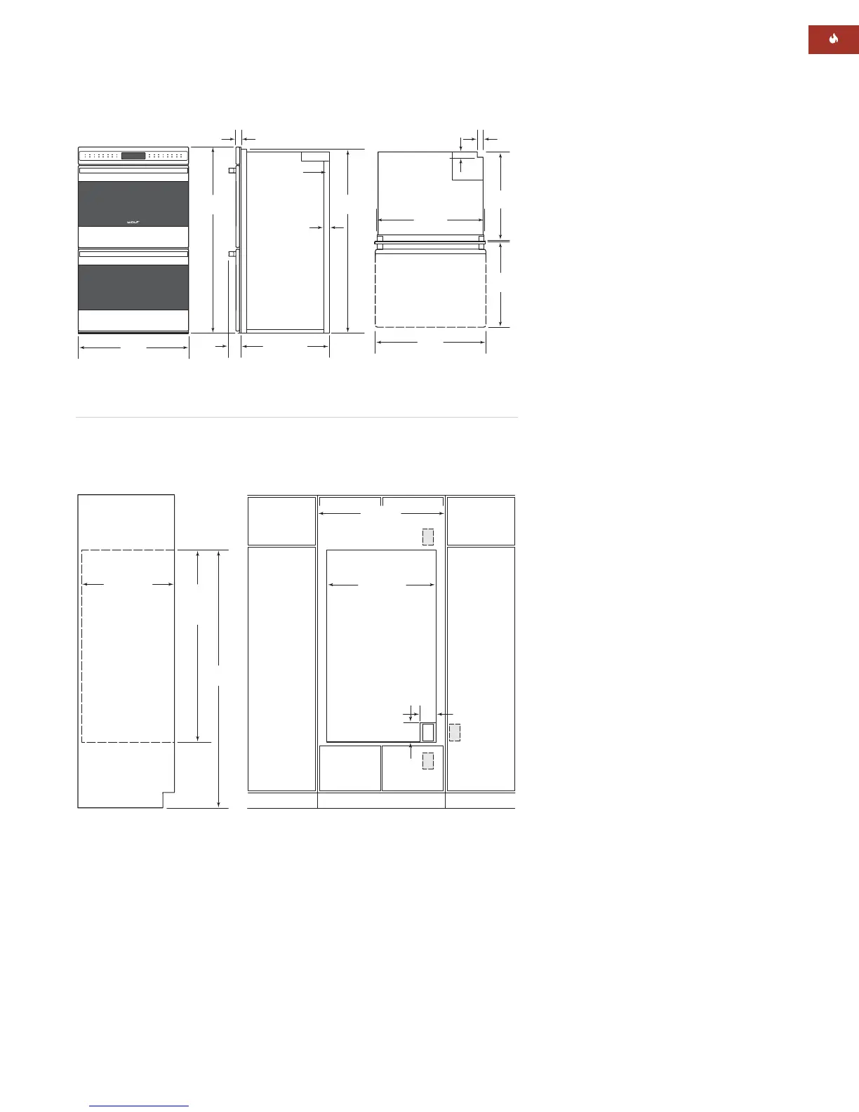
SPECIFICATIONS
E Series Built-In Double Oven
Overall Width 29
7
/8" (759)
Overall Height 50
3
/8" (1280)
Overall Depth 23
3
/4" (603)
Door Clearance 22" (559)
Overall Oven Interior
Capacity (per oven) 4.5 cu ft (127 L)
Overall Interior Dim 25" x 16
1
/2" x 19"
(W x H x D) (635 x 419 x 483) each
Usable Interior Dim 21
1
/2"x 16
1
/2"x 16
3
/8"
(W x H x D) (546 x 419 x 416) each
Min Cabinet Width
Standard 30" (762)
Flush Inset 33" (838)
Min Cabinet Depth
Standard 24" (610)
Flush Inset 25" (635)
Min Base Support 400 lbs (181 kg)
Opening Width 28
1
/2" (724)
Flush Inset Width 30
3
/8" (772) min
Opening Height 49
5
/8" (1260)
Flush Inset Height 50
15
/16" (1294) min
Trim Overlaps
5
/8" (16) top
1
/8" (3) bottom
3
/4" (19) each side
Electrical Supply 240/208 V AC, 60 Hz
50 amp circuit
Conduit 5' (1.5 m) flexible 3-wire
Electrical Rating 8.9 kW at 240 V
6.7 kW at 208 V
Total Amps 37
Shipping Weight 466 lbs (211 kg)
MODEL OPTIONS
E Series Built-In Double Oven
Framed DO30-2F/S
Unframed DO30-2U/S
5"
(127)
E
28
1
/2" (724)
OPENING WIDTH
4"
(102)
E
E
E
33"
(838)
RECOMMENDED CABINET WIDTH
30"min (762)
49
5
/8"
(1260)
OPENING
HEIGHT
24"min (610)
OPENING DEPTH
67"typical
(1702)
ELECTRICAL LOCATION
WITHIN OPENING
APPLIES ONLY TO
CABINETS DEEPER
THAN 24" (610)
23
3
/4" (603)
BEHIND FRAME
50
3
/8"
(1280)
49
1
/2"
(1257)
28
1
/4"
(718)
29
7
/8"
(759)
23
3
/4"
(603)
OPEN OVEN DOOR
TOP VIEW
2
5
/8"
(67)
22"
(559)
1
1
/4"
(32)
1" (25)
1
7
/8"
(48)
1
7
/8"
(48)
RIGHT SIDE VIEW
29
7
/8"
(759)
CONDUIT
CHANNEL
OVERALL DIMENSIONS
E Series Built-In Double Oven
INSTALLATION SPECIFICATIONS
E Series Built-In Double Oven
Standard Installation
Unit dimensions may vary to ±
1
/
8
" (3).
INSTALLATION OPTIONS
Wolf E Series built-in ovens may be used in a
standard installation, where the face trim
overlaps stiles and rails, or in a flush inset
installation with the front of the oven flush
with surrounding cabinetry. Refer to the
following illustrations.
IMPORTANT NOTE: Unless you are using
cabinets deeper than 24" (610) for a standard
installation or 25" (635) for a flush inset instal-
lation,
it is recommended that the electrical
supply be placed in an adjacent cabinet within
reach of the conduit. Choose the location
shown in the illustration that best suits your
installation.

Other manuals for Wolf IG15/S

Related product manuals