EasyManua.ls Logo

Wolf IG15/S - Page 17

Wolf IG15/S
120 pages
Print Icon
To Next Page IconTo Next Page
To Next Page IconTo Next Page
To Previous Page IconTo Previous Page
To Previous Page IconTo Previous Page
Loading...
WOLF MICROWAVE OVENS
17
24"min
(610)
27
3
/16"
(691)
28
1
/2" (724)
5"
(127)
4"
(102)
E
33"
(838)
RECOMMENDED CABINET WIDTH
30"min (762)
27
1
/2" (699)
OPENING WIDTH
20
1
/8"min
(511)
OPENING DEPTH
18
7
/8"
(479)
OPENING
HEIGHT
1"min
(25)
30-INCH OVEN
ROUGH OPENING
33" (838)
RECOMMENDED CABINET WIDTH
30"min (762)
27
1
/2" (699)
OPENING WIDTH
36" (914)
STANDARD
FLOOR TO
COUNTER
HEIGHT
5"
(127)
4"
(102)
E
20
1
/8"min
(511)
OPENING DEPTH
18
7
/8"
(479)
OPENING
HEIGHT
29
7
/8" (759)
30" (762) TRIM WIDTH
24
3
/4" (629)
FREE-STANDING
WIDTH
14
7
/8"
(378)
FREE-STANDING
HEIGHT
35
5
/8" (905)
36" (914) TRIM WIDTH
20
1
/8" (511)
BEHIND FRAME
19
7
/8"
(505)
TRIM
HEIGHT
1
1
/4" (32) 1
1
/4" (32)
2
11
/16"
(68)
2
11
/16"
(68)
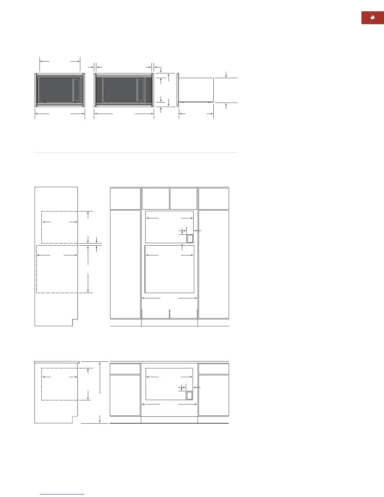
OVERALL DIMENSIONS
Model MWC24 with L Series Trim
INSTALLATION SPECIFICATIONS
Model MWC24 with 30" (762) L Series Trim
Wall Application
Undercounter Installation
IMPORTANT NOTE: For installation of the convection
microwave with 36" (914) L Series trim, add 6" (152) to
the overall width dimensions shown in the illustrations.
Unit dimensions may vary to ±
1
/
8
" (3).
Refer to installation
instructions shipped
with each Wolf
product for detailed
specifications.
SPECIFICATIONS
Model MWC24 with 30" (762) L Series Trim
Overall Width 29
7
/8" (759)
Overall Height 19
7
/8" (505)
Overall Depth 20
1
/8" (511)
Cabinet Width 33" (838) rec
30" (762) min
Min Base Support 125 lbs (57 kg)
Opening Width 27
1
/2" (699)
Opening Height 18
7
/8" (479)
Opening Depth 20
1
/8" (511) min
Trim Overlaps
5
/16" (8) top
13
/16" (21) bottom
1
3
/16" (30) each side
SPECIFICATIONS
Model MWC24
Convection Microwave (freestanding)
Overall Width 24
3
/4" (629)
Overall Height 14
7
/8" (378)
Overall Depth 20
1
/8" (511)
Interior Oven Cap 1.5 cu ft (42 L)
Interior Oven Dim 16
1
/8"x 9
5
/8"x 16
1
/8"
(W x H x D) (410 x 244 x 410)
Electrical Supply 120 V AC, 60 Hz
15 amp circuit
Power 900 W
Power Requirement 1.6 kW
(with convection)
Power Cord 3
1
/2' (1.1 m) 3-prong
Shipping Weight 68 lbs (31 kg)
SPECIFICATIONS
Model MWC24 with 36" (914) L Series Trim
Overall Width 35
5
/8" (905)
Overall Height 19
7
/8" (505)
Overall Depth 20
1
/8" (511)
Cabinet Width 39" (991) rec
36" (914) min
Min Base Support 125 lbs (57 kg)
Opening Width 33
3
/8" (854)
Opening Height 18
7
/8" (479)
Opening Depth 20
1
/8" (511) min
Trim Overlaps
5
/16" (8) top
13
/16" (21) bottom
1
3
/16" (30) each side
Unit dimensions may vary to ±
1
/
8
" (3).

Other manuals for Wolf IG15/S

Related product manuals