EasyManua.ls Logo

Wolf IG15/S - Page 18

Wolf IG15/S
120 pages
Print Icon
To Next Page IconTo Next Page
To Next Page IconTo Next Page
To Previous Page IconTo Previous Page
To Previous Page IconTo Previous Page
Loading...
SPECIFICATIONS
Model MWC24 with 27" (686) E Series Trim
Overall Width 26
7
/8" (683)
Overall Height 19
7
/8" (505)
Overall Depth 20
1
/8" (511)
Cabinet Width 30" (762) rec
Min Base Support 125 lbs (57 kg)
Opening Width 25
1
/4" (641)
Opening Height 18
7
/8" (479)
Opening Depth 20
1
/8" (511) min
Trim Overlaps
13
/16" (21) top
13
/16" (21) bottom
5
/8" (16) each side
Unit dimensions may vary to ±
1
/
8
" (3).
SPECIFICATIONS
Model MWC24 with 30" (762) E Series Trim
Overall Width 29
7
/8" (759)
Overall Height 19
7
/8" (505)
Overall Depth 20
1
/8" (511)
Cabinet Width 33" (838) rec
30" (762) min
Min Base Support 125 lbs (57 kg)
Opening Width 27
1
/2" (699)
Opening Height 18
7
/8" (479)
Opening Depth 20
1
/8" (511) min
Trim Overlaps
5
/16" (8) top
13
/16" (21) bottom
1
3
/16" (30) each side
Dimensions in
parentheses are in
millimeters unless
otherwise specified.
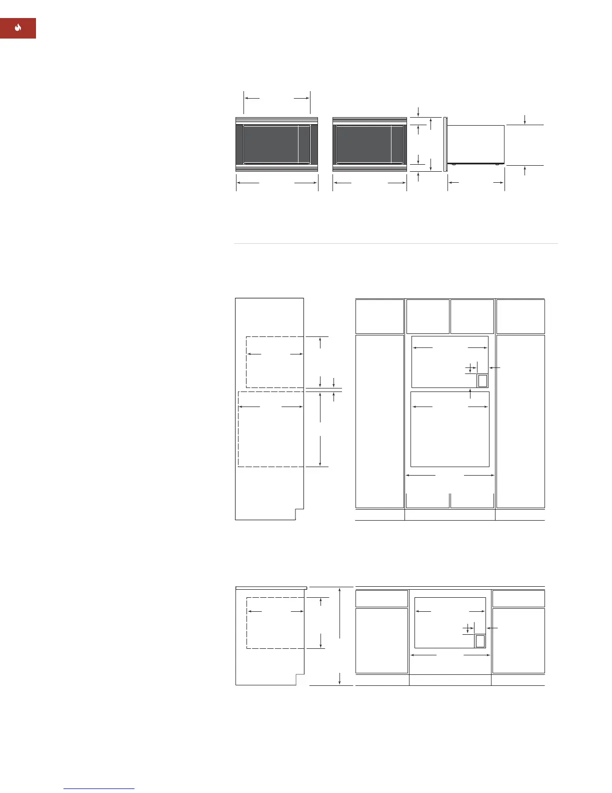
WOLF MICROWAVE OVENS
18
24"min
(610)
27
3
/16"
(691)
28
1
/2" (724)
5"
(127)
4"
(102)
E
33"
(838)
RECOMMENDED CABINET WIDTH
30"min (762)
27
1
/2" (699)
OPENING WIDTH
20
1
/8"min
(511)
OPENING DEPTH
18
7
/8"
(479)
OPENING
HEIGHT
1
7
/16"min
(37)
30-INCH OVEN
ROUGH OPENING
30" (762)
RECOMMENDED
CABINET WIDTH
25
1
/4" (641)
OPENING WIDTH
36" (914)
STANDARD
FLOOR TO
COUNTER
HEIGHT
5"
(127)
4"
(102)
E
20
1
/8"min
(511)
OPENING DEPTH
18
7
/8"
(479)
OPENING
HEIGHT
29
7
/8" (759)
30" (762) TRIM WIDTH
24
3
/4" (629)
FREE-STANDING
WIDTH
14
7
/8"
(378)
FREE-STANDING
HEIGHT
26
7
/8" (683)
27" (686) TRIM WIDTH
20
1
/8" (511)
BEHIND FRAME
19
7
/8"
(505)
TRIM
HEIGHT
2
11
/16"
(68)
2
11
/16"
(68)
OVERALL DIMENSIONS
Model MWC24 with E Series Trim
INSTALLATION SPECIFICATIONS
Model MWC24 with 30" (762) E Series Trim
Wall Application
Model MWC24 with 27" (686) E Series Trim
Undercounter Installation
Unit dimensions may vary to ±
1
/
8
" (3).

Other manuals for Wolf IG15/S

Related product manuals