EasyManua.ls Logo

Wolf IG15/S - Page 29

Wolf IG15/S
120 pages
Print Icon
To Next Page IconTo Next Page
To Next Page IconTo Next Page
To Previous Page IconTo Previous Page
To Previous Page IconTo Previous Page
Loading...
WOLF WARMING DRAWERS
29
29
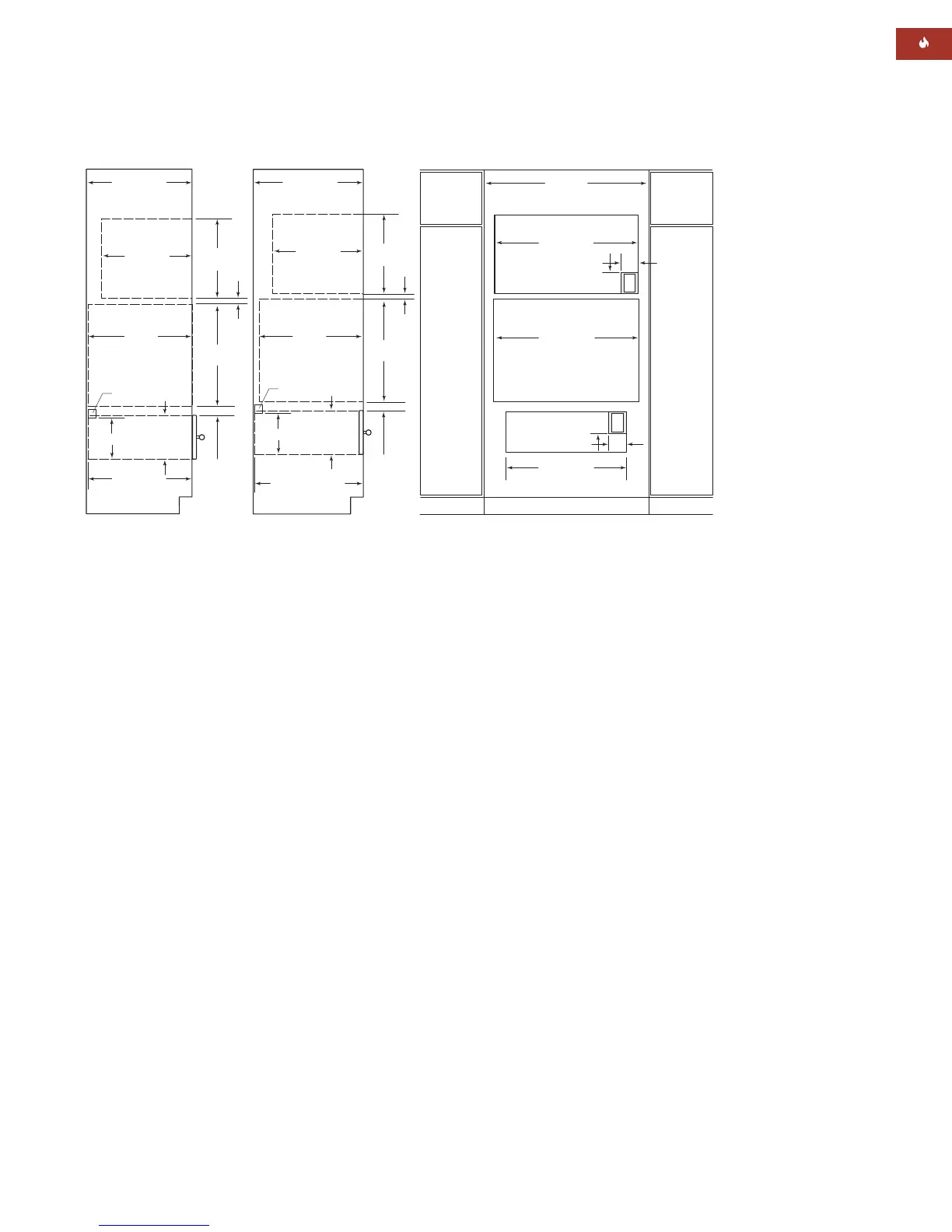
1
/2" (749)
WARMING DRAWER
OPENING WIDTH
5"
(127)
4"
(102)
E
24"min
(610)
NOTE: Refer to the 36" (914) built-in single oven specifications for electrical location.
24"min
(610)
20
1
/8"min
(511)
20
1
/8"min
(511)
33
3
/8" (854)
MICROWAVE
OPENING WIDTH
34
1
/2" (876 )
36-INCH OVEN
OPENING WIDTH
5"
(127)
4"
(102)
E
39" (991)
RECOMMENDED CABINET WIDTH
36"min (914)
24
1
/16"
(611)
1"min
(25)
18
11
/16"
(475)
24
1
/16"
(611)
1"min
(25)
18
11
/16"
(475)
The width of the custom panel for the warming drawer with integrated drawer front will vary according to the specific installation, but the rough opening width will remain 29
1
/2" (749).
OVERLAY APPLICATION
*Dimension may increase depending on the size of the drawer front panel.
1
1
/2"min*
(38)
24" min (610)
OPENING DEPTH
10
1
/4"
(260)
OPENING
HEIGHT
9
7
/8"(251)
2"(51) x 2"(51)
ANTI-TIP BLOCK
FLUSH INSET APPLICATION
25" min (635)
CABINET DEPTH
1
1
/2"min*
(38)
24" (610) + THICKNESS
OF DRAWER FACE
FOR OPENING DEPTH
10
1
/4"
(260)
OPENING
HEIGHT
9
7
/8"(251)
2"(51) x 2"(51)
ANTI-TIP BLOCK
24" min (610)
CABINET DEPTH
INSTALLATION
OPTIONS
Model WWD30 with inte-
grated drawer front may
be installed in combination
with a 36" (914) L Series
single oven and Model
MWC24 with 36" (914) L
Series trim kit. Refer to
the L Series built-in oven
section for installation
specifications for the
oven.
Keep in mind that the
width of the custom panel
for the warming drawer
with integrated drawer
front will vary according
to the specific installation.
Refer to the installation
instructions provided with
each microwave trim kit
for detailed specifications.
Dimensions will vary
according to the specific
installation.
INSTALLATION SPECIFICATIONS
Model WWD30 with Integrated Drawer Front
Installation with 36" (914) L Series Single Oven and Model MWC24 with 36" (914) L Series Trim
Refer to installation
instructions shipped
with each Wolf
product for detailed
specifications.

Related product manuals