EasyManua.ls Logo

Wolf IG15/S - Page 28

Wolf IG15/S
120 pages
Print Icon
To Next Page IconTo Next Page
To Next Page IconTo Next Page
To Previous Page IconTo Previous Page
To Previous Page IconTo Previous Page
Loading...
Dimensions in
parentheses are in
millimeters unless
otherwise specified.
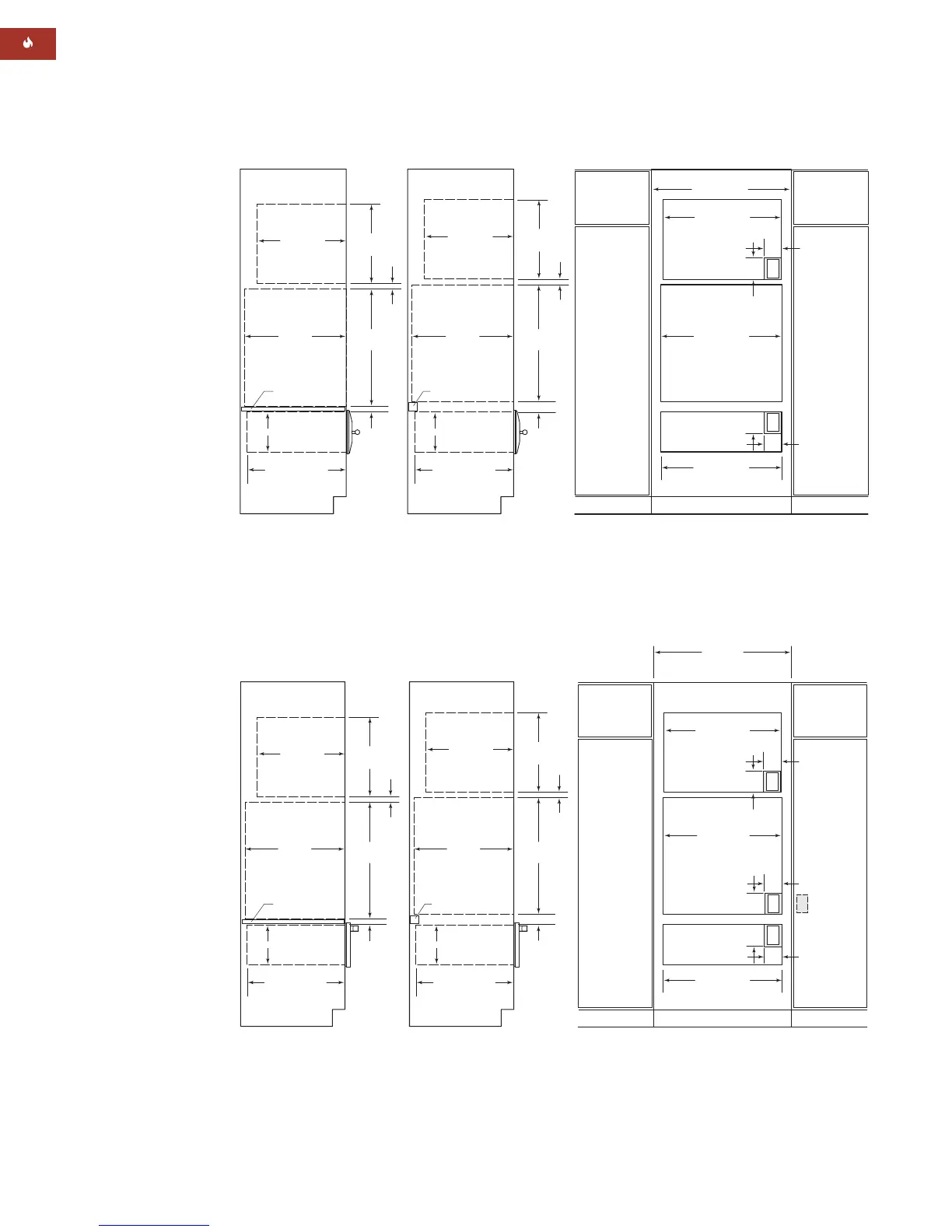
WOLF WARMING DRAWERS
28
28
5
/8" (727)
WARMING DRAWER
OPENING WIDTH
28
1
/2" (724)
30-INCH OVEN
OPENING WIDTH
5"
(127)
4"
(102)
E
2
3
/8"
(60)
27
3
/16"
(691)
24"min
(610)
27
3
/16"
(691)
NOTE: Refer to the 30" (762) built-in single oven specifications for electrical location.
2"(51) x 2"(51)
ANTI-TIP BLOCK
9
1
/8" (232)
OPENING
HEIGHT
23
7
/8"min (606)
OPENING DEPTH
24"min
(610)
9
1
/8" (232)
OPENING
HEIGHT
23
7
/8"min (606)
OPENING DEPTH
ANTI-TIP BLOCK APPLICATIONPLATFORM APPLICATION
7
/8" (22)
PLATFORM
7
/8"
(22)
1"min
(25)
20
1
/8"min
(511)
18
11
/16"
(475)
1"min
(25)
20
1
/8"min
(511)
18
11
/16"
(475)
27
1
/2" (699)
CONVECTION MICROWAVE
OPENING WIDTH
5"
(127)
4"
(102)
E
33"
(838) REC CABINET WIDTH
30"min (762)
INSTALLATION
OPTIONS
Model WWD30 with
L Series drawer front may
be installed in combination
with a 30" (762) L Series
single oven and Model
MWC24 with 30" (762)
L Series trim. Refer to the
L Series built-in oven
section for installation
specifications for the oven.
Model WWD30 with
E Series drawer front may
be installed in combination
with a 30" (762) E Series
single oven and Model
MWC24 with 30" (762)
E Series trim. Refer to
the E Series built-in oven
section for installation
specifications for the oven.
Refer to the installation
instructions provided with
each microwave trim kit for
detailed specifications.
Dimensions will vary
according to the specific
installation.
INSTALLATION SPECIFICATIONS
Model WWD30 with L Series Drawer Front
Installation with 30" (762) L Series Single Oven and Model MWC24 with 30" (762) L Series Trim
28
5
/8" (727)
WARMING DRAWER
OPENING WIDTH
5"
(127)
4"
(102)
E
2
3
/8"
(60)
27
3
/16"
(691)
24"min
(610)
27
3
/16"
(691)
NOTE: Unless you are using cabinets deeper than 24" (610), it is recommended that the
electrical supply for the oven be placed in an adjacent cabinet within reach of the conduit.
2"(51) x 2"(51)
ANTI-TIP BLOCK
9
1
/8" (232)
23
7
/8"min (606)
24"min
(610)
9
1
/8" (232)
23
7
/8"min (606)
ANTI-TIP BLOCK APPLICATIONPLATFORM APPLICATION
7
/8" (22)
PLATFORM
7
/8"
(22)
28
1
/2" (724)
OVEN OPENING WIDTH
5"
(127)
4"
(102)
E E
ELECTRICAL LOCATION
WITHIN OPENING
APPLIES ONLY TO
CABINETS DEEPER
THAN 24" (610)
1
7
/16"
min (37)
20
1
/8"min
(511)
18
11
/16"
(475)
1
7
/16"
min (37)
20
1
/8"min
(511)
18
11
/16"
(475)
27
1
/2" (699)
MICROWAVE
OPENING WIDTH
5"
(127)
4"
(102)
E
33" (838)
RECOMMENDED CABINET WIDTH
30"min (762)
INSTALLATION SPECIFICATIONS
Model WWD30 with E Series Drawer Front
Installation with E Series Single Oven and Model MWC24 with 30" (762) E Series Trim

Related product manuals