EasyManua.ls Logo

Wolf IG15/S - Page 34

Wolf IG15/S
120 pages
Print Icon
To Next Page IconTo Next Page
To Next Page IconTo Next Page
To Previous Page IconTo Previous Page
To Previous Page IconTo Previous Page
Loading...
WOLF INDUCTION COOKTOPS
34
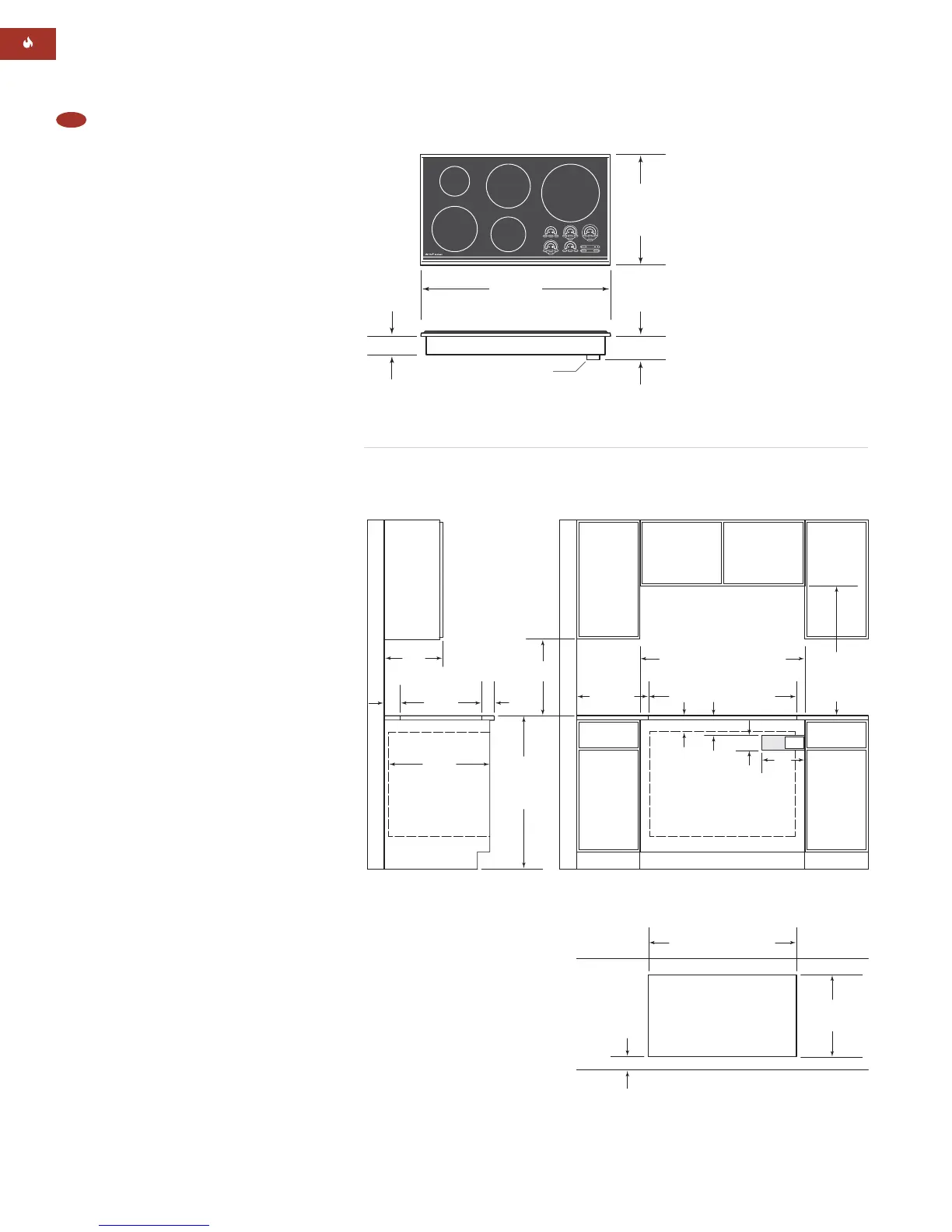
2"*min (51)
CUT-OUT TO
COMBUSTIBLE
MATERIALS
(BOTH SIDES)
18"
(457)
19
1
/4" (489)
COOKTOP CUT-OUT
DEPTH
2
1
/2"min
(64)
36" (914)
STANDARD
FLOOR TO
COUNTERTOP
HEIGHT
13" max
(330)
30" (762)
COUNTERTOP TO
COMBUSTIBLE
MATERIALS
ABOVE COOKTOP
24"min
(610)
*Minimum clearance from both side edges of cooktop cut-out to combustible materials up to 18" (457) above countertop. **Minimum clearance from
rear edge of cooktop cut-out to combustible materials up to 18" (457) above countertop.
34
3
/8" (873)
COOKTOP CUT-OUT WIDTH
34
3
/8" (873)
COOKTOP CUT-OUT WIDTH
39" (991)
RECOMMENDED CABINET WIDTH
36"min (914)
36-INCH OVEN OPENING
3
3
/4"min (95)
2
1
/2"min
(64)
FRONT OF COUNTERTOP
19
1
/4" (489)
COOKTOP
CUT-OUT DEPTH
2"**
(51)
4
1
/2"
(
114
)
10"
(254)
3
1
/2" (89)
E
21"
(533)
OVERALL
DEPTH
36" (914)
OVERALL WIDTH
TERMINAL BOX
3
1
/2" (89)
4
1
/2" (114)
OVERALL DIMENSIONS
Model CT36I/S
INSTALLATION SPECIFICATIONS
Model CT36I/S
Countertop Cut-Out Dimensions
SPECIFICATIONS
Model CT36I/S
Trim Finish Classic
Overall Width 36" (914)
Overall Height 3
1
/2" (89)
Overall Depth 21" (533)
Induction Elements Five
Max Element Power (1) 3000 W with
4000 W boost,
(2) 1800 W with
3000 W boost,
(2) 1200 W
Cabinet Width 39" (991) rec
36" (914) min
Cabinet Depth 22
3
/4" (578) min
Height Clearance 4
1
/2" (114) min
Cut-Out Width* 34
3
/8" (873)
Cut-Out Depth 19
1
/4" (489)
Electrical Supply 240/208 V AC, 50/60 Hz
50 amp circuit
Conduit 4' (1.2 m) flexible 3-wire
Electrical Rating 10.2 kW at 240 V
8.9 kW at 208 V
Shipping Weight 70 lbs (32 kg)
*If the 36" (914) cooktop is to be used with
any combination of additional cooktop units or
modules with a filler strip, the cut-out width
increases to 35" (889).
The diameter of the induction elements are
5
1
/
2
" (140), 6
3
/
4
" (171), two 8
3
/
4
" (220) and
11" (280).
IMPORTANT NOTE: A minimum height clearance
of 6" (152) is required between countertop and
any combustible surface directly below the
cooktop.
IMPORTANT NOTE: If a shelf is installed below
the cooktop, a 1" (25) gap at the rear of the
cabinet shelf is necessary to allow for proper
ventilation. Failure to do so could result in
decreased performance or product damage.
INSTALLATION OPTIONS
A Wolf 36" (914) L Series single oven may be
installed below the 36" (914) induction
cooktop. For this installation, unless you are
using cabinets deeper than 24" (610), it is
recommended that the electrical supply be
placed in the base cabinet to the right of the
oven. A 30" (762) L Series or E Series single
oven may also be installed below the 36" (914)
induction cooktop. Refer to the built-in ovens
section for additional specifications.
When a 36" (914) L Series oven is installed
below a cooktop, it is recommended that the
rough opening for the oven be 7
3
/4" (197) from
the floor to ease use of the oven door.
Unit dimensions may vary to ±
1
/
8
" (3).
Available October 2007
NEW

Related product manuals