EasyManua.ls Logo

Wolf IG15/S - Page 35

Wolf IG15/S
120 pages
Print Icon
To Next Page IconTo Next Page
To Next Page IconTo Next Page
To Previous Page IconTo Previous Page
To Previous Page IconTo Previous Page
Loading...
WOLF INDUCTION COOKTOPS
35
E
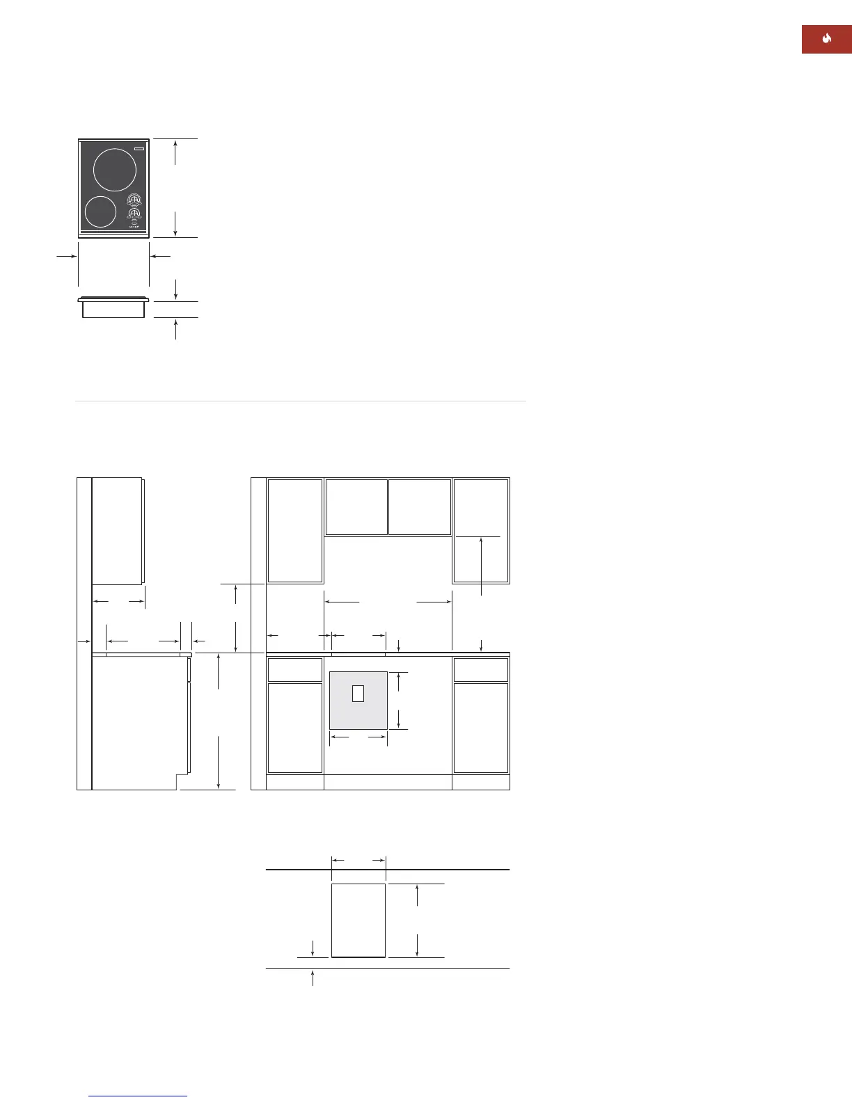
6" (152)
15"
(381)
15"
(381)
2"*min (51)
CUT-OUT TO
COMBUSTIBLE
MATERIALS
(BOTH SIDES)
13
3
/8" (340)
COOKTOP CUT-OUT
WIDTH
13
3
/8" (340)
COOKTOP CUT-OUT
WIDTH
33" (838)
RECOMMENDED
CABINET WIDTH
18"
(457)
NOTE: Application shown allows for installation of two 15" (381) modules side-by-side with 33" (838) recommended cabinet width. 18" (457)
recommended cabinet width for installation of single 15" (381) cooktop or module. *Minimum clearance from both side edges of cooktop cut-ou
t
to combustible materials up to 18" (457) above countertop. **Minimum clearance from rear edge of cooktop cut-out to combustible materials up
to 18" (457) above countertop.
19
1
/4" (489)
COOKTOP CUT-OUT
DEPTH
2
1
/2"min
(64)
36" (914)
STANDARD
FLOOR TO
COUNTERTOP
HEIGHT
13" max
(330)
30" (762)
COUNTERTOP TO
COMBUSTIBLE
MATERIALS
ABOVE COOKTOP
FRONT OF COUNTERTOP
2
1
/2"min
(64)
19
1
/4" (489)
COOKTOP
CUT-OUT DEPTH
2"**
(51)
21"
(533)
OVERALL
DEPTH
15" (381)
OVERALL WIDTH
3
1
/2" (89)
OVERALL DIMENSIONS
Model CT15I/S
INSTALLATION SPECIFICATIONS
Model CT15I/S
Countertop Cut-Out Dimensions
Unit dimensions may vary to ±
1
/
8
" (3).
SPECIFICATIONS
Model CT15I/S
Trim Finish Classic
Overall Width 15" (381)
Overall Height 2
1
/2" (64)
Overall Depth 21" (533)
Induction Elements Two
Max Element Power 1800 W
(front)
Max Element Power 2200 W
(rear)
Cabinet Depth 22
3
/4" (578) min
Height Clearance 6" (152) min
Cut-Out Width* 13
3
/8" (340)
Cut-Out Depth 19
1
/4" (489)
Electrical Supply 240/208 V AC, 60 Hz
20 amp circuit
Conduit 4' (1.2 m) flexible 3-wire
Electrical Rating 3.4 kW at 240 V
2.6 kW at 208 V
Shipping Weight 30 lbs (14 kg)
*If the induction cooktop is to be used with
any combination of additional cooktop units or
modules with a filler strip, the cut-out width
increases to 14" (356).
IMPORTANT NOTE: A minimum height clearance of
6" (152) is required. If a shelf is installed
below the unit, a 1" (25) gap at the rear of the
cabinet shelf is necessary to allow for proper
ventilation. Failure to do so could result in
decreased performance or product damage.
Refer to installation
instructions shipped
with each Wolf
product for detailed
specifications.
Discontinued after October 2007

Other manuals for Wolf IG15/S

Related product manuals