EasyManua.ls Logo

Wolf IG15/S - Page 38

Wolf IG15/S
120 pages
Print Icon
To Next Page IconTo Next Page
To Next Page IconTo Next Page
To Previous Page IconTo Previous Page
To Previous Page IconTo Previous Page
Loading...
Dimensions in
parentheses are in
millimeters unless
otherwise specified.
WOLF ELECTRIC COOKTOPS
38
E
4" (102)
15"
(381)
15"
(381)
2"*min (51)
CUT-OUT TO
COMBUSTIBLE
MATERIALS
(BOTH SIDES)
13
3
/8" (340)
COOKTOP CUT-OUT
WIDTH
13
3
/8" (340)
COOKTOP CUT-OUT
WIDTH
33" (838)
RECOMMENDED
CABINET WIDTH
18"
(457)
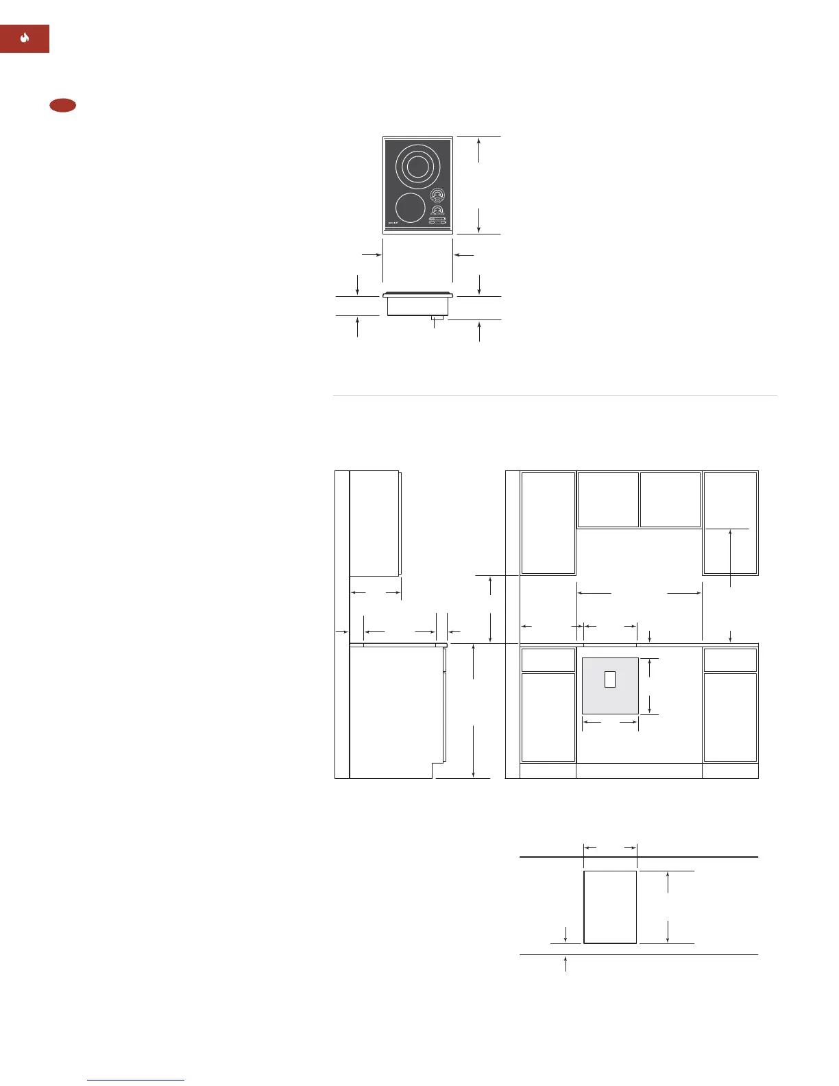
NOTE: Application shown allows for installation of two 15" (381) modules side-by-side with 33" (838) recommended cabinet width. 18" (457)
recommended cabinet width for installation of single 15" (381) cooktop or module. *Minimum clearance from both side edges of cooktop cut-ou
to combustible materials up to 18" (457) above countertop. **Minimum clearance from rear edge of cooktop cut-out to combustible materials up
to 18" (457) above countertop.
19
1
/4" (489)
COOKTOP CUT-OUT
DEPTH
2
1
/2"min
(64)
36" (914)
STANDARD
FLOOR TO
COUNTERTOP
HEIGHT
13" max
(330)
30" (762)
COUNTERTOP TO
COMBUSTIBLE
MATERIALS
ABOVE COOKTOP
FRONT OF COUNTERTOP
2
1
/2"min
(64)
19
1
/4" (489)
COOKTOP
CUT-OUT DEPTH
2"**
(51)
21"
(533)
OVERALL
DEPTH
15" (381)
OVERALL WIDTH
5" (127)3
3
/4" (96)
CONDUIT
OVERALL DIMENSIONS
New Model CT15E/S
INSTALLATION SPECIFICATIONS
New Model CT15E/S
Countertop Cut-Out Dimensions
SPECIFICATIONS
New Model CT15E/S
Trim Finish Classic
Overall Width 15" (381)
Overall Height 3
3
/4" (96)
Overall Depth 21" (533)
Heating Elements Two
Temperature Zones Four
Max Element Power
Triple 900 / 1800 / 2500 W
Single 1200 W
Cabinet Depth 22
3
/4" (578) min
Height Clearance 4" (102) min
Cut-Out Width* 13
3
/8" (340)
Cut-Out Depth 19
1
/4" (489)
Electrical Supply 240 V AC/ 60 Hz / 20 amp
208 V AC/ 60 Hz / 15 amp
Conduit 4' (1.2 m) flexible 3-wire
Electrical Rating 3.7 kW at 240 V
2.8 kW at 208 V
Shipping Weight 30 lbs (14 kg)
*If the 15" (381) cooktop is to be used with
any combination of additional cooktop units or
modules with a filler strip, the cut-out width
increases to 14" (356).
The outer diameter of the heating elements are
10" (254) and 6
1
/
2
" (165).
IMPORTANT NOTE: A minimum height clearance
of 5
3
/
4
" (146) is required between countertop
and any combustible surface directly below the
cooktop.
Unit dimensions may vary to ±
1
/
8
" (3).
Available November 2007
NEW

Related product manuals