EasyManua.ls Logo

Wolf IG15/S - Page 39

Wolf IG15/S
120 pages
Print Icon
To Next Page IconTo Next Page
To Next Page IconTo Next Page
To Previous Page IconTo Previous Page
To Previous Page IconTo Previous Page
Loading...
WOLF ELECTRIC COOKTOPS
39
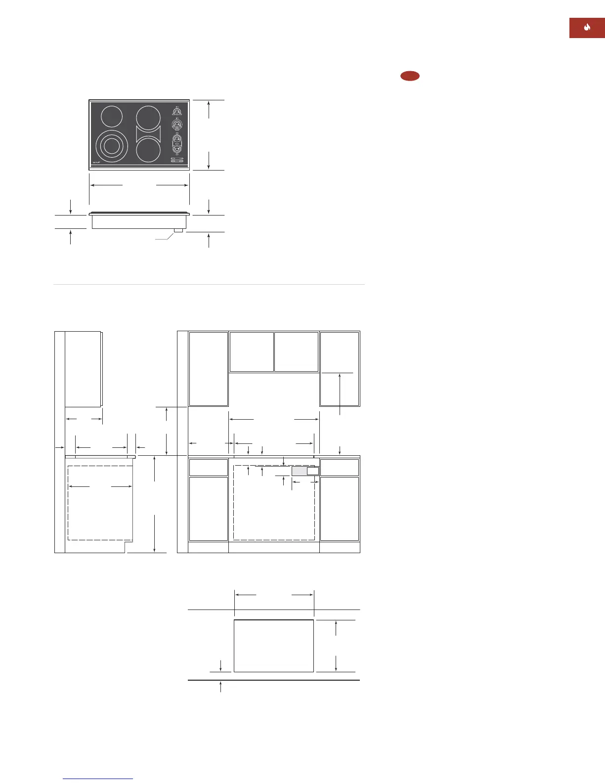
2"*min (51)
CUT-OUT TO
COMBUSTIBLE
MATERIALS
(BOTH SIDES)
18"
(457)
19
1
/4" (489)
COOKTOP CUT-OUT
DEPTH
2
1
/2"min
(64)
36" (914)
STANDARD
FLOOR TO
COUNTERTOP
HEIGHT
13" max
(330)
30" (762)
COUNTERTOP TO
COMBUSTIBLE
MATERIALS
ABOVE COOKTOP
24"min
(610)
*Minimum clearance from both side edges of cooktop cut-out to combustible materials up to 18" (457) above countertop. **Minimum clearance
from rear edge of cooktop cut-out to combustible materials up to 18" (457) above countertop.
4" (102)
10"
(254)
3
1
/2" (89)
3
3
/4"min
(95)
30-INCH OVEN OPENING
E
28
3
/8" (721) COOKTOP
CUT-OUT WIDTH
28
3
/8" (721)
COOKTOP CUT-OUT WIDTH
FRONT OF COUNTERTOP
2
1
/2"min
(64)
19
1
/4" (489)
COOKTOP
CUT-OUT DEPTH
33" (838)
RECOMMENDED
CABINET WIDTH
30"min (762)
2"**
(51)
21"
(533)
OVERALL
DEPTH
30" (762)
OVERALL WIDTH
5" (127)3
3
/4" (96)
CONDUIT
Countertop Cut-Out Dimensions
OVERALL DIMENSIONS
New Model CT30E
INSTALLATION SPECIFICATIONS
30" (762) Framed Electric Cooktop
SPECIFICATIONS
New Model CT30E
Overall Width 30" (762)
Overall Height 3
3
/4" (96)
Overall Depth 21" (533)
Heating Elements Three
Temperature Zones Seven
Max Element Power
Triple 900 / 1800 / 2500 W
(CT30E-208/S) 900 / 1800 / 2300 W
Singles 1200 W and (2) 1800 W
Singles with Bridge 4400 W
Cabinet Width 33" (838) rec
30" (762) min
Cabinet Depth 22
3
/4" (578) min
Height Clearance 4" (102) min
Cut-Out Width* 28
3
/8" (721)
Cut-Out Depth 19
1
/4" (489)
Electrical Supply 240 V AC/ 60 Hz / 40 amp
208 V AC/ 60 Hz /40 amp
(CT30E-208/S) 208
V AC / 60 Hz / 40 amp
Conduit 4' (1.2 m) flexible 3-wire
Electrical Rating 8.1 kW at 240 V
6.1 kW at 208 V
(CT30E-208/S) 7.9 kW at 208 V
Shipping Weight 45 lbs (20 kg)
*If the 30" (762) cooktop is to be used with
any combination of additional cooktop units or
modules with a filler strip, the cut-out width
increases to 29" (737).
The outer diameter of the heating elements are
10" (254), two 8" (203) and 6
1
/
2
" (165). The
bridge with elements is 8" (203) x 17" (432).
IMPORTANT NOTE: A minimum height clearance
of 5
3
/
4
" (146) is required between countertop
and any combustible surface directly below the
cooktop.
INSTALLATION OPTIONS
A Wolf 30" (762) L Series or E Series single
oven may be installed below the 30" (762)
framed electric cooktop. For this installation,
unless you are using cabinets deeper than 24"
(610), it is recommended that the electrical
supply be placed in the base cabinet to the
right of the oven. A 36" (914) L Series single
oven may also be installed below the 30" (762)
framed electric cooktop. Refer to the built-in
ovens section for additional specifications.
Unit dimensions may vary to ±
1
/
8
" (3).
MODEL OPTIONS
30" (762) Framed Electric Cooktop
Classic Trim Finish CT30E/S
CT30E-208/S*
Platinum Trim Finish CT30E/P
Carbon Trim Finish CT30E/B
*Model CT30E-208/S designed specifically for use
with 208 V AC, 60 Hz, 40 amp electrical supply
.
Refer to installation
instructions shipped
with each Wolf
pr
oduct for detailed
specifications.
Available November 2007
NEW

Related product manuals