EasyManua.ls Logo

Wolf IG15/S - Page 52

Wolf IG15/S
120 pages
Print Icon
To Next Page IconTo Next Page
To Next Page IconTo Next Page
To Previous Page IconTo Previous Page
To Previous Page IconTo Previous Page
Loading...
Dimensions in
parentheses are in
millimeters unless
otherwise specified.
WOLF GAS COOKTOPS
52
E
4" (102)
G
15"
(381)
15"
(381)
15"
(381)
LOCATION OF GAS SUPPLY
MAY ALSO EXTEND 5" ON
FLOOR FROM BACK WALL
7"*min (178)
CUT-OUT TO
COMBUSTIBLE
MATERIALS
(BOTH SIDES)
14" (356)
COOKTOP CUT-OUT
WIDTH
14" (356)
COOKTOP CUT-OUT
WIDTH
33" (838)
RECOMMENDED
CABINET WIDTH
18"
(457)
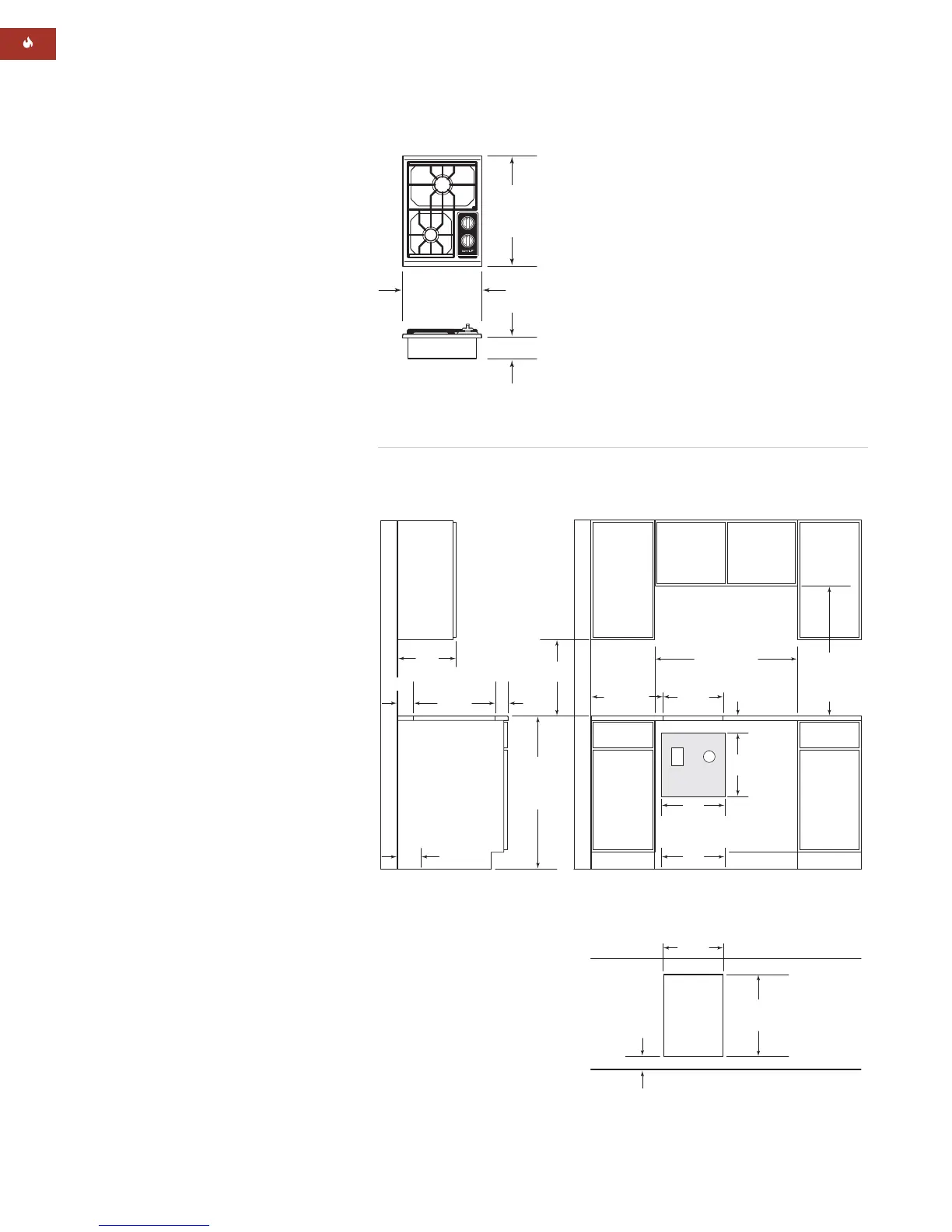
NOTE: Application shown allows for installation of two 15" (381) modules side-by-side with 33" (838) recommended cabinet width. 18" (457)
recommended cabinet width for installation of single 15" (381) cooktop or module. *Minimum clearance from both side edges of cooktop cut-ou
to combustible materials up to 18" (457) above countertop. **Minimum clearance from rear edge of cooktop cut-out to combustible materials up
to 18" (457) above countertop.
19
1
/4" (489)
COOKTOP CUT-OUT
DEPTH
2
1
/2"min
(64)
36" (914)
STANDARD
FLOOR TO
COUNTERTOP
HEIGHT
13" max
(330)
30" (762)
COUNTERTOP TO
COMBUSTIBLE
MATERIALS
ABOVE COOKTOP
2
1
/2"**
(64)
5"
(127)
LOCATION OF GAS
SUPPLY MAY ALSO
EXTEND 5" ON FLOOR
FROM BACK WALL
FRONT OF COUNTERTOP
2
1
/2"min
(64)
19
1
/4" (489)
COOKTOP
CUT-OUT DEPTH
15" (381)
OVERALL WIDTH
21"
(533)
OVERALL
DEPTH
4" (102)
Countertop Cut-Out Dimensions
OVERALL DIMENSIONS
15" (381) Gas Cooktop
INSTALLATION SPECIFICATIONS
15" (381) Gas Cooktop
SPECIFICATIONS
15" (381) Gas Cooktop
Overall Width 15" (381)
Overall Height 4" (102)
Overall Depth 21" (533)
Burner Rating (1) 12,000 Btu/hr
(3.5 kW) with
800 Btu/hr (.2 kW)
delivered at simmer
(1) 9,200 Btu/hr
(2.7 kW) with
300 Btu/hr (.1 kW)
delivered at simmer
Cabinet Depth 22
3
/4" (578) min
Height Clearance 4" (102) min
Cut-Out Width 14" (356)
Cut-Out Depth 19
1
/4" (489)
Electrical Supply 120 V AC, 60 Hz
15 amp circuit
Power Cord 6' (1.8 m) 3-prong
Gas Rating 21,200 Btu/hr
(6.2 kW)
Shipping Weight 30 lbs (14 kg)
Unit dimensions may vary to ±
1
/
8
" (3).
INSTALLATION OPTIONS
For the 15" (381) gas cooktop, the gas
service may be supplied through the floor if
the cooktop is not installed above an oven.
Refer to the illustration for specifics on
placement of gas and electrical.
Unit dimensions may vary to ±
1
/
8
" (3).
MODEL OPTIONS
15" (381) Gas Cooktop
Classic / Natural Gas CT15G/S
Classic / LP Gas CT15G/S-LP

Other manuals for Wolf IG15/S

Related product manuals