EasyManua.ls Logo

Wolf IG15/S - Page 53

Wolf IG15/S
120 pages
Print Icon
To Next Page IconTo Next Page
To Next Page IconTo Next Page
To Previous Page IconTo Previous Page
To Previous Page IconTo Previous Page
Loading...
WOLF GAS COOKTOPS
53
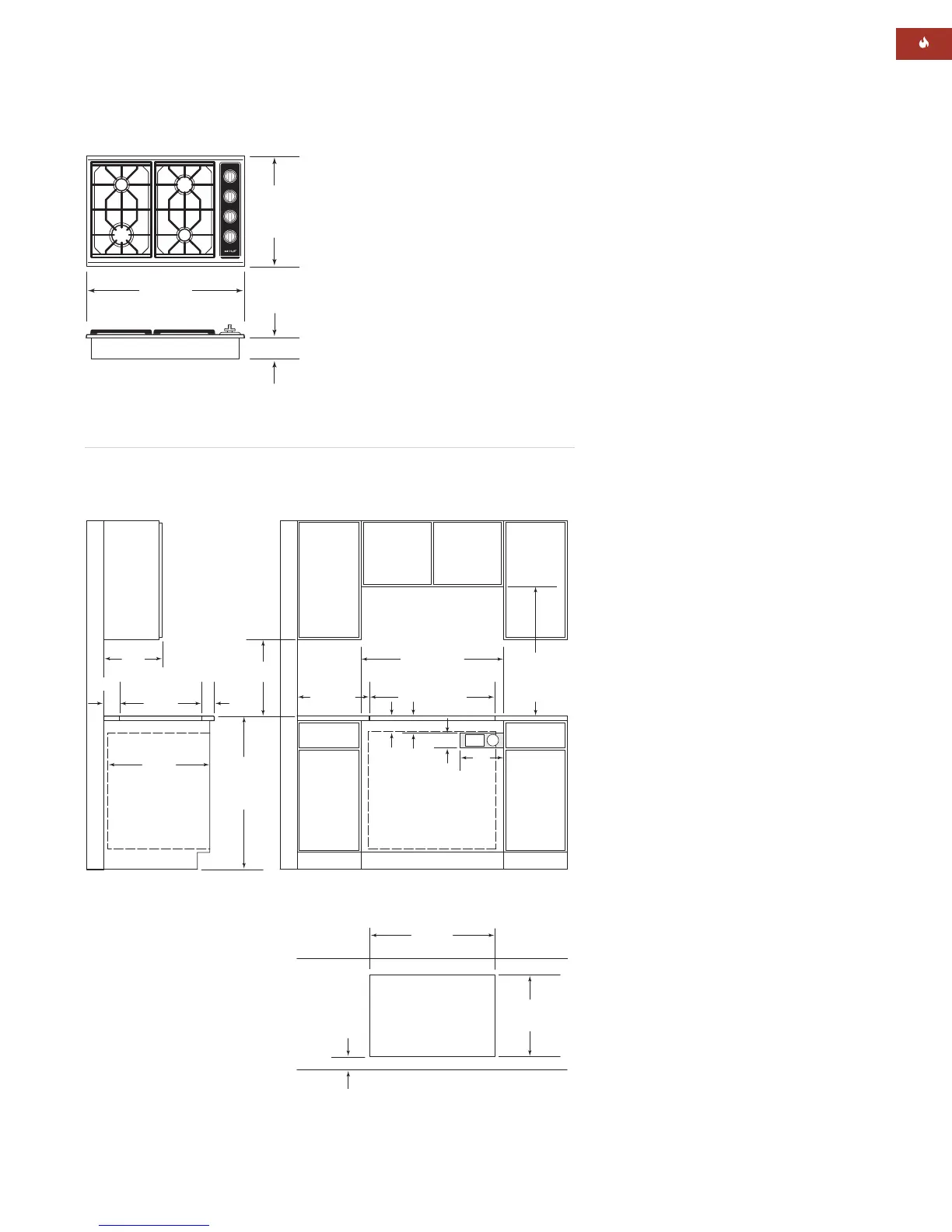
9"*min (229)
CUT-OUT TO
COMBUSTIBLE
MATERIALS
(BOTH SIDES)
18"
(457)
19
1
/4" (489)
COOKTOP CUT-OUT
DEPTH
2
1
/2"min
(64)
36" (914)
STANDARD
FLOOR TO
COUNTERTOP
HEIGHT
13" max
(330)
30" (762)
COUNTERTOP TO
COMBUSTIBLE
MATERIALS
ABOVE COOKTOP
2
1
/2"**
(64)
24"min
(610)
*Minimum clearance from both side edges of cooktop cut-out to combustible materials up to 18" (457) above countertop.
**Minimum clearance from rear edge of cooktop cut-out to combustible materials up to 18" (457) above countertop.
4" (102)
10"
(254)
3
1
/2" (89)
E
3
3
/4"min
(95)
G
30-INCH OVEN OPENING
29" (737) COOKTOP
CUT-OUT WIDTH
29" (737)
COOKTOP CUT-OUT WIDTH
FRONT OF COUNTERTOP
2
1
/2"min
(64)
19
1
/4" (489)
COOKTOP
CUT-OUT DEPTH
33" (838)
RECOMMENDED
CABINET WIDTH
30"min (762)
21"
(533)
OVERALL
DEPTH
30" (762)
OVERALL WIDTH
4" (102)
Countertop Cut-Out Dimensions
OVERALL DIMENSIONS
30" (762) Gas Cooktop
INSTALLATION SPECIFICATIONS
30" (762) Gas Cooktop
SPECIFICATIONS
30" (762) Gas Cooktop
Overall Width 30" (762)
Overall Height 4" (102)
Overall Depth 21" (533)
Burner Rating (1) 15,000 Btu/hr
(4.4 kW) with
800 Btu/hr (.2 kW)
delivered at simmer
(1) 12,000 Btu/hr
(3.5 kW) with
800 Btu/hr (.2 kW)
delivered at simmer
(2) 9,200 Btu/hr
(2.7 kW) with
300 Btu/hr (.1 kW)
delivered at simmer
Cabinet Width 33" (838) rec
30" (762) min
Cabinet Depth 22
3
/4" (578) min
Height Clearance 4" (102) min
Cut-Out Width 29" (737)
Cut-Out Depth 19
1
/4" (489)
Electrical Supply 120 V AC, 60 Hz
15 amp circuit
Power Cord 6' (1.8 m) 3-prong
Gas Rating 45,400 Btu/hr
(13.3 kW)
Shipping Weight 50 lbs (23 kg)
Unit dimensions may vary to ±
1
/
8
" (3).
INSTALLATION OPTIONS
A Wolf 30" (762) L Series or E Series single
oven may be installed below the 30" (762)
gas cooktop. For this installation, unless you
are using cabinets deeper than 24" (610), it is
recommended that the electrical and gas
supply be placed in the base cabinet to the
right of the oven. Refer to the built-in ovens
section for additional specifications.
Unit dimensions may vary to ±
1
/
8
" (3).
MODEL OPTIONS
30" (762) Gas Cooktop
Classic/Natural Gas
CT30G/S
Platinum/Natural Gas
CT30G/P
Classic / LP Gas CT30G/S-LP
Platinum / LP Gas CT30G/P-LP
Refer to installation
instructions shipped
with each Wolf
product for detailed
specifications.

Other manuals for Wolf IG15/S

Related product manuals