EasyManua.ls Logo

Wolf IG15/S - Page 54

Wolf IG15/S
120 pages
Print Icon
To Next Page IconTo Next Page
To Next Page IconTo Next Page
To Previous Page IconTo Previous Page
To Previous Page IconTo Previous Page
Loading...
WOLF GAS COOKTOPS
54
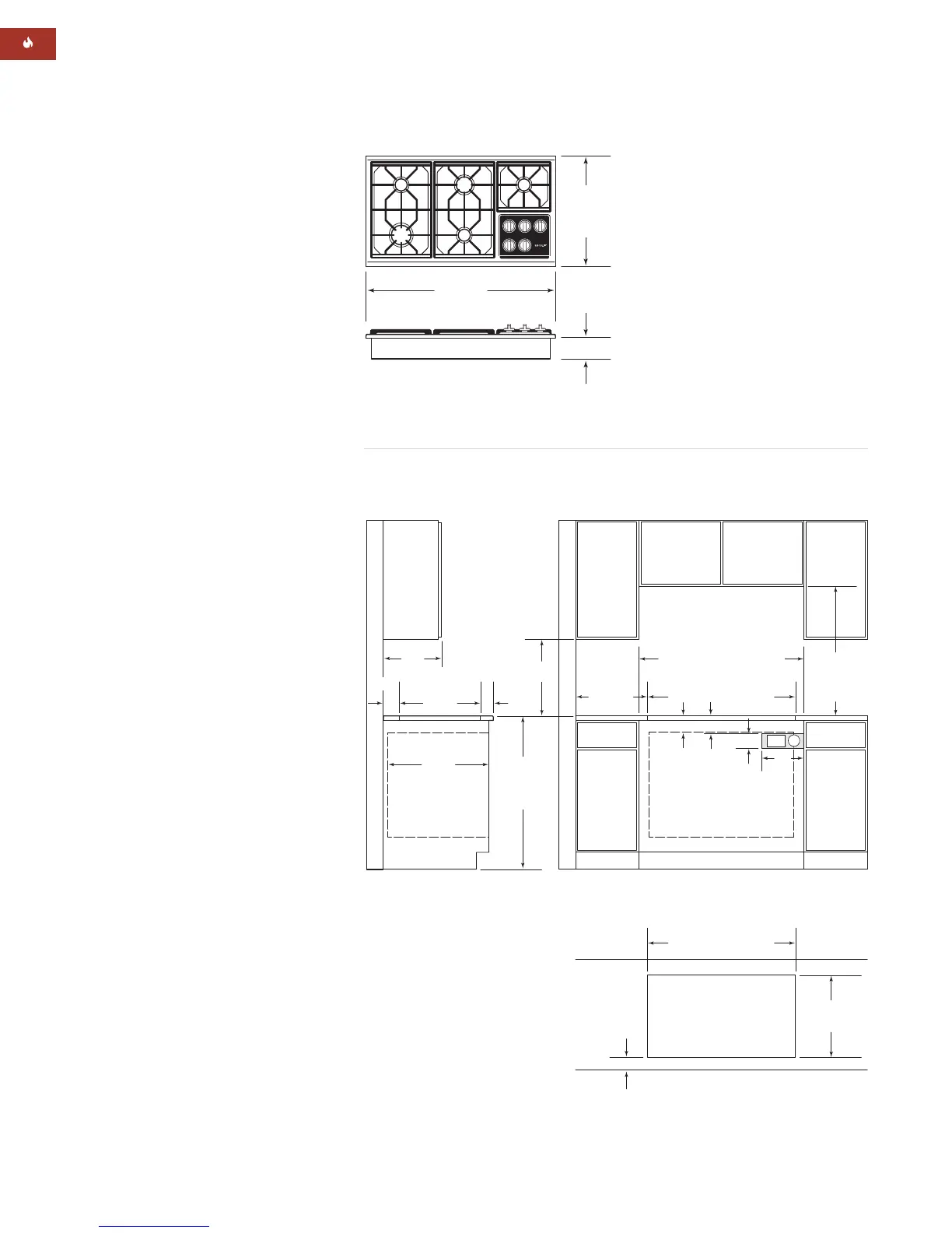
9"*min (229)
CUT-OUT TO
COMBUSTIBLE
MATERIALS
(BOTH SIDES)
18"
(457)
19
1
/4" (489)
COOKTOP CUT-OUT
DEPTH
2
1
/2"min
(64)
36" (914)
STANDARD
FLOOR TO
COUNTERTOP
HEIGHT
13" max
(330)
30" (762)
COUNTERTOP TO
COMBUSTIBLE
MATERIALS
ABOVE COOKTOP
2
1
/2"**
(64)
24"min
(610)
*Minimum clearance from both side edges of cooktop cut-out to combustible materials up to 18" (457) above countertop.
**Minimum clearance from rear edge of cooktop cut-out to combustible materials up to 18" (457) above countertop.
35" (889)
COOKTOP CUT-OUT WIDTH
35" (889)
COOKTOP CUT-OUT WIDTH
39" (991)
RECOMMENDED CABINET WIDTH
36"min (914)
4" (102)
10"
(254)
3
1
/2" (89)
E
G
36-INCH OVEN OPENING
3
3
/4"min (95)
2
1
/2"min
(64)
FRONT OF COUNTERTOP
19
1
/4" (489)
COOKTOP
CUT-OUT DEPTH
21"
(533)
OVERALL
DEPTH
36" (914)
OVERALL WIDTH
4" (102)
OVERALL DIMENSIONS
36" (914) Gas Cooktop
INSTALLATION SPECIFICATIONS
36" (914) Gas Cooktop
Countertop Cut-Out Dimensions
SPECIFICATIONS
36" (914) Gas Cooktop
Overall Width 36" (914)
Overall Height 4" (102)
Overall Depth 21" (533)
Burner Rating (1) 15,000 Btu/hr
(4.4 kW) with
800 Btu/hr (.2 kW)
delivered at simmer
(1) 12,000 Btu/hr
(3.5 kW) with
800 Btu/hr (.2 kW)
delivered at simmer
(3) 9,200 Btu/hr
(2.7 kW) with
300 Btu/hr (.1 kW)
delivered at simmer
Cabinet Width 39" (991) rec
36" (914) min
Cabinet Depth 22
3
/4" (578) min
Height Clearance 4" (102) min
Cut-Out Width 35" (889)
Cut-Out Depth 19
1
/4" (489)
Electrical Supply 120 V AC, 60 Hz
15 amp circuit
Power Cord 6' (1.8 m) 3-prong
Gas Rating 54,600 Btu/hr
(16.0 kW)
Shipping Weight 67 lbs (30 kg)
INSTALLATION OPTIONS
A Wolf 36" (914) L Series single oven may be
installed below the 36" (914) gas cooktop. For
this installation, unless you are using cabinets
deeper than 24" (610), it is recommended that
the electrical and gas supply be placed in the
base cabinet to the right of the oven. A Wolf
30" (762) L Series or E Series single oven may
also be installed below the 36" (914) gas
cooktop. Refer to the built-in ovens section
for additional specifications.
When a 36" (914) L Series oven is installed
below a cooktop, it is recommended that the
rough opening for the oven be 7
3
/4" (197)
from the floor to ease use of the oven door.
Unit dimensions may vary to ±
1
/
8
" (3).
MODEL OPTIONS
36" (914) Gas Cooktop
Classic/Natural Gas
CT36G/S
Platinum/Natural Gas
CT36G/P
Classic / LP Gas CT36G/S-LP
Platinum / LP Gas CT36G/P-LP
Refer to installation
instructions shipped
with each Wolf
product for detailed
specifications.
Dimensions in
parentheses are in
millimeters unless
otherwise specified.

Other manuals for Wolf IG15/S

Related product manuals