EasyManua.ls Logo

Wolf IG15/S - Page 6

Wolf IG15/S
120 pages
Print Icon
To Next Page IconTo Next Page
To Next Page IconTo Next Page
To Previous Page IconTo Previous Page
To Previous Page IconTo Previous Page
Loading...
Dimensions in
parentheses are in
millimeters unless
otherwise specified.
6
SPECIFICATIONS
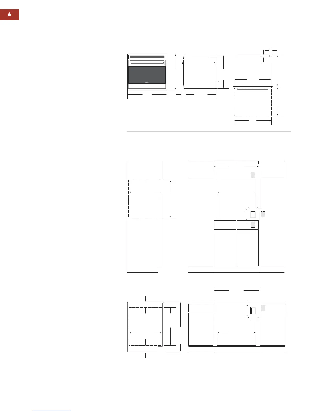
30" (762) L Series Built-In Single Oven
Overall Dimensions 29
7
/8"x 27
1
/2" x 24"
(W x H x D) (759 x 699 x 610)
Door Clearance 20
3
/4" (527)
Overall Oven
Interior Capacity 4.5 cu ft (127 L)
Overall Interior Dim 25" x 16
1
/2" x 19"
(W x H x D) (635 x 419 x 483)
Usable Interior Dim 21
1
/2"x 16
1
/2"x 16
3
/8"
(W x H x D) (546 x 419 x 416)
Cabinet Width 33" (838) rec
30" (762) min
Cabinet Depth 24" (610) min
Min Base Support 250 lbs (113 kg)
Opening Width 28
1
/2" (724)
Opening Height 27
3
/16" (691)
Trim Overlaps
3
/16" (5) top
1
/8" (3) bottom
3
/4" (19) each side
Electrical Supply 240/208 V AC, 60 Hz
30 amp circuit
Conduit 4' (1.2 m) flexible 4-wire
Electrical Rating 5.1 kW at 240 V
3.8 kW at 208 V
Total Amps 21
Shipping Weight 273 lbs (124 kg)
MODEL OPTIONS
30" (762) L Series Built-In Single Oven
Framed / Classic SO30F/S
Unframed / Classic SO30U/S
Unframed / Platinum SO30U/P
Unframed / Carbon SO30U/B
INSTALLATION OPTIONS
The Wolf 30" (762) L Series single oven may
be installed below a Wolf 30" (762) induction,
electric or gas cooktop. Unless you are using
cabinets deeper than 24" (610), it is recom-
mended that the electrical supply be placed
in the base cabinet to the right of the oven
within reach of the conduit. It may also be
installed below a 36" (914) induction, electric
or gas cooktop.
A 30" (762) L Series single oven may be
installed in combination with a Wolf micro-
wave and warming drawer. Refer to the
warming drawers section for specifications.
A 30" (762) L Series single oven may be
installed next to another 30" (762) L Series
single oven. You must allow for a 2
1
/2" (64)
space between the oven rough openings.
Also, a separate inner wall is required for
each oven between openings.
27
3
/16"
(691)
OPENING
HEIGHT
28
1
/2" (724)
OPENING WIDTH
5"
(127)
4"
(10 2)
24"min (610)
OPENING DEPTH
E E
E
E
33"
(838)
RECOMMENDED CABINET WIDTH
30"min (762)
ELECTRICAL LOCATION
WITHIN OPENING
APPLIES ONLY TO
CABINETS DEEPER
THAN 24" (610)
E
E
5"
(127)
4
3
/4"min (121)
33" (838)
RECOMMENDED CABINET WIDTH
30"min (762)
3
3
/4" typical (95)
36" (914)
STANDARD
FLOOR TO
COUNTER
HEIGHT
27
3
/16"
(691)
OPENING
HEIGHT
28
1
/2" (724)
OPENING WIDTH
4"
(102)
24"min (610)
OPENING DEPTH
ELECTRICAL
LOCATION WITHIN
OPENING APPLIES
ONLY TO CABINETS
DEEPER THAN 24" (610)
24" (610)
BEHIND FRAME
27
1
/2"
(699)
28
3
/16"
(716)
28"
(711)
29
7
/8"
(759)
24"
(610)
CONDUIT
CHANNEL
OPEN OVEN DOOR
TOP VIEW
3"
(76)
20
3
/4"
(527)
1
1
/4"
(32)
1
7
/8"
(48)
1
7
/8"
(48)
RIGHT SIDE VIEW
26
1
/16"
(662)
INSIDE
SIDE TRIM
OVERALL DIMENSIONS
30" (762) L Series Built-In Single Oven
INSTALLATION SPECIFICATIONS
30" (762) L Series Built-In Single Oven
Wall Application
Undercounter Installation
Unit dimensions may vary to ±
1
/
8
" (3).
IMPORTANT NOTE: Unless you are using cabinets
deeper than 24" (610), it is recommended that the
electrical supply be placed in an adjacent cabinet within
reach of the conduit. Choose the location shown in the
illustrations that best suits your installation.
L SERIES BUILT-IN OVENS

Other manuals for Wolf IG15/S

Related product manuals