EasyManua.ls Logo

Wolf IG15/S - Page 7

Wolf IG15/S
120 pages
Print Icon
To Next Page IconTo Next Page
To Next Page IconTo Next Page
To Previous Page IconTo Previous Page
To Previous Page IconTo Previous Page
Loading...
7
L SERIES BUILT-IN OVENS
24
1
/16"
(611)
OPENING
HEIGHT
34
1
/2" (876)
OPENING WIDTH
5"
(127)
E
39" (991)
RECOMMENDED CABINET WIDTH
36"min (914)
24"min (610)
OPENING DEPTH
E
E
E
4"
(10 2)
ELECTRICAL LOCATION
WITHIN OPENING APPLIES
ONLY TO CABINETS
DEEPER THAN 24" (610)
3
3
/4" typical (95)
E
5"
(127)
39" (991)
RECOMMENDED CABINET WIDTH
36"min (914)
7
3
/4" (197) rec
4
3
/4" (121) min
24
1
/16"
(611)
OPENING
HEIGHT
34
1
/2" (876)
OPENING WIDTH
24"min (610)
OPENING DEPTH
4"
(10 2)
36" (914)
STANDARD
FLOOR TO
COUNTER
HEIGHT
ELECTRICAL LOCATION
WITHIN OPENING APPLIES
ONLY TO CABINETS
DEEPER THAN 24" (610)
E
24" (610)
BEHIND FRAME
24
3
/8"
(619)
35
5
/8"
(905)
24"
(610)
23" (584)
INSIDE
SIDE TRIM
CONDUIT
CHANNEL
OPEN OVEN DOOR
TOP VIEW
34
1
/8"
(867)
33
11
/16"
(870)
3"
(76)
17
3
/4"
(451)
1
1
/4"
(32)
1
7
/8"
(48)
1
7
/8"
(48)
RIGHT SIDE VIEW
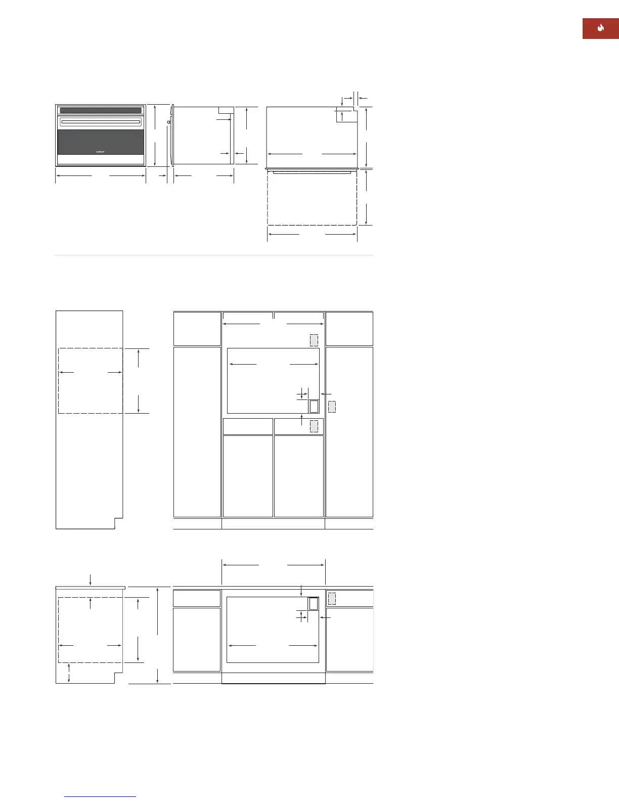
OVERALL DIMENSIONS
36" (914) L Series Built-In Single Oven
INSTALLATION SPECIFICATIONS
36" (914) L Series Built-In Single Oven
Wall Application
SPECIFICATIONS
36" (914) L Series Built-In Single Oven
Overall Dimensions 35
5
/8"x 24
3
/8" x 24"
(W x H x D) (905 x 619 x 610)
Door Clearance 17
3
/4" (451)
Overall Oven
Interior Capacity 4.4 cu ft (125 L)
Overall Interior Dim 30" x 13
1
/4" x 19"
(W x H x D) (762 x 337 x 483)
Usable Interior Dim 26
1
/2"x 13
1
/4"x 16
3
/8"
(W x H x D) (673 x 337 x 416)
Cabinet Width 39" (991) rec
36" (914) min
Cabinet Depth 24" (610) min
Min Base Support 250 lbs (113 kg)
Opening Width 34
1
/2" (876)
Opening Height 24
1
/16" (611)
Trim Overlaps
3
/16" (5) top
1
/8" (3) bottom
3
/4" (19) each side
Electrical Supply 240/208 V AC, 60 Hz
30 amp circuit
Conduit 3' (.9 m) flexible 4-wire
Electrical Rating 5.1 kW at 240 V
3.8 kW at 208 V
Total Amps 21
Shipping Weight 288 lbs (131 kg)
Undercounter Installation
INSTALLATION OPTIONS
The Wolf 36" (914) L Series single oven may be
installed below a Wolf 36" (914) induction,
electric or gas cooktop. It may also be installed
below a 30" (762) induction or framed electric
cooktop, but not below a 30" (762) unframed
electric cooktop or gas cooktop. When installed
below a cooktop, it is recommended that the
opening for the oven be 7
3
/4" (197) from the
floor to ease use of the oven door.
A 36" (914) L Series single oven may be
installed above or below a Wolf warming
drawer with integrated drawer front. This
installation may also include a convection
microwave with 36" (914) trim. Refer to the
warming drawers section for specifications.
A 36" (914) L Series single oven may be
installed directly above another 36" (914) oven.
You must allow enough space between the
oven rough openings to accommodate a base
support for the top oven. It may also be
installed next to another 36" (914) oven. You
must allow for a 2
1
/2" (64) space between the
oven rough openings. Also, a separate inner
wall is required for each oven between
openings. Each base cabinet support must be
able to support 250 lbs (113 kg).
Unit dimensions may vary to ±
1
/
8
" (3).
IMPORTANT NOTE: Unless you are using cabinets
deeper than 24" (610), it is recommended that the
electrical supply be placed in an adjacent cabinet within
reach of the conduit. Choose the location shown in the
illustrations that best suits your installation.
MODEL OPTIONS
36" (914) L Series Built-In Single Oven
Unframed / Classic SO36U/S
Unframed / Platinum SO36U/P
Unframed / Carbon SO36U/B

Other manuals for Wolf IG15/S

Related product manuals