EasyManua.ls Logo

Worcester 47-406-56

Worcester 47-406-56
56 pages
To Next Page IconTo Next Page
To Next Page IconTo Next Page
To Previous Page IconTo Previous Page
To Previous Page IconTo Previous Page
Loading...
Installation
6 720 811 922 (2014/07) 19
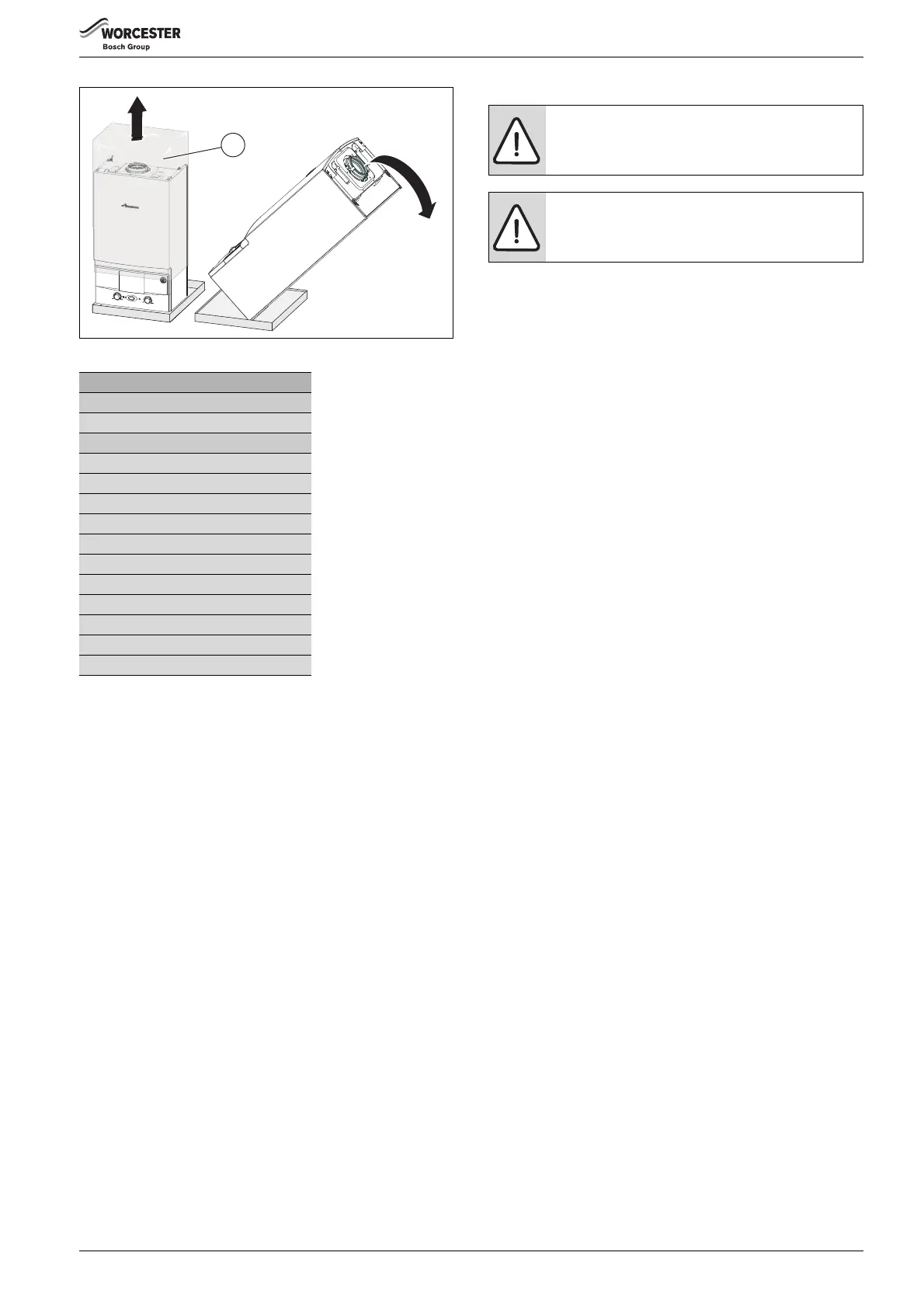
Fig. 22 Remove cover and base
4.2 WALL MOUNTING TEMPLATE & FLUE OPENING
SAFETY:
All relevant safety precautions must be undertaken. Protective clothing,
footwear, gloves and safety goggles must be worn as appropriate.
MOUNTING ON THE WALL
No special wall protection is required. The wall must be flat and able to
bear the weight of the appliance.
Fix the wall mounting template, supplied with the literature pack, to
the wall, allowing a side clearance of at least 10 mm on each side
( Fig. 15) .
Drill holes for wall plugs and mounting plate to match the mounting
template.
Drill the two holes for mounting the plumbing manifold.
If required: make a hole in wall for the flue pipe.
REAR FLUE OUTLET
The drawing opposite shows the boiler wall mounting template with the
flue centre lines of both the 100mm and 125mm flue systems.
Mark the centre line of the flue to be used (3); the external diameter
of the hole can also be marked if required.
If a 100mm diameter flue is to be used, a 125mm diameter hole is
required. However, if using the weather sealing collar by pushing it
through from inside the property, then a 150mm diameter hole is
required to accommodate this.
The flue turret of the 100mm flue has an in-built 3° angle.
If extensions are to be added then the complete flue must rise at an
angle of 3°.
Drill the hole, preferably using a core drill.
SIDE OUTLET
Mark from the centre line of the wall mounting template to the wall
that the flue will pass through (4).
Allow for a rise of 52mm per metre length of flue, to give a 3° angle.
Clear any debris from the site.
Standard package contents:
Top Tray
Isolating valve bracket
Bottom Tray
Literature pack:
- Installation instructions
- User guide
- PRV installer connection
- Condensate adapter
- Wall mounting template
Hardware pack:
- Compression fittings
- Fibre washers
Top wall hanging bracket
Fascia flap
Table 13
7.
6720800945-21.2Wo
6.
7
WARNING: BEFORE DRILLING ENSURE THAT THERE
ARE NO PIPES, ELECTRICAL CABLES, DAMP PROOF
COURSES OR OTHER HAZARDS.
NOTICE: Never carry the appliance by the control box or
rest the full weight of the appliance on it.

Table of Contents

Related product manuals