EasyManua.ls Logo

Worcester Greenstar Highflow 550CDi

Worcester Greenstar Highflow 550CDi
60 pages
To Next Page IconTo Next Page
To Next Page IconTo Next Page
To Previous Page IconTo Previous Page
To Previous Page IconTo Previous Page
Loading...
SERVICING
& SPARES
INSTALLATION & SERVICING INSTRUCTIONS
41
REPLACEMENT PARTS
8 716 115 219c (03.2010)
REPLACEMENT PARTS
IMPORTANT: Any service work must be
carried out by competent registered
engineers, such as British Gas or other
GAS SAFE registered personnel.
IMPORTANT: After re-assembly the
combustion must be checked using the
procedure in the section “Setting the
air/gas ratio”. Measurement and setting
of the gas ratio must not be attempted
unless the person is equipped with a
combustion analyser conforming to
BS 7927 and is competent in its use.
DRAINING THE APPLIANCE:
Turn off the system heating flow and
return stop cocks - external to boiler.
Using a suitable hose, attach one end
to the drain tap on the boiler return
elbow and lead the other end of the
hose to an external drain point.
Fully open the drain tap on the boiler
return elbow.
Close the drain tap when the flow from
the appliance has stopped and remove
the hose.
NOTE:
A small quantity of water may remain in some
components even after the appliance has been
drained. Protect any electrical components
when removing items from the water circuits.
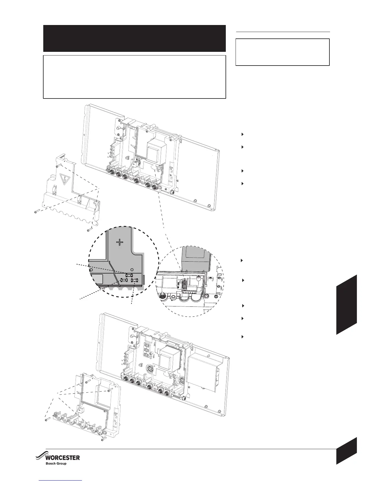
PCB CONTROL BOARD & TRANSFORMER:
Access to boiler control components
Remove screws (A) to release the cover
from the controller.
PCB Fuse
Remove the fuse (B) and replace with
a spare that are clipped on the inside
of the controller cover.
Transformer / PCB
Disconnect all electrical connections
from the control.
Remove the screws (C) retaining the rear
panel of the control and remove the
panel.
After re-assembly check CO/CO2 levels
as described in the section “Setting the
air/gas ratio”.
CAUTION: TURN OFF THE GAS SUPPLY AND ISOLATE THE MAINS ELECTRICAL
SUPPLY BEFORE STARTING ANY WORK AND OBSERVE ALL RELEVANT SAFETY
PRECAUTIONS.
DRAIN THE BOILER/SYSTEM WHERE NECESSARY AND PROTECT ANY ELECTRICS
FROM WATER INGRESS DURING COMPONENT REPLACEMENT.
IMPORTANT: Refit or replace any components removed from the appliance in the
reverse order using new gaskets/'O' rings/sealant/heat transfer paste where
necessary.
Any 'O' ring or gasket that appears damaged must be replaced. Always check that
any electrical connections are correctly made and that all screws are tight.
AFTER REPLACEMENT OF ANY COMPONENTS ALWAYS CHECK FOR GAS
TIGHTNESS WHERE RELEVANT AND CARRY OUT FUNCTIONAL CHECKS AS
DESCRIBED IN THE COMMISSIONING SECTION.
A
C
B
Spare Fuse order
T1.6A L250V F2
T2.5A L250V F1
T500mA L250V F3

Other manuals for Worcester Greenstar Highflow 550CDi

Related product manuals