EasyManua.ls Logo

Worcester Greenstar Highflow 550CDi

Worcester Greenstar Highflow 550CDi
60 pages
To Next Page IconTo Next Page
To Next Page IconTo Next Page
To Previous Page IconTo Previous Page
To Previous Page IconTo Previous Page
Loading...
FAULT FINDING
& DIAGRAMS
INSTALLATION & SERVICING INSTRUCTIONS
49
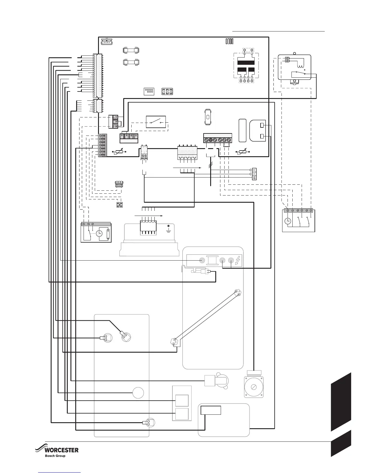
ELECTRICAL WIRING DIAGRAM
8 716 115 219c (03.2010)
ELECTRICAL WIRING DIAGRAM
T2.5 A, H 230 V
Fuse F3, T 0.5 A, L250V
Fuse F2, T 1.6A, L250V
FS FRNPLP
L
N
S
N
LS LR
ST8
ST9
ST17
ST18
ST5
ST4
ST10
MAINS
SUPPLY
SPARK
TRANSFORMER
FLAME SENSE
ELECTRODE
SPARK
ELECTRODES
FLOW NTC
FLOW
TURBINE
DIVERTER
VALVE
TANK
OVERHEAT
TANK
SENSOR
DHW
SENSOR
ST1
DIAGNOSTIC
INTERFACE
CODE PLUG
Fuse F1, slow
ST6
CH TEMPERATURE
CONTROL
Outside sensor
(FW 100)
External volt free
programmer option
(used with MT10 timer)
Neutral
Live
Neutral
Live
Colour sequence
7
8
9
230V/AC
9V
25V
B
B
4
2
1
A
F
FLUE
OVERHEAT
STAT
*
*
PRE WIRED LINK
*
Wall plate contacts
(for FX controls)
BB
DHW TEMPERATURE
CONTROL
Earth
PUMP SUPPLY
FAN
Colour sequence
PUMP
EXTERNAL
FROST STAT
(OPTIONAL)
GAS
VALVE
SAFETY
SOLENOID
SAFETY
SOLENOID
OVERHEAT
STAT
Red
Yellow
Green
Orange
Violet
Blue
Black
Pink
White
Yellow
Red
CONDENSATE
PUMP
HIGH LEVEL
SENSOR
230V HW interface
(Installer Module)
located to the right
of the control panel
External 230V twin
channel programmer
option
NC
NO
C
Red
Orange
Blue
Yellow
Green
Black
CH DHW
WORCESTER 24V CONTROLS
OPTION, PLUG IN POINT
(under blanking cover on fascia)
EMS BUS contacts
(for FX controls)
NC NO
C

Other manuals for Worcester Greenstar Highflow 550CDi

Related product manuals