EasyManua.ls Logo

Yamaha F80TLRZ - Rigging; Connecting the Cables-Summary

Yamaha F80TLRZ
497 pages
Print Icon
To Next Page IconTo Next Page
To Next Page IconTo Next Page
To Previous Page IconTo Previous Page
To Previous Page IconTo Previous Page
Loading...
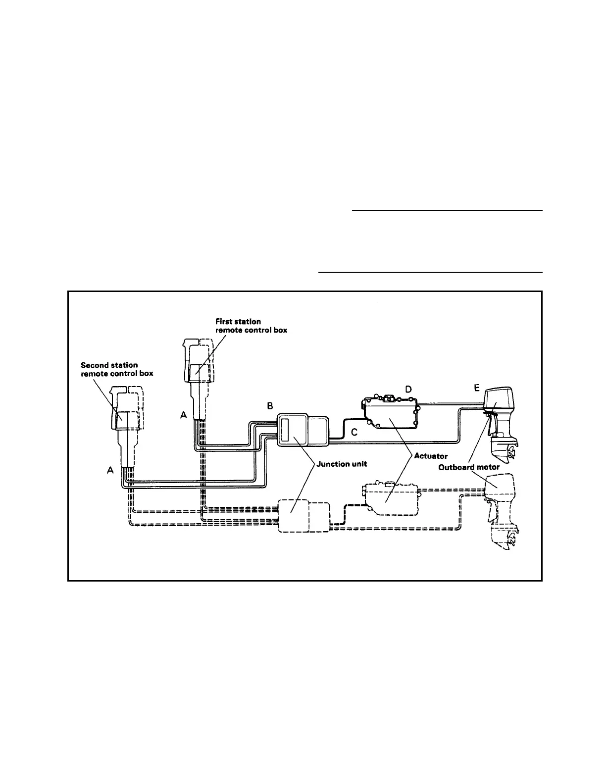
RIGGING
CONNECTING THE CABLES-SUMMARY
Connecting the cables in the following order:
A: 704 remote control boxes
B: Remote control box cables to junction unit
C. Throttle cable to junction unit
D. Shift cable to actuator
E. Outboard motor cable ends
NOTE:
Before connecting the cables, set the remote
control box and the outboard to the neutral
position for the shift cable and to the fully
closed position for the throttle cable.
10A-16

Table of Contents

Related product manuals