EasyManua.ls Logo

Yanmar 2YM15 - Piston and Ring Standards

Yanmar 2YM15
231 pages
Print Icon
To Next Page IconTo Next Page
To Next Page IconTo Next Page
To Previous Page IconTo Previous Page
To Previous Page IconTo Previous Page
Loading...
12. Electrical System
184
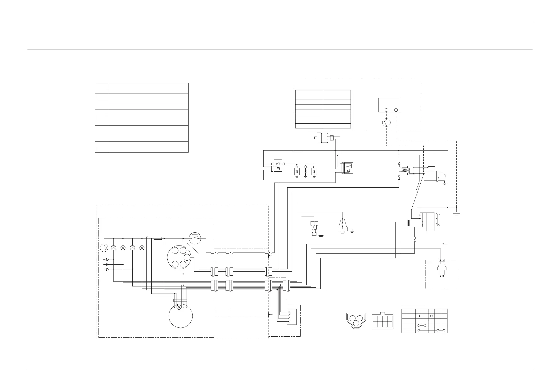
12.1.1 Wiring diagram
For B-type instrument panel
-
+
Starter relay
C.W. temp. switch Eng. oil pressure switch
Sail drive
only for sail drive
S
B
L
E
3R
0.85LB
0.85RB
0.85YW
0.85WL
0.85 O
0.85YG
Battery
Starter
Earth bolt
Alternator
Wire
harness
R
Wire harness
2L
12V
1
3
2
Battery switch
Procured by customer
L=1+2+3(m)
Allowable Length by
cross sectional area
of battery cable
10R
10B
0.85B
Eng.stop solenoid
2B
2R
Stop Relay
WBr
2B
5R
+
-
Relay
W/Y
B
3BR
B
Y
Amplifier
only for sail drive
+
-
B
L
YG
RB
Section of cable
Allowable Length
(mm
2
)
15(mm
2
)
<0.86(m)
20(mm
2
)
<1.3(m)
<2.3(m)
30(mm
2
)
40(mm
2
)
<2.8(m)
<3.5(m)
50(mm
2
)
2W
60(mm
2
)
<4.1(m)
CFW
temp.
Buzzer
oil press.
Tacho meter
Instrument panel
17
G1
+-P
G2
Key switch
Stop switch
30
WBr
hour meter
AC
fuse (3A)
Alarm lamps
diodes
R
L
L
R
W
O
B
YW WL YG LB
Sail
drive
seal Charge
Grow plug
2B
2B
5R
Option
L=6M
Option
L=3M
2W
2B
0.85B
128990-77910
119247-77100
120270
-77511
119717
-77800
0.85WBr
2R
A
A
(Color coding)
R Red
B Black
W White
L Blue
RB Red / Black
LB Blue / Black
YW Yellow / White
YG Yellow / Green
WL White / Blue
WG
GR
White / Green
Green / Red
O Orange
WBr White / Brown
3R 3W
YW WL WG B
RB LB O YG
Key switch
Coupler
(View from A-A)
GLOW
OFF
ON
START
30 AC G1 G2 17
3L

Table of Contents

Other manuals for Yanmar 2YM15

Related product manuals