EasyManua.ls Logo

YASKAWA CDBR-****D - Page 25

YASKAWA CDBR-****D
72 pages
Print Icon
To Next Page IconTo Next Page
To Next Page IconTo Next Page
To Previous Page IconTo Previous Page
To Previous Page IconTo Previous Page
Loading...
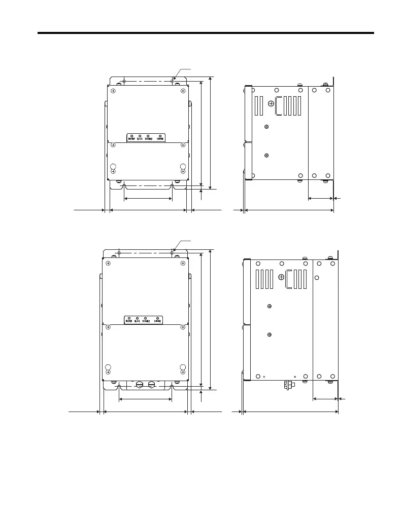
5 Mechanical Installation
YASKAWA ELECTRIC TOBP C720600 01E YASKAWA AC Drive Option CDBR-D, LKEB- Installation Manual 25
IP00
4-d
W Max. W2
Max. W2
W1
D
t1D1
t2
H
H1
H2
Figure 1
W Max. W2Max. W2
W1
D
t1D1
t2
4-d
H
H1
H2
Figure 2
TOBP_C720600_01E_9_0_E.book 25 ージ 017年8月25日 金曜日 午後2時8

Related product manuals