EasyManua.ls Logo

YASKAWA JUSP-OP05A-1-E - Page 156

YASKAWA JUSP-OP05A-1-E
216 pages
Print Icon
To Next Page IconTo Next Page
To Next Page IconTo Next Page
To Previous Page IconTo Previous Page
To Previous Page IconTo Previous Page
Loading...
3.2 Operating Procedures for Utility Functions
3.2.31 Adjust Anti-resonance Control (Fn204)
3-94
4
Press the Key.
The following display will appear
and detection of the vibration fre-
quency will start. During detection,
freq will flash on the display. Return
to step 3 if vibration is not detected.
Note: If vibration is not detected even
when vibration is occurring, lower
the setting of Pn311 (Vibration
Detection Sensitivity). If the set-
ting of this parameter is lowered,
the detection sensitivity will be
increased. Vibration may not be
detected accurately if the setting is
too small.
The vibration frequency will be dis-
played at freq if vibration is
detected.
5
Press the Key.
The cursor will move to damp and
freq will stop flashing.
Continued on next page.
Continued from previous page.
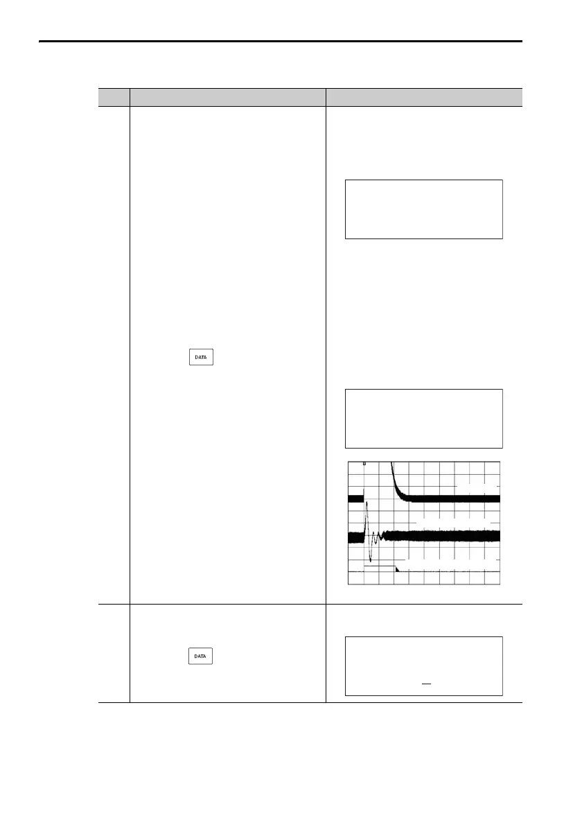
Step Operation Result
1:RUN Vib S up
f r e q = - - - - Hz
d a m p =0000
1:RUN Vib S up
f r e q = 0 4 0 0 Hz
d a m p =0000
Measured Waveform Example
Deviation
Torque reference
Positioning Completion signal
1:RUN Vib S up
f r e q = 0 4 0 0 Hz
d a m p =0000

Table of Contents

Other manuals for YASKAWA JUSP-OP05A-1-E

Related product manuals