EasyManua.ls Logo

YASKAWA motoman NX100

YASKAWA motoman NX100
405 pages
To Next Page IconTo Next Page
To Next Page IconTo Next Page
To Previous Page IconTo Previous Page
To Previous Page IconTo Previous Page
Loading...
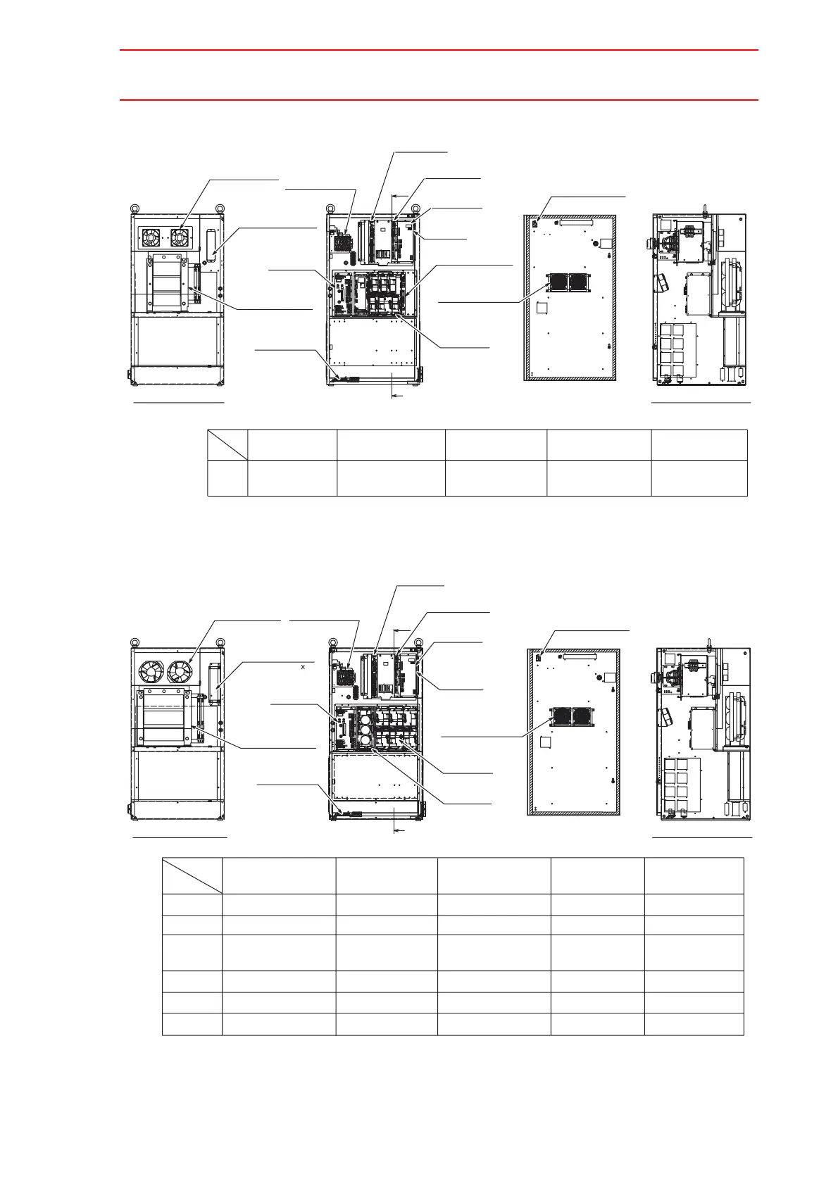
6.4 Equipment Configuration
6-7
Configuration 2 for Small-Capacity NX100
Medium and Large Capacity
NJ2096-
DATE
SER!!NO.
JAPAN
TYPE
YASKAWA!!!ELECTRIC!!!CORPORATION
HW1B-V404R
Emergency!Stop!Button
SGDR-AXA01A
Circuit!Board
Control!Power
CPS-420F
Supply
JZNC-NRK01
CPU!Unit
JANCD-XEW01
Welding!Circuit!Board
(Arc!Welding!Apprication)
Major!Axes!Control
SERVOPACK
Refer!to!the
following!table
4715MS-22T-B50-B00
(Air!flows!down)
Sectional!View!A-A'
Interior!Circulation!Fan
A
194RF-NC030R14
Fuse!Disconect!Switch
REV.
OFF
Backside!Duct!Fan
4715MS-22T-B50-B00
(For!air!inlet)
(220W,12.5!
)
Contactor!Unit
Power!Supply
Refer!to!the
following!table
Regenerative!Resistor
MRC22-125K-220W-12.5!
A'
Terminal!Block
(MXT)
Robot!System!Input
Step-down!Transformer
Back!View
(with!removed!cover)
JZNC-NIF01
Robot!I/F!Unit
EA1900N
SGDR-COA080A01B
Converter
(Disconnect!Switch)
JZRCR-NTU01-2
ATDR10!10A!*
SGDR-HP20Y30
ERCR-HP20-AB00
HP20
Contactor!Unit
Power!Supply
Fuse
SERVOPACK
Model
NX100
Type
SUPPLY
DATE
No.
POWER
CPS-NX1
FEDC
RQPN
BA
ML
KJH
VUT
G
S
232425 26
030405 06
131415 16
21
01
11
22
02
12
282930
080910
181920
27
07
17
Option!PCI!Slot!#AXIS
Option!PCI!Slot!#CPU1
Option!PCI!Slot!#CPU2
CN3
NIF PCI
CN1 CN2
CN2
AXIS
CN1
EXT
PCIPCI CPU
LAN1
CN6
CPS-420
BOTTOM!CONNECTER!VIEW
CN1
CN3
Front!Side
COMLAN0
F1 F2 CN04
JANCD-
XEW01-
Back!Side
SS
UU
SS
EE
FF
UU
EE
FF
Co.,Ltd.FujiElectric JAPAN
CN02
S1
CN03CN01
*!3-phase!480!AVC,!with!built-in!transformer
CN05
(+24V1)
+5VSB
+5V
+24V
OTHER
FAN
PON
OHT
SOURCE
50/60Hz
INPUT
(AC!IN)
CN01
(REMOTE)
CN02
(TU)
CN04
(+24V2)
CN03
200-240V!AC
3A
PEPE
Do!not!open!the!cover.
High!Voltage
WARNING
May!!cause
electric!!shock.
Ground!!the!!earth!!terminal
based!!on!!local!!code.
WARNING
May!!cause
electric!!shock.
Ground!!the!!earth!!terminal
based!!on!!local!!code.
WARNING
3FU
5A!125V
CN08
4X
10A!250V
1FU
10A!250V
2FU
5
7
8
9
A
6
3
2
4
F
E
B
D
C
CN03
CN04
CN05
3X
SW1CN01
CN02
1X
2X
CN07
CN06
NJ2096-
DATE
SER!!NO.
JAPAN
TYPE
YASKAWA!!!ELECTRIC!!!CORPORATION
OFF
HW1B-V404R
Emergency!Stop!Button
Sectional!View!A-A'
ATDR20!20A!*
ATDR20!20A!*
SGDR-ES165NY28
JZRCR-NTU02-2
ATDR20!20A!*
SGDR-COA250A01B
SGDR-ES165NERCR-ES200N-AB00
SGDR-COA250A01B
SGDR-COA250A01B
JZRCR-NTU02-2
JZRCR-NTU02-2SGDR-ES165NY28
ES165RN
ES200RN
ERCR-ES200RN-AB00
ERCR-ES165RN-AB00
ES200N
JZRCR-NTU02-2ATDR15!15A!*
SGDR-COA250A01B
SGDR-EH50Y27ERCR-UP20MN-AB00
UP50N
Step-down!Transformer
Backside!Duct!Fan
5915PC-22T-B30-B00
(For!air!inlet)
(Disconnect!Switch)
Fuse
Circuit!Board
SGDR-AXA01A
Major!Axes!Control
Control!Power
CPS-420F
Supply
JZNC-NIF01
Robot!I/F!Unit
JZRCR-NTU02-2
JZRCR-NTU02-2
ATDR20!20A!*
ATDR15!15A!*
SGDR-COA250A01B
SGDR-ES165NERCR-ES165N-AB00
ES165N
HP165
SGDR-COA250A01B
Converter
Converter
Refer!to!the
following!table
CPU!Unit
A
JZNC-NRK01
Fuse!Disconect!Switch
194RF-NC030R14
(1500W,!6!
)
Regenerative!Resistor
RDC50N2R0JI200
3S
SERVOPACK
A'
Refer!to!the
following!table
Power!Supply
Contactor!Unit
(MXT)
Terminal!Block
Robot!System!Input
4715MS-22T-B50-B00
Interior!Circulation!Fan
(Air!flows!down)
Refer!to!the
following!table
Power!Supply
Contactor!Unit
SGDR-EH50Y24
NX100
Model
UP20MN
Type
ERCR-UP50N-AB00
(with!removed!cover)
SERVOPACK
Back!View
17
07
27
JAPAN
201918
100908
302928
SUPPLY
12
02
22
Electric
CPS-NX1
POWER
No.
11
01
21
Fuji
DATE
16151413
06050403
26252423
Co.,Ltd.
S
G
TUV
HJK
LM
AB
NPQR
CDEF
LAN0 COM
Front!Side
CN3
CN1
BOTTOM!CONNECTER!VIEW
CPS-420
CN6
LAN1
CPUPCI PCI
EXT
CN1
AXIS
CN2
CN2CN1
PCINIF
Back!Side
CN3
Option!PCI!Slot!#CPU2
Option!PCI!Slot!#CPU1
Option!PCI!Slot!#AXIS
SS
EE
FF
UU
SOURCE
OHT
PON
FAN
OTHER
+24V
+5V
+5VSB
(+24V1)
CN05
CN01
(AC!IN)
CN03
(+24V2)
CN04
(TU)
INPUT
CN02
(REMOTE)
50/60Hz
3A
200-240V!AC
CN083FU
5A!125V
10A!250V
2FU
CN07
CN06
CN05
CN04
4X
CN03CN02
CN01 SW1
3X
2X
1X
WARNING
High!Voltage
Do!not!open!the!cover.
WARNING
based!!on!!local!!code.
Ground!!the!!earth!!terminal
electric!!shock.
May!!cause
WARNING
based!!on!!local!!code.
Ground!!the!!earth!!terminal
electric!!shock.
May!!cause
PEPE
*!3-phase!480!VAC,!with!built-in!transformer
EE
FF
SS
UU
1FU
10A!250V

Other manuals for YASKAWA motoman NX100

Related product manuals