EasyManua.ls Logo

YASKAWA motoman NX100

YASKAWA motoman NX100
405 pages
To Next Page IconTo Next Page
To Next Page IconTo Next Page
To Previous Page IconTo Previous Page
To Previous Page IconTo Previous Page
Loading...
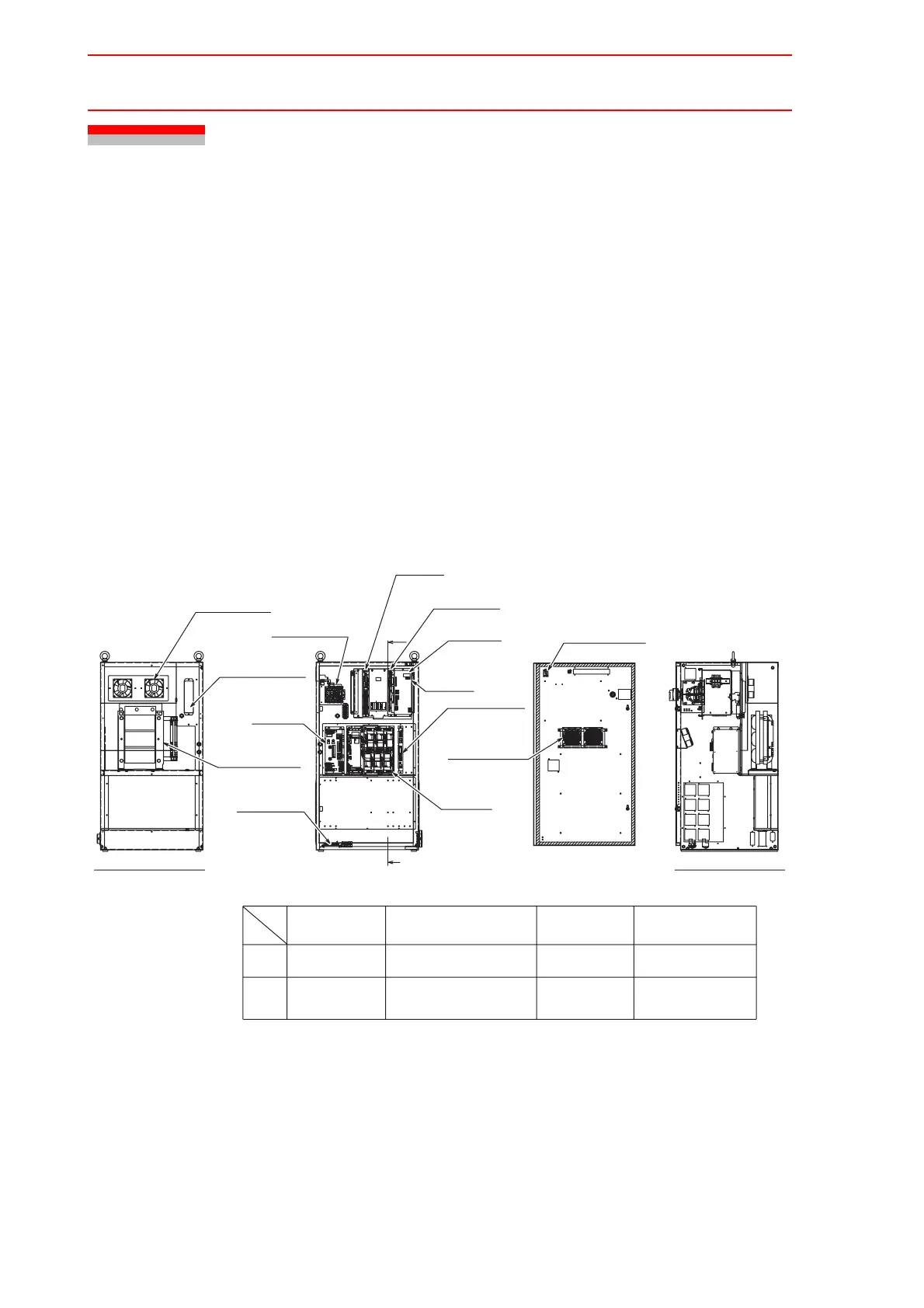
6.4 Equipment Configuration
6-6
6.4 Equipment Configuration
The NX100 is comprised of individual units and modules (circuit boards). Malfunctioning com-
ponents can generally be easily repaired after a failure by replacing a unit or a module.
This section explains the configuration of the NX100 equipment.
6.4.1 Arrangement of Units and Circuit Boards
" Configuration
The arrangements of units and circuit boards in small-capacity, medium-capacity, and large-
capacity NX100s are shown.
Small Capacity
SERVOPACK Fuse Disconnect Switch Power Supply Contact Unit
Configuration 1 for Small-Capacity NX100
NJ2096-
DATE
SER!!NO.
JAPAN
TYPE
YASKAWA!!!ELECTRIC!!!CORPORATION
OFF
REV.
(Arc!Welding!Apprication)
HP3
JZRCR-NTU01-2
ATDR5!5A!*
ERCR-EA1400N-AB00
HP6
EA1400N
SGDR-EA1400N
Step-down!Transformer
(Disconnect!Switch)
CPU!Unit
JZNC-NRK01
CPS-420F
Supply
Control!Power
Robot!I/F!Unit
JZNC-NIF01
Circuit!Board
SGDR-AXA01A
Major!Axes!Control
ATDR5!3A!*
JZRCR-NTU01-2
Contactor!Unit
Power!Supply
Fuse
(Converter!Intergrated)
SERVOPACK
SGDR-EA1400NY26
Model
NX100
Type
ERCR-HP3-AB00
(with!removed!cover)
Back!View
(220W,12.5!
)
MRC22-125K-220W-12.5
Regenerative!Resistor
(For!air!inlet)
4715MS-22T-B50-B00
(MXT)
Terminal!Block
Robot!System!input
following!table
Refer!to!the
Power!Supply
Contactor!Unit
Fuse!Disconect!Switch
194RF-NC030R14
JANCD-XEW01
Welding!Circuit!Board
following!table
Refer!to!the
SERVOPACK
(Air!flows!down)
4715MS-22T-B50-B00
Backside!Duct!Fan
Emergency!Stop!Button
Sectional!View!A-A'
A
A'
Interior!Circulation!Fan
HW1B-V404R
*!3-phase!480!AVC,!with!built-in!transformer
LAN0 COM
Front!Side
CN3
CN1
BOTTOM!CONNECTER!VIEW
CPS-420
CN6
LAN1
CPUPCI PCI
EXT
CN1
AXIS
CN2
CN2CN1
PCINIF
Back!Side
CN3
Option!PCI!Slot!#CPU2
Option!PCI!Slot!#CPU1
Option!PCI!Slot!#AXIS
17
07
27
JAPAN
201918
100908
302928
SUPPLY
12
02
22
Electric
CPS-NX1
POWER
No.
11
01
21
Fuji
DATE
16151413
06050403
26252423
Co.,Ltd.
S
G
TUV
HJK
LM
AB
NPQR
CDEF
FF
EE
UU
FF
EE
SS
UU
SS
XEW01-
JANCD-
CN04F2F1
CN03
S1
CN02CN01
SOURCE
OHT
PON
FAN
OTHER
+24V
+5V
+5VSB
(+24V1)
CN05
CN01
(AC!IN)
CN03
(+24V2)
CN04
(TU)
INPUT
CN02
(REMOTE)
50/60Hz
3A
200-240V!AC
WARNING
based!!on!!local!!code.
Ground!!the!!earth!!terminal
electric!!shock.
May!!cause
WARNING
based!!on!!local!!code.
Ground!!the!!earth!!terminal
electric!!shock.
May!!cause
WARNING
High!Voltage
Do!not!open!the!cover.
CN08
5A!125V
3FU
CN06
CN07CN05
CN04
2FU
10A!250V
1FU
10A!250V
4X
CN03CN02
CN01 SW1
3X
2X
1X
E
F
C
4
2
D
3
6
B
A
9
8
7
5
PEPE

Other manuals for YASKAWA motoman NX100

Related product manuals