EasyManua.ls Logo

YASKAWA YASNAC J50

YASKAWA YASNAC J50
180 pages
To Next Page IconTo Next Page
To Next Page IconTo Next Page
To Previous Page IconTo Previous Page
To Previous Page IconTo Previous Page
Loading...
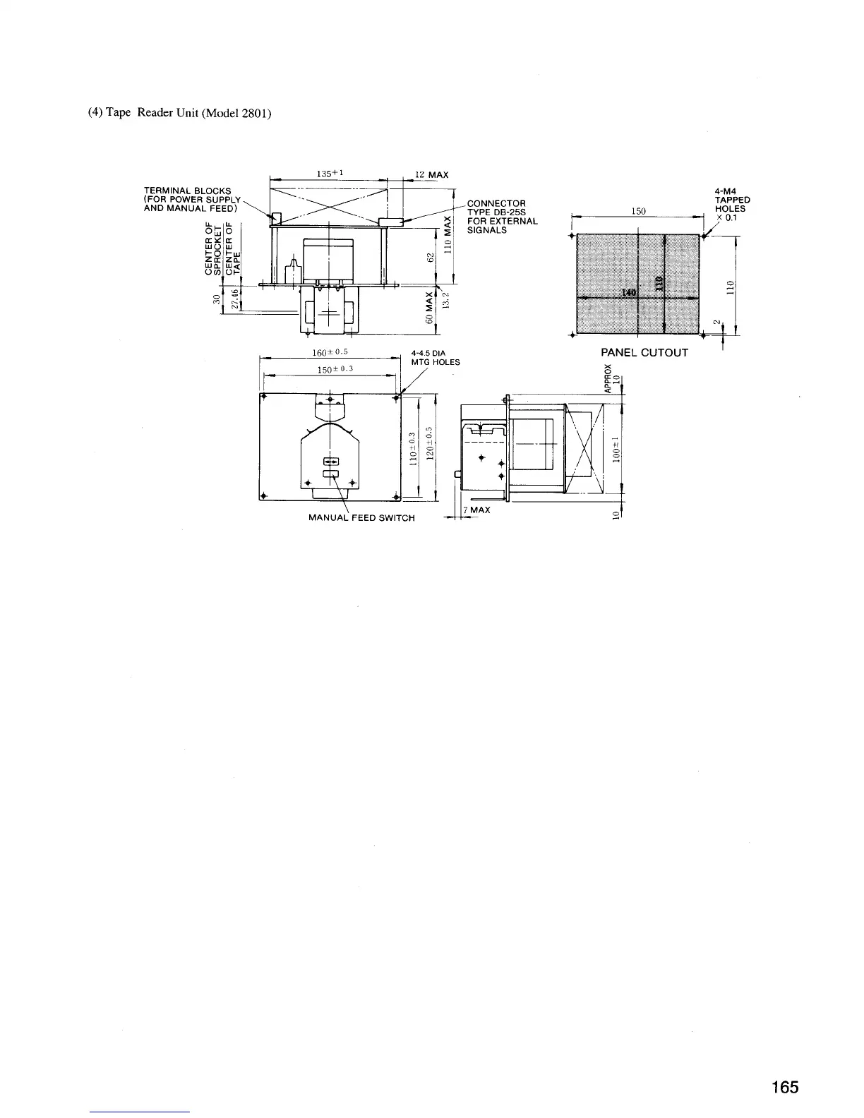
(4) Tape Reader Unit (Model 2801)
CONNECTOR
TYPE DB-25S
FOR EXTERNAL
SIGNALS
t
-. ..-.
160*U.~
-1
4-45 DIA
PANtL
MTG HOLES
. .
II
I :1 :1 II------III—-+11 VI I El
MANUA~FEEDSVWTCti &x
CUTOUT
I
165

Related product manuals