EasyManua.ls Logo

YOKOGAWA DY100

YOKOGAWA DY100
138 pages
To Next Page IconTo Next Page
To Next Page IconTo Next Page
To Previous Page IconTo Previous Page
To Previous Page IconTo Previous Page
Loading...
9-28
IM 01F06A00-01E
9. GENERAL DESCRIPTION
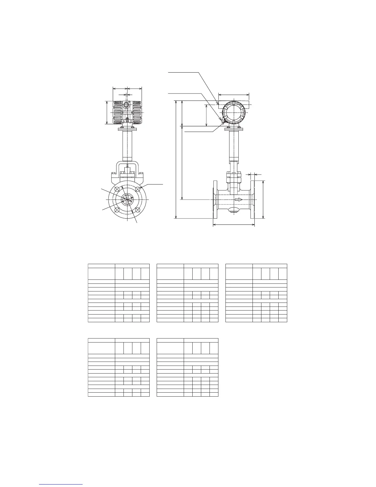
High Process Temperature Version Reduced Bore Type (/R1/HT): DY040-/HT/R1 up to DY150-/R1/HT
Flange type
N- φG
φC
φCS
φJ
ELECTRICAL
CONNECTION
EARTH TERMINAL
87.5
103.5
CLAMP
H
H1
125
T
L
φD
59 59
4.5
φ94
DY040 /R1/HT
272
4
BA1
BS1
BP1
127
439
17.5
98.6
15.7
9.8
BA2
BS2
BP2
155.4
453
20.6
114.3
22.4
13.0
DY050 /R1/HT
BA1
BS1
BP1
152.4
458.5
19.1
120.7
4
19
11.8
BA2
BS2
BP2
165.1
465
22.4
127
8
19
14.0
DY080 /R1/HT
BA1
BS1
BP1
190.5
500
23.9
152.4
4
19
22.3
BA2
BS2
BP2
209.6
509.5
28.4
168.2
8
22.4
27.3
279
301
170
51.1
39.7
200
71
51.1
BJ1
155
460
16
120
4
19
10.9
BJ2
155
460
18
120
8
19
11.5
BJ1
140
445.5
16
105
19
10
BJ2
140
445.5
18
105
19
10.5
BJ1
185
497
18
150
8
19
19
BJ2
200
504.5
22
160
8
23
22.1
150
39.7
25.7
Model Code
Process
Connection
L
C
CS
D
H
H1
T
J
N
G
Weight kg
Model Code
Process
Connection
L
C
CS
D
H
H1
T
J
N
G
Weight kg
Model Code
Process
Connection
L
C
CS
D
H
H1
T
J
N
G
Weight kg
Model Code
Process
Connection
L
C
CS
D
H
H1
T
J
N
G
Weight kg
Model Code
Process
Connection
L
C
CS
D
H
H1
T
J
N
G
Weight kg
DY100 /R1/HT
BA1
BS1
BP1
228.6
536
23.9
190.5
19
31.0
BA2
BS2
BP2
254
548.5
31.8
200.2
22.4
41.4
DY150 /R1/HT
BA1
BS1
BP1
279.4
576
25.4
241.3
8
22.4
49.4
BA2
BS2
BP2
317.5
595.5
36.6
269.7
12
22.4
71.7
BJ1
280
576.5
22
240
8
23
45.9
BJ2
305
589
28
260
12
25
56.3
BJ1
210
526.5
18
175
19
25.4
BJ2
225
534
24
185
23
30.4
220
93.8
71
318
8
333
270
138.8
93.8
Only For
TIIS Explosion proof
KEMA Explosion proof

Table of Contents

Related product manuals