EasyManua.ls Logo

YOKOGAWA DY100

YOKOGAWA DY100
138 pages
To Next Page IconTo Next Page
To Next Page IconTo Next Page
To Previous Page IconTo Previous Page
To Previous Page IconTo Previous Page
Loading...
9-29
IM 01F06A00-01E
9. GENERAL DESCRIPTION
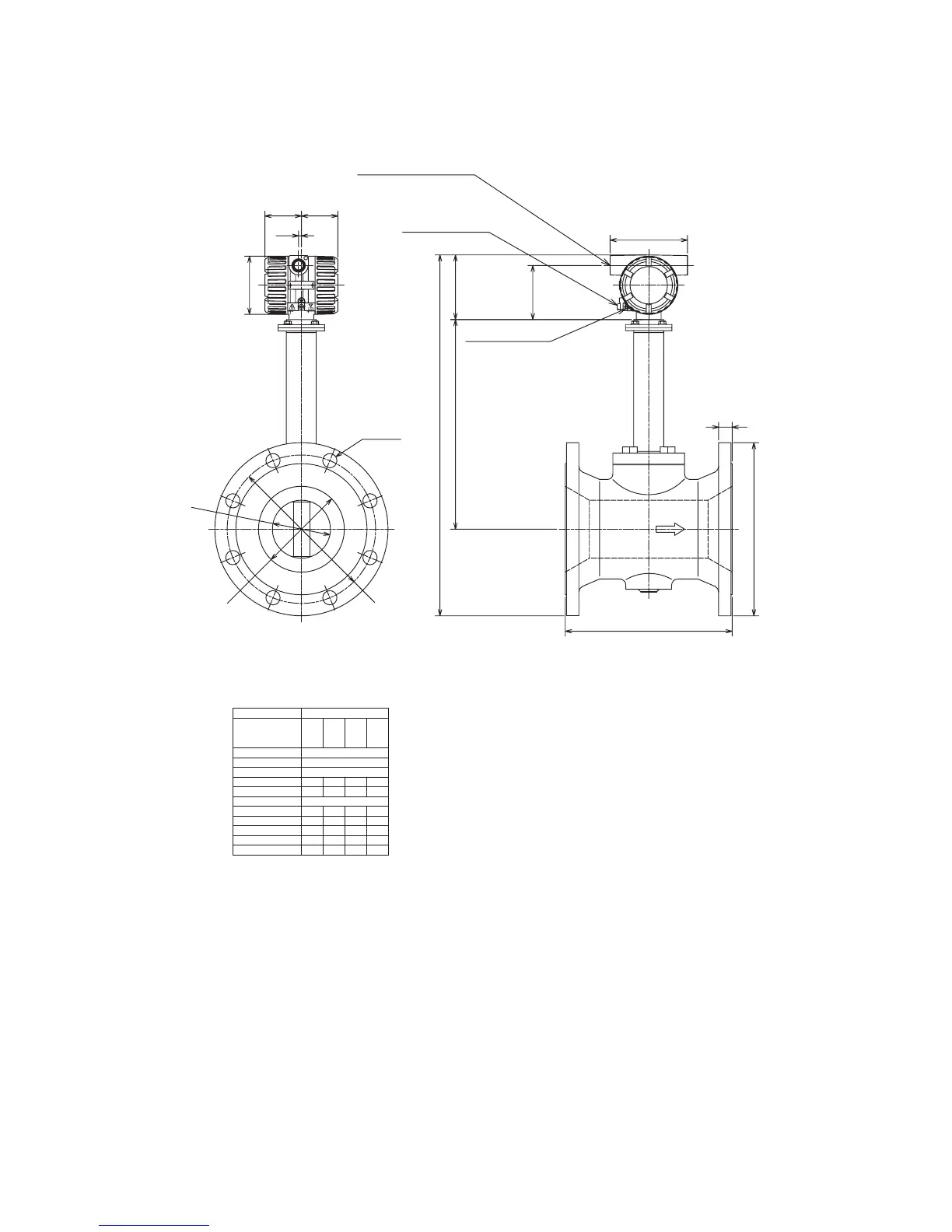
High Process Temperature Version Reduced Bore Type (/R1/HT): DY200-/R1/HT
Flange type
φD
N-
φ
G
φ
CS
φ
C
φ
J
125
87.5
103.5
T
L
H
H1
φ
94
4.5
59 59
ELECTRICAL CONNECTION
JIS G1/2 Female
ANSI 1/2NPT Female
ISO M20 x 1.5 Female
CLAMP
Only For
TIIS Explosion proof
KEMA Explosion proof
EARTH TERMINAL
Model Code
Process
Connection
L
C
CS
D
H
H1
T
J
N
G
Weight kg
310
185.6
138.8
DY200 /R1/HT
339
BA1
BS1
BP1
342.9
614
28.4
298.5
8
22.4
70.7
BA2
BS2
BP2
381
633
41.1
330.2
12
25.4
102.9
BJ1
330
607.5
22
290
12
23
58.7
BJ2
350
617.5
30
305
12
25
74.1

Table of Contents

Related product manuals