EasyManua.ls Logo

York AFFINITY DNZ060 - Typical Wiring Diagrams

York AFFINITY DNZ060
32 pages
Print Icon
To Next Page IconTo Next Page
To Next Page IconTo Next Page
To Previous Page IconTo Previous Page
To Previous Page IconTo Previous Page
Loading...
508258-YIM-E-0412
Johnson Controls Unitary Products 27
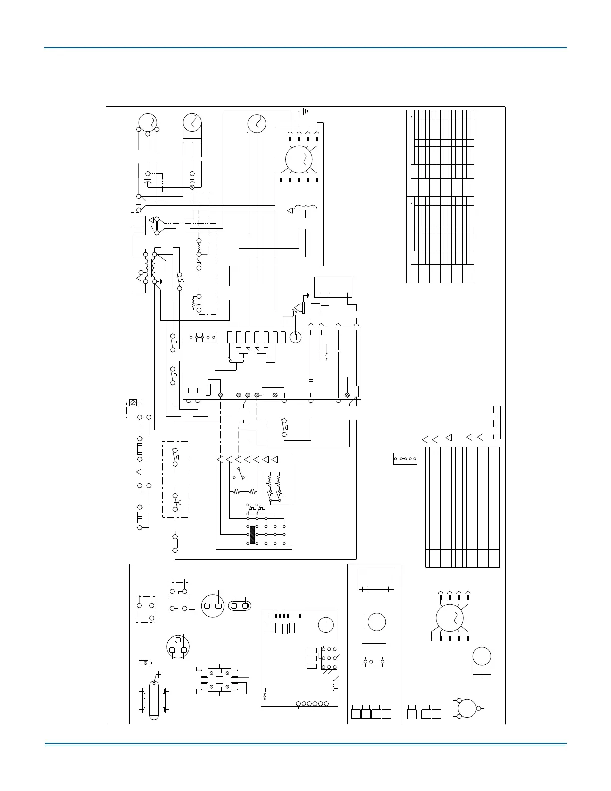
Typical Wiring Diagrams
Typical DNZ024-060 Cooling Unit with Single Stage Gas Heat 208/230-1-60 volt Wiring Diagram
LEGEND
ALS AUXILARY LIMIT SWITCH
ASCT ANTI-SHORT CYCLE TIMER (OPTIONAL)
CCH CRANK CASE HEATER (OPTIONAL)
COMPR COMPRESSOR
DM DRAFT MOTOR
EMCB ELEC, MOTOR CONTROL BOARD
GND GROUND
HP HIGH PRESS. SW. OPENS @ 625PSIG (R410A) / 380PSIG (R22)
IDFAN INDOOR FAN MOTOR
LP LOW PRESSURE SWITCH OPENS @ 7 PSIG
LS LIMIT SWITCH
M1 CONTACTOR, COMPR. AND OD FAN
ODFAN OUTDOOR FAN MOTOR
PS PRESSURE SWITCH
RC1/RC2 COMPRESSOR START & OUTDOOR FAN RUN CAPACITOR
RS ROLLOUT SWITCH
SC1 START CAPACITOR (OPTIONAL)
SR1 START RELAY (OPTIONAL)
T1 TRANSFORMER, 24V, 230V
TEMPERATURE CONTROLS
UNIT SIZE DEVICE
OPERATING TEMPERATURE (DEG F)
OPEN +/- CLOSE +/-
2 TUBE
024-036
RS 200 12 --- ---
LS 140 6 110 9
ALS 160 12 --- ---
3 TUBE
024-036
RS 270 12 --- ---
LS 160 6 130 9
ALS 160 12 --- ---
4 TUBE
036
RS 270 12 --- ---
LS 140 6
130
9
ALS 160 12 --- ---
3 TUBE
042
RS 200 12 --- ---
LS 140 6 110 9
ALS 160 12 --- ---
4 TUBE
042
RS 270 12 --- ---
LS 140 6 130 9
ALS 160 12 --- ---
TEMPERATURE CONTROLS
UNIT SIZE DEVICE
OPERATING TEMPERATURE (DEG F)
OPEN +/- CLOSE +/-
3 TUBE
048-060
RS 200 12 --- ---
LS 150 6 120 9
ALS 160 12 --- ---
4 TUBE
042
RS 270 12 --- ---
LS 140 6 110 9
ALS 160 12 --- ---
4 TUBE
048-060
RS 200 12 --- ---
LS 150 6 120 9
ALS 160 12 --- ---
4 TUBE
048-060
RS 270 12 --- ---
LS 175 6 145 9
ALS 160 12 --- ---
5 TUBE
048-060
RS 270 12 --- ---
LS 160 6 130 9
ALS 160 12 --- ---
COOLING UNIT WITH GAS HEAT
ELEMENTARY DIAGRAM
CAUTION - OPEN ALL DISCONNECTS
BEFORE SERVICING THIS UNIT
101/BK
103/BR
102/Y
104/R
BK
BR
100/BK
PR
205/R
OD_FAN
L1
L2
BLK
BLK
OPTIONAL CCH
S/P CONFIGURATION
L1
L2
BLK
BLK
OPTIONAL CCH
D/P CONFIGURATION
107/PR 100/BK
224/R 201/BR
281/BR
CONTROL BOX
101/BK 103/BR
102/Y
BK
BR
PR
BK
BK
CCH
POWER SUPPLY
208/230-1-60
USE COPPER CONDUCTORS ONLY
215/R
222/R
CONNECTION DIAGRAM
102/Y
104/R
BK
101/BK
124/BK
110/BK
100/BK
107/PR
127/PR
807/BL
806/BR
203/BR
M1AB
T1
L1
T2
L2
215/R
205/R
224/R
236/O
205/R
248/O
ALS
RS
LS
244/PR
245/PR
PS
DRAFT
MOTOR
PR BK
P
M
C
GAS VALVE
107/PR
203/BR
236/O
248/O
222/R
215/R
224/R
244/PR
245/PR
RED
BLK
BLU
201/BR
R
BK
BL
279/W
277/Y
110/BK
202/Y
222/R
201/BR
203/BR
RED
245/PR
220/BK
BLU
244/PR
BLK
236/0
BLK
PRP
RC2
277/Y
279/W
110/BK
105/BL
BR
PR
104/R
103/BR
PR
BR
104/R
RC1/RC2
202/Y
105/R
103/BR
RC1
ALTERNATE CAPACITOR WIRING
RC2
GRN
ID_FAN
(LOW)
(LOW/MED)
(MED)
(MED/HIGH)
(HIGH)
127/PR
124/BK
281/BR
BLK
ID_FAN
(LOW)
(LOW/MED)
(MED)
(MED/HIGH)
(HIGH)
GRN
127/PR
124/BK
281/BR
RED
BLK
BLU
CONTROL BOARD SETTINGS:
COMBUSTION BLOWER POSTPURGE: 30 SEC
INDOOR BLOWER HEAT ON DELAY: 30 SEC
INDOOR BLOWER COOL OFF DELAY: 30 SEC
INDOOR BLOWER HEAT OFF DELAY: FIELD SELECT
STRAIGHT LINE INDICATES SWITCH POSITION
180
120
90
60
229/BL (SEE NOTE 6)
805/BL
228/BK,803/BK,804/BK
227/BK
802/BK
LP
HP
225/Y
800/Y
A2
B7
226/BL
801/BL
202/Y
227/BK
802/BK
LR (SEE NOTE 6)
3
12
807/BL
806/BR
226/BL,801/BL
229/BL,805/BL
(SEE NOTE 6)
ACST
228/BK,803/BK,804/BK
237/Y
231/R
234/BK
233/W
1
P
230-1-60
LP
HP
C
PRI
24V SEC
40 VA
208V230V
T1
1
COMPR
C
S
R
230-1-60
M1AB
RS
PS
M1
L1 T1
RC1
ALSLS
M1
T2L2
GND
CCH
CCH_
GND
LUG
T1
SEC
230 208 C
COMPR
CS
R
OUTDOOR
FAN
47
HIGH LIMIT INPUT
ROLLOUT SWITCH INPUT
POWER TO GAS RELAY
COIL
SW1
BLOWER
OFF DELAY
SELECT
60
90
120
180
FS
L1
H-IND
IND
HEAT
COOL
CONT
SPARK
TRANSFORMER
CONTINUOUS
POWER FOR
LOGIC
R
24VAC
Y
C
W1
W2
P1-8
P1-3
P1-5
G
C
JW6 PRESENT
WHEN HIGH
PRESSURE
SWITCH NOT
USED
P1-2
P1-1
P1-4
P1-7
K2
K4
JW6
P1-9
P1-6
PILOT
K7
K7
K5
K5
K6
K6
K3
FLAME SENSE
K1
EMCB
3
8
9
6
7
4
1
2
5
GAS_VALVE
P
M
C
CONT
HEAT
COOL
L1
IND
FS
24VAC
C
R
C
W1
C
Y
G
P1
4
5
6
1
2
3
7
8
9
H-IND
W2
7
R
Rc
G
Y1
Y2
W1
W2
TH2
TH2 ANT
TH1
TH1 ANT
TC2
TC1
TC2
ANT
AUTO
ON
FAN SWITCH
TC1
ANT
OFF
HEAT
AUTO
COOL
ROOM THERMOSTAT
M
230V
C
L
G
N
1
2
3
4
5
1
1
2
3
4
9
1
DM
M
230V
C
L
G
N
1
2
3
4
5
1
1
2
3
4
ALT
GAS VALVE
PV
MV
PV/MV
SC1
125
SR1
848766-UWD-A-0312
NOTES:
1. ALL FIELD WIRING TO BE ACCOMPLISHED FOLLOWING CITY, LOCAL AND/OR
NATIONAL CODES IN EFFECT AT TIME OF INSTALLATION OF THIS UNIT.
2. CAUTION: LABEL ALL WIRES PRIOR TO DISCONNECTION WHEN SERVICING
CONTROLS. WIRING ERRORS CAN CAUSE IMPROPER AND DANGEROUS
OPERTION.IF ANY OF THE WIRE, AS SUPPLIED WITH THE UNIT MUST BE
REMOVED,IT MUST BE REPLACED WITH TYPE 105 DEGREE C, 600 VOLT
WIRE OREQUIVALENT CLEARLY RENUMBERED FOR IDENTIFICATION. VERIFY
PROPER OPERATION AFTER SERVICING.
3. MOTORS INHERENTLY PROTECTED
4. FACTORY WIRED FOR 230V. FOR 208V OPERATION, MOVE WIRE 107/PR TO
208V TAP ON TRANSFORMER T1.
5. SEE UNIT NAMEPLATE FOR MAXIMUM FUSE AND/OR CIRCUIT BREAKER SIZE
AND MINIMUM CIRCUIT AMPACITY.
6. REMOVED
9.
SELECT INDOOR BLOWER SPEED TO REMAIN WITHIN THE TEMPERATURE
RISE RANGE ON THE NAMEPLATE IN HEATING AND TO OBTAIN APPROX.
400 CFM/TON IN COOLING.
7.
SHUNT CONTACT ALSO USED WITH CRANKCASE
HEATER. (OPTIONAL)
FIELD WIRING
OPTIONAL WIRING AND DEVICES
FACTORY WIRING AND DEVICES
228/BK
803/804
229/BL
805/BL

Table of Contents