EasyManua.ls Logo

York DC180 - Ductwork

York DC180
59 pages
Print Icon
To Next Page IconTo Next Page
To Next Page IconTo Next Page
To Previous Page IconTo Previous Page
To Previous Page IconTo Previous Page
Loading...
5120416-XIM-C-0216
Johnson Controls Unitary Products 13
Ductwork
Ductwork should be designed and sized according to the
methods in Manual D of the Air Conditioning Contractors of
America (ACCA) or as recommended by any other recognized
authority such as ASHRAE or SMACNA.
A closed return duct system should be used. This will not
preclude use of economizers or outdoor fresh air intake. The
supply and return air duct connections at the unit should be
made with flexible joints to minimize noise.
The supply and return air duct systems should be designed for
the CFM and static pressure requirements of the job. They
should NOT be sized to match the dimensions of the duct
connections on the unit.
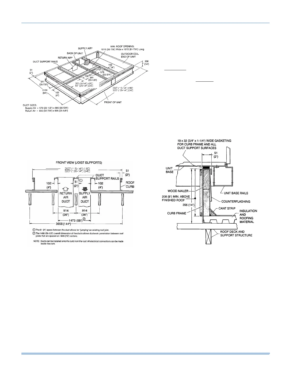
Refer to Figure 5 for bottom air duct openings. Refer to Figure 6
for side air duct openings.
NOTE: It is recommended that, in Canada, the outlet duct be
provided with a removable access panel. It is
recommended that this opening be accessible when
the unit is installed in service, and of a size such that
smoke or reflected light may be observed inside the
casing to indicate the presence of leaks in the heat
exchanger. The cover should be attached in a
manner adequate to prevent leakage.
Figure 8: Roof Curb Dimensions (All Models)
* Supply and Return air (including duct
support rails) as shown, are typical for
Downflow
duct applications
For location of Sideflow
duct applica-
tions (on back of unit), refer to Unit
Dimension details.
Figure 9: Roof Curb Benefits
Figure 10: Unit Curb And Applications

Table of Contents

Related product manuals