EasyManua.ls Logo

York MILLENNIUM - REFRIGERANT FLOW DIAGRAM; YCAS F Refrigerant Flow Diagram

York MILLENNIUM
20 pages
Print Icon
To Next Page IconTo Next Page
To Next Page IconTo Next Page
To Previous Page IconTo Previous Page
To Previous Page IconTo Previous Page
Loading...
FORM 201.18-NM1.2
13
YORK INTERNATIONAL
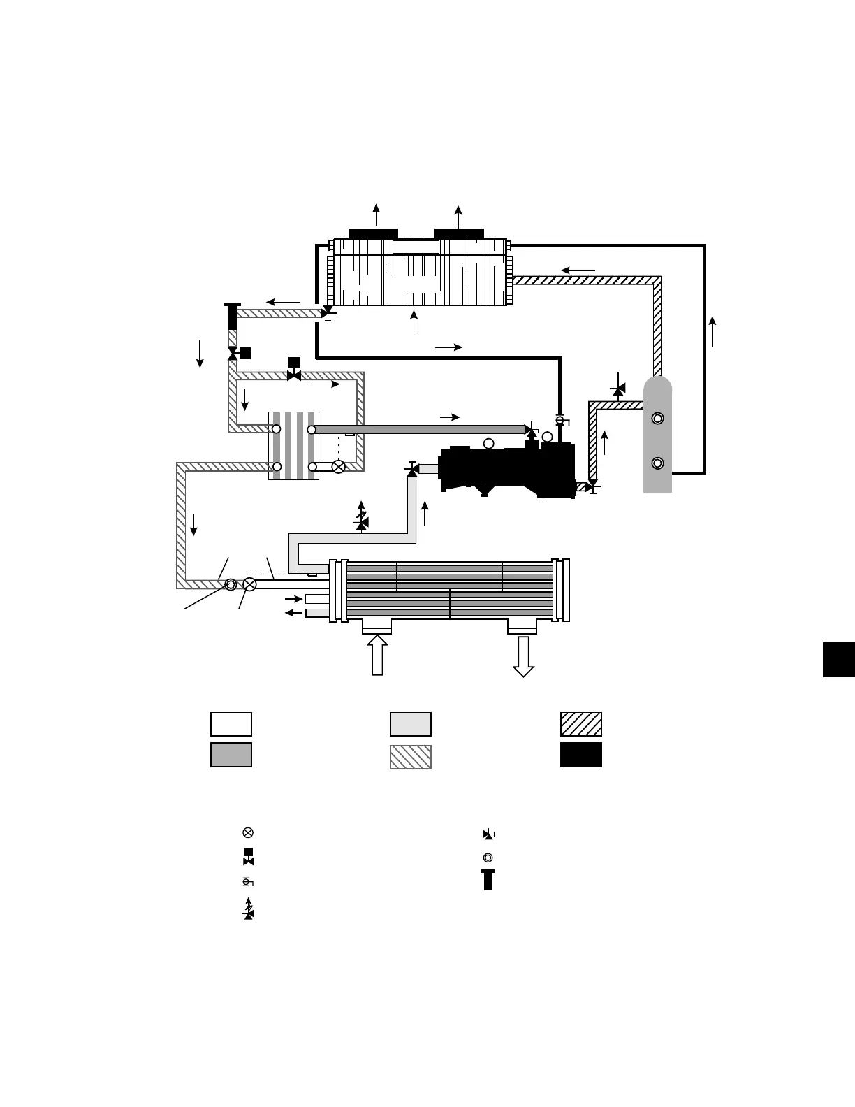
FIG. 4 – YCAS F REFRIGERANT FLOW DIAGRAM
REFRIGERANT FLOW DIAGRAM
YCAS STYLE F SCREW CHILLER
Single refrigerant circuit shown for simplicity.
Low Pressure Liquid
Medium Pressure Vapour
Low Pressure Vapour
High Pressure Liquid
High Pressure Vapour
Oil
COMP - Compressor CDR -Condenser Coil CLR - Cooler EC - Economizer (Added to some models)
OC - Oil Cooler OS - Oil Separator
- Air Entering Compressor R-22 - Refrigerant Circuit Number
Thermostatic Expansion ValveSolenoid Valve
Balance Valve
Relief Valves
Angle Stop Valve
Sight Glass
Replaceable Core Filter Drier
Solenoid Valve
CH.W
IN
CH.W
OUT
CLR
RC2
EC
COMP.
OS
CDR
OC
m /s
3
LD05019
15
A
D
2
COOL
GAS
B
OIL
6
4
C
3
LIQUID m
2
/s
HOT
GAS
SIGHT
GLASS
3

Related product manuals