EasyManua.ls Logo

York MILLENNIUM - SYSTEM DATA MONITORED BY RCC; RCC Monitored Data Diagram

York MILLENNIUM
20 pages
Print Icon
To Next Page IconTo Next Page
To Next Page IconTo Next Page
To Previous Page IconTo Previous Page
To Previous Page IconTo Previous Page
Loading...
YORK INTERNATIONAL
14
LD05446
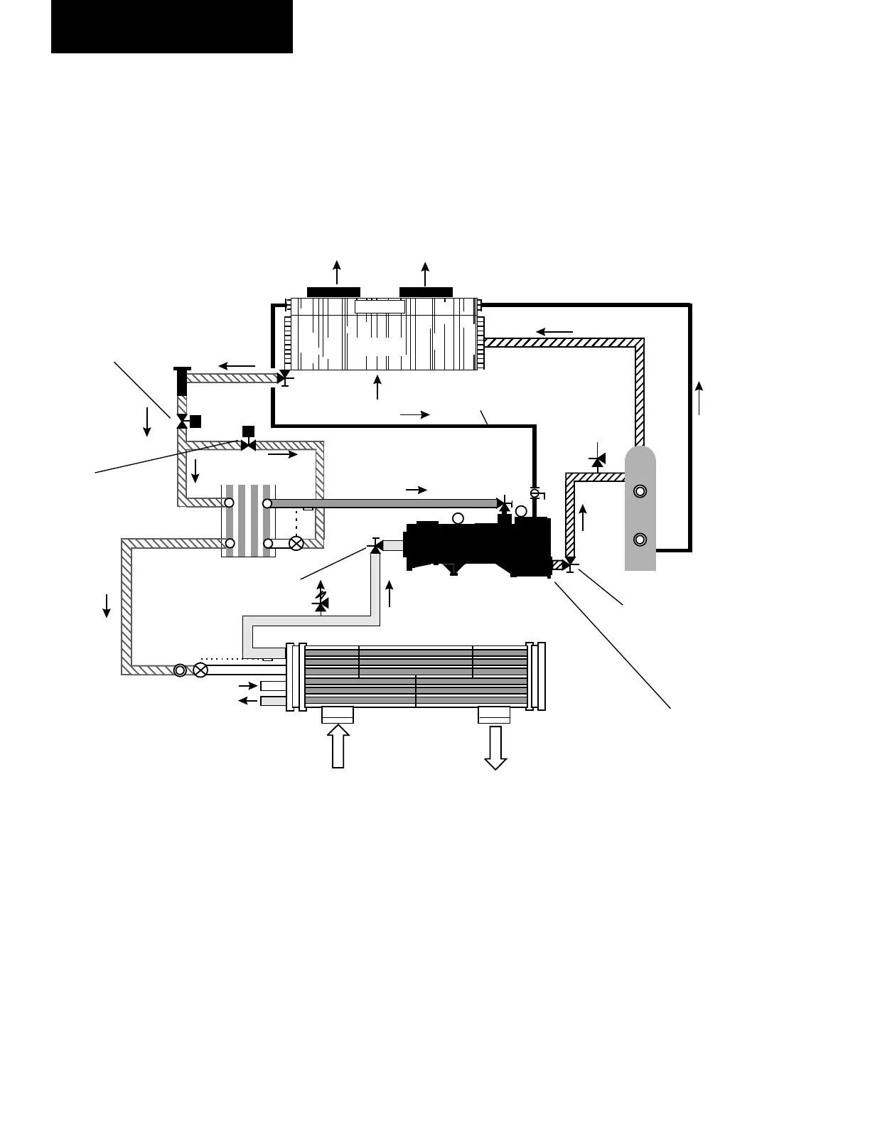
FIG. 5 SYSTEM DATA MONITORED BY RCC
SYSTEM DATA MONITORED BY THE RCC
CH.W
IN
RCHLT ˚F
CH.W
OUT
LCHLT ˚F
CLR
RC2
EC
COMP.
OS
CDR
OC
FAN STAGES
AMBIENT
AIR TEMP
OIL PRESS
OIL TEMP
m
2
/s
ECONO TXV
LLSOLV
On / Off
SUCTION PRESS,
TEMP,
S. HEAT
DISCH PRESS,
TEMP,
S. HEAT
Compressor Info.
MC % FLA
HOURS
STARTS
RUN TIME
SV STEP 0 - 75
WYE-DELTA On / Off
EVAP PUMP
STATUS
On / Off
////EVAP HEATER\\\\ On / Off
LLSOLV
On / Off
HOT
GAS
HOT
OIL
COOL
GAS
LIQUID
REFRIG.
COOL OIL
Refrigeration Overview

Related product manuals