EasyManua.ls Logo

York YLAA0200 - FIGURE 5 - Process and Instrumentation Diagram

York YLAA0200
178 pages
Print Icon
To Next Page IconTo Next Page
To Next Page IconTo Next Page
To Previous Page IconTo Previous Page
To Previous Page IconTo Previous Page
Loading...
JOHNSON CONTROLS
29
SECTION 2 – PRODUCT DESCRIPTION
FORM 150.72-ICOM6
ISSUE DATE: 12/29/2017
2
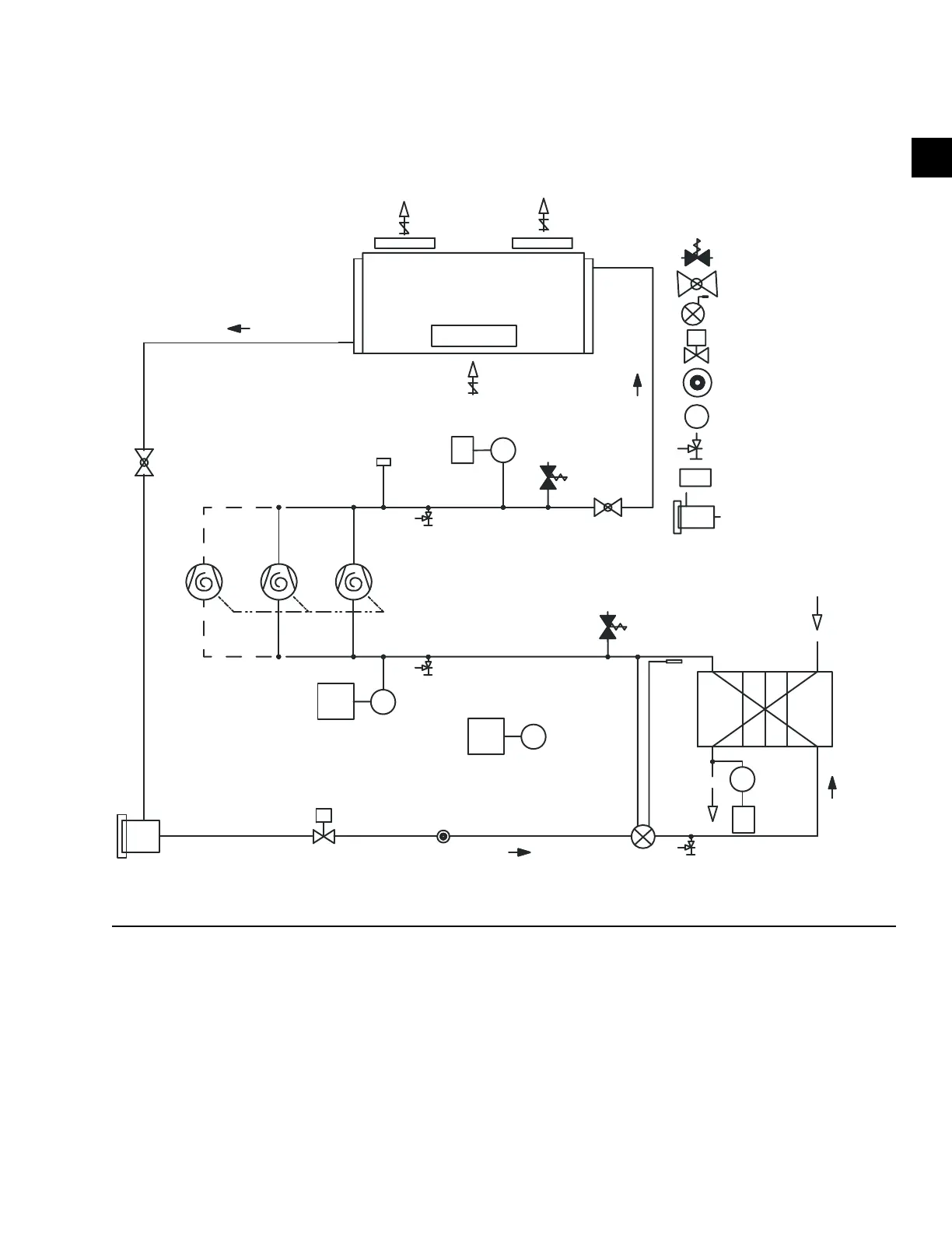
FIGURE 5 - PROCESS AND INSTRUMENTATION DIAGRAM
PS
ZCPR-1
ZCPR-2
ZCPR-3
DV
HPL
HPC
P
DV
LPC
P
Condenser
Fans Fans
-YLLSV
S
Chilled
Liquid
T
DV
CHT
LTC
Evaporator
Chilled
Liquid
See P.R.V.
Options
Compressors
Control Functions:
DV - Display Value
CHT - Chilled Liquid Temperature
HPC - High Pressure Cutout
LPC - Low Pressure Cutout
HPL - High Pressure Load Limiting
LTC - Low Temperature Cutout
Components:
Pressure Relief Valve
Service (Ball) Valve
Expansion Valve
Solenoid Valve
Sight Glass
Sensor Pressure
or Temperature
Service (Stop) Access Valve
Pressure Switch
Filter Drier
(Removable Core)
S
PS
T
Ambient Air Sensor
DV
HTC
LTC
585 PSIG
650 PSIG
450 PSIG
LD13139
Low pressure liquid refrigerant enters the cooler and
is evaporated and superheated by the heat energy ab-
sorbed from the chilled liquid passing through the
cooler shell. Low pressure vapor enters at the compres-
sor where pressure and superheat are increased. The
high pressure vapor is fed to the air cooled condenser
coil and fans where the heat is removed. The fully con-
densed and subcooled liquid passes through the expan-
sion valve where pressure is reduced and further cool-
ing takes place before entering to the cooler.

Table of Contents