EasyManua.ls Logo

York YLAA0200 - Page 63

York YLAA0200
178 pages
Print Icon
To Next Page IconTo Next Page
To Next Page IconTo Next Page
To Previous Page IconTo Previous Page
To Previous Page IconTo Previous Page
Loading...
JOHNSON CONTROLS
63
SECTION 5 – TECHNICAL DATA
FORM 150.72-ICOM6
ISSUE DATE: 12/29/2017
55
/'E


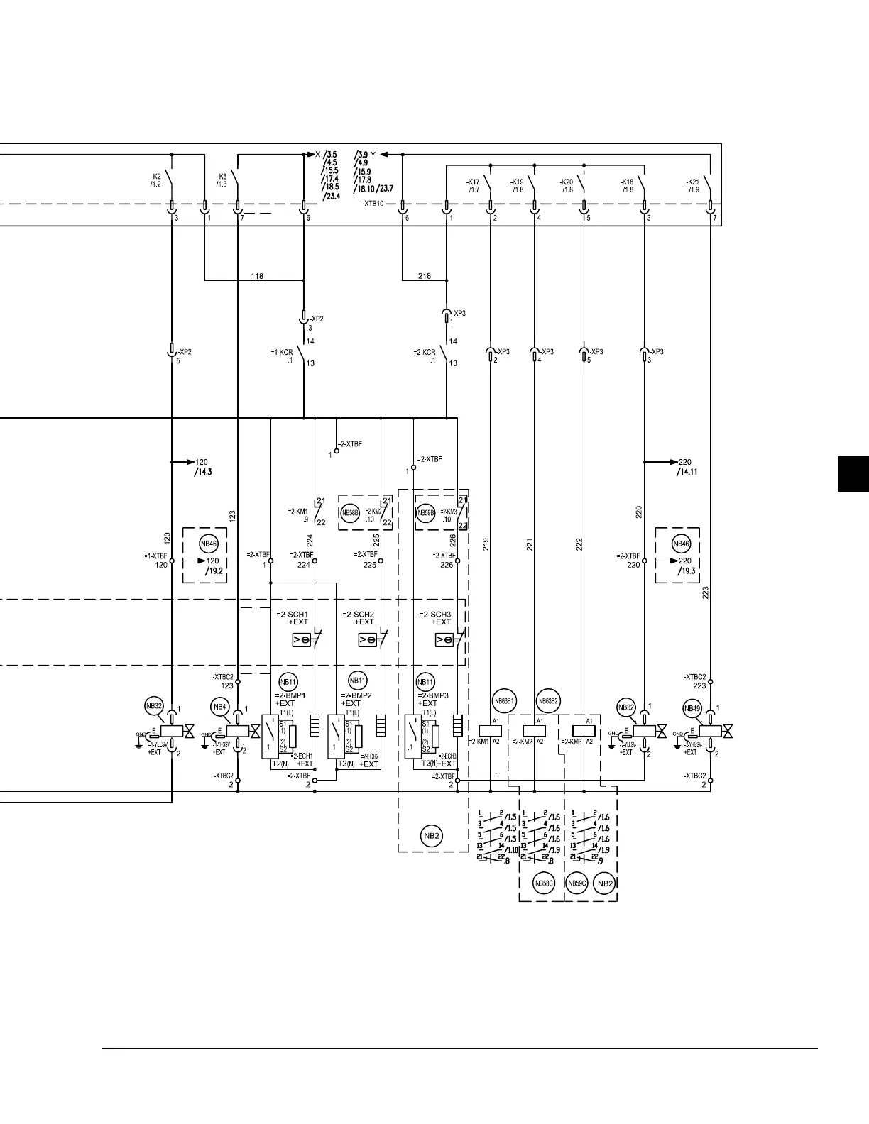
FIGURE 15 - ELEMENTARY WIRING DIAGRAM (CONT’D)
LD16751b
78910
11
DWG. 2

Table of Contents

Related product manuals