EasyManua.ls Logo

Zebra KR203 - Page 61

Zebra KR203
80 pages
Print Icon
To Next Page IconTo Next Page
To Next Page IconTo Next Page
To Previous Page IconTo Previous Page
To Previous Page IconTo Previous Page
Loading...
55
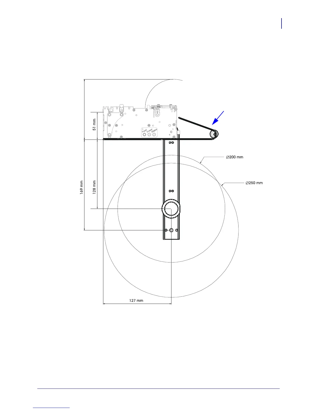
Accessories
Universal Roll Holder – P1014125
10/26/2010 KR203 Hardware Integrator Guide P1028247-001 Rev. B
‘Under’ Position with Mounting Plate
Mounting Plate
Minimum Printhead Access Clearance

Other manuals for Zebra KR203

Related product manuals