EasyManua.ls Logo

Zebra KR403 - Page 78

Zebra KR403
100 pages
Print Icon
To Next Page IconTo Next Page
To Next Page IconTo Next Page
To Previous Page IconTo Previous Page
To Previous Page IconTo Previous Page
Loading...
Accessories
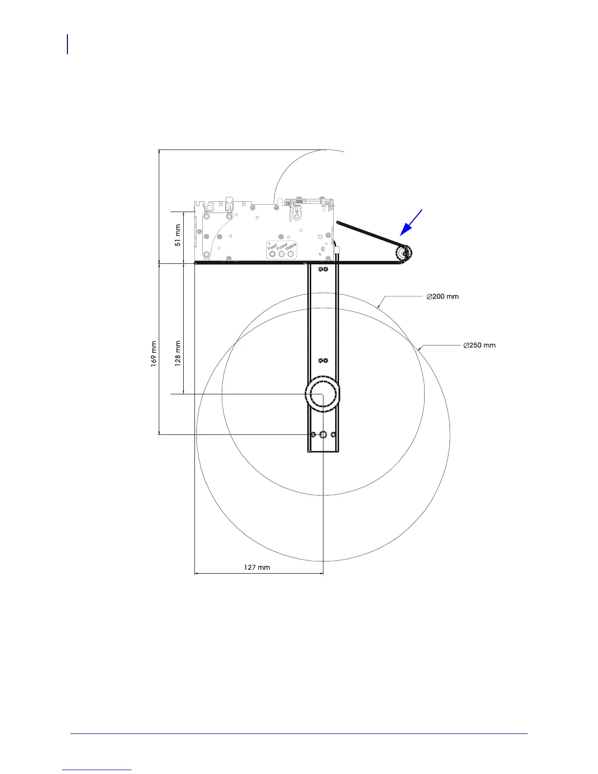
Universal Roll Holder – P1014125
72
P1016701-001 Rev. B KR403 Hardware Integrator Guide 9/24/2010
‘Under’ Position with Mounting Plate
Mounting Plate
Minimum Printhead Access Clearance

Other manuals for Zebra KR403

Related product manuals