EasyManua.ls Logo

Zodiac PX50 - I Dimensioni E Individuazione

Zodiac PX50
Print Icon
To Next Page IconTo Next Page
To Next Page IconTo Next Page
To Previous Page IconTo Previous Page
To Previous Page IconTo Previous Page
Loading...
27
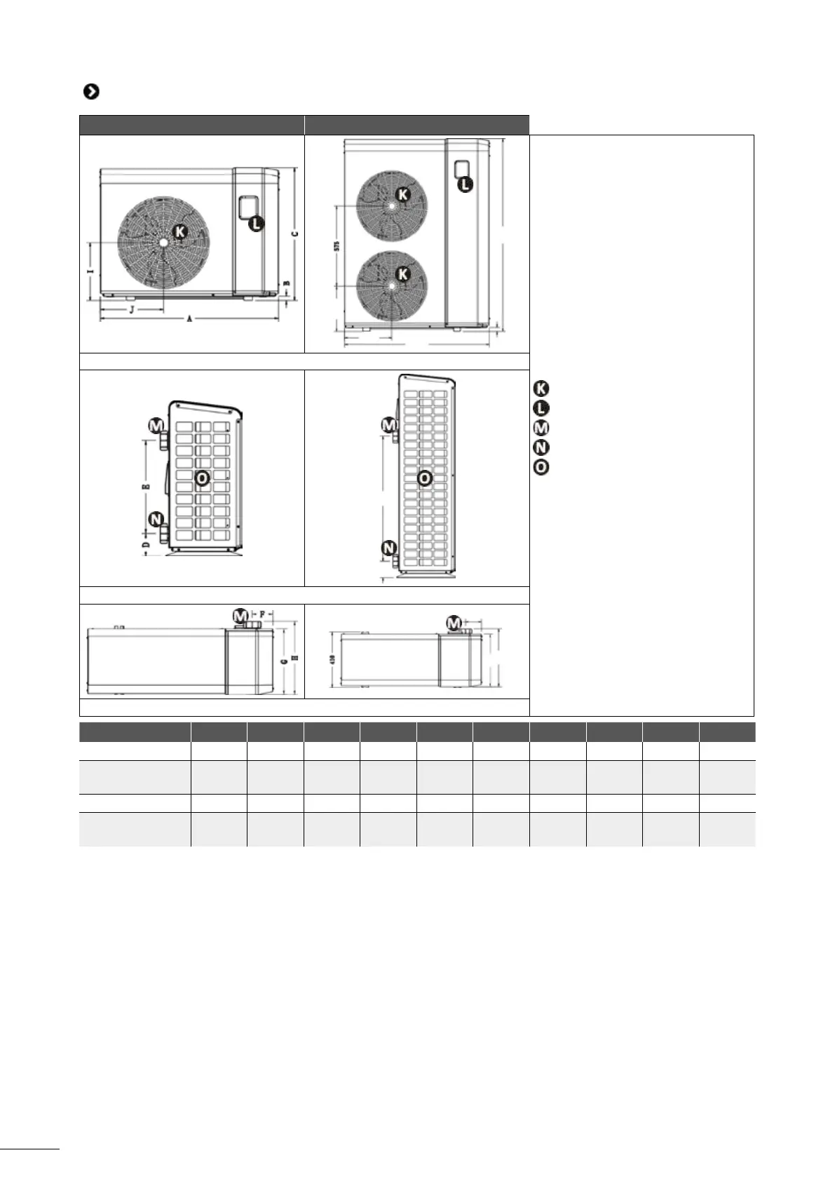
5.3 I Dimensioni e individuazione
MD3 - MD4 - MD5 - MD6 - MD7 - MD9 MD11 - MD12 - TD11 - TD12
I
J
A
C
B
: Griglia
: Interfaccia utente
: Uscita acqua piscina
: Entrata acqua piscina
: Evaporatore
Davan
ED
Lato
F
G
H
Lato superiore
Modello A* B* C* D* E* F* G* H* I* J*
MD3 859 25 641 97 348 90 357 371 270 293
MD4 - MD5 -
MD6
985 25 736 107 440 110 375 390 321 349
MD7 - MD9 1074 25 941 107 600 111 395 440 442 374
MD11 - MD12 -
TD11 - TD12
1039 30 1339 112 850 118.5 410 429 325.5 339.5
* Dimensioni in mm.

Table of Contents

Related product manuals