EasyManua.ls Logo

A.O. Smith BTH 300 - VERTICAL TERMINATION(S) INSTALLATION; VERTICAL TERMINATION(S) FLAT ROOF CLEARANCE; VERTICAL TERMINATION - DIRECT VENT STANDARD TERMINATIONS

A.O. Smith BTH 300
76 pages
Print Icon
To Next Page IconTo Next Page
To Next Page IconTo Next Page
To Previous Page IconTo Previous Page
To Previous Page IconTo Previous Page
Loading...
25
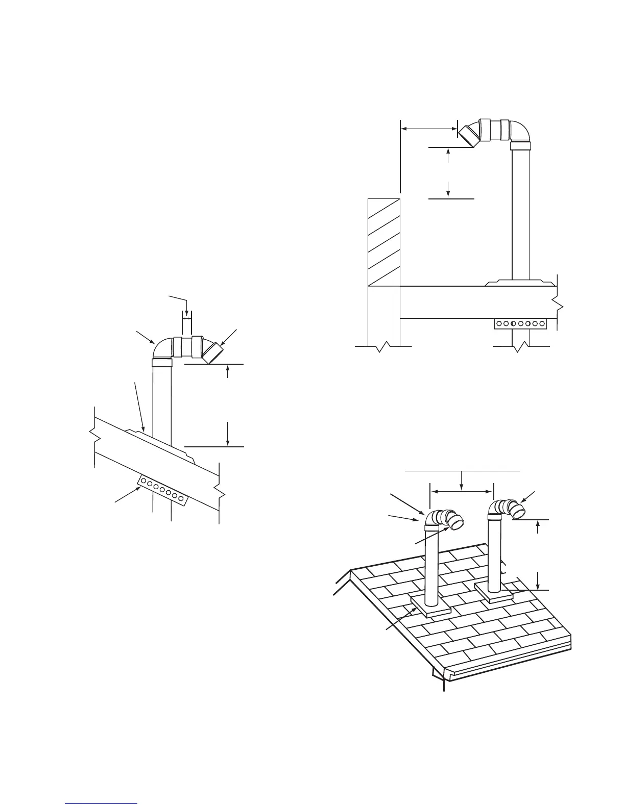
,QVWDOOWKHIDFWRU\VXSSOLHGLQWDNHDLUDQGRUYHQWWHUPLQDWLRQV
XVLQJ¿HOGVXSSOLHGSLSHDQGRQH¿HOGVXSSOLHGHOERZDV
VKRZQLQ)LJXUH7KHVKRUWVHFWLRQRISLSHWKDWFRQQHFWV
EHWZHHQWKH¿HOGVXSSOLHGHOERZDQGWKHIDFWRU\VXSSOLHG
WHUPLQDWLRQ PXVW QRW EH H[FHVVLYH LQ OHQJWK 7KH H[SRVHG
SRUWLRQRIWKLV SLSHVKDOOEH QRPRUHWKDQ LQFKHV FP
VHH)LJXUH
INTAKE AIR AND/OR VENT
TERMINATION(S) MUST BE A
MINIMUM OF 24 INCES (60 cm)
ABOVE ANY PARAPET, VERTICAL
WALL OR STRUCTURE WITHIN
10 FEET (3 m) HORIZONTALLY.
VERTICAL TERMINATION(S) FLAT ROOF CLEARANCE
INTAKE AIR AND/OR VENT
(
EXHAUST
)
24 INCHES (60 cm)
MINIMUM HEIGHT ABOVE
IF LESS THAN
10 FEET (3 m)
Figure 20
5HWXUQWR3RZHU9HQW,QVWDOODWLRQRQSDJHRU'LUHFW9HQW
,QVWDOODWLRQ RQ SDJH  WR FRPSOHWH WKH LQVWDOODWLRQ RI WKH
LQWDNHDLUDQGRUYHQWSLSLQJEHWZHHQWKHWHUPLQDWLRQVDQG
WKHZDWHUKHDWHU
VERTICAL TERMINATION - DIRECT VENT
STANDARD TERMINATIONS
24 INCHES (61 cm) MINIMUM
48 INCHES (122 cm) IN COLDER CLIMATES
FACTORY SUPPLIED
STANDARD TERMINATIONS
POINTED DOWNWARD
FIELD
SUPPLIED
90° ELBOW
VENT (EXHAUST)
TERMINATION
INTAKE AIR
TERMINATION
FIELD SUPPLIED
PLUMBING
ROOF BOOTS
OR FLASHINGS
MAINTAIN 12” (30 cm)
18” (45 cm) FOR CANADA
MINIMUM CLEARANCE
ABOVE HIGHEST
ANTICIPATED SNOW LEVEL.
Figure 21
 ,ILQVWDOOLQJRQO\YHQWSLSLQJLQ D3RZHU9HQWFRQ¿JXUDWLRQ
YHUWLFDOO\ WKURXJK WKH URRI WKH IROORZLQJ LQVWUXFWLRQV PXVW
EHIROORZHG
7KHYHQWWHUPLQDWLRQPXVWEHRULHQWHGIDFLQJGRZQZDUGDV
VKRZQLQ)LJXUHDQG)LJXUH
7KHERWWRPHGJHRIWKHYHQWWHUPLQDWLRQPXVWEHDPLQLPXP
RILQFKHVFPLQFKHVFPLQ&DQDGDDERYH
WKHDYHUDJHRUH[SHFWHGVQRZOHYHODVVKRZQLQ)LJXUH
 ,ILQVWDOOLQJ ERWK LQWDNH DLUDQG YHQW SLSLQJLQ D 'LUHFW 9HQW
FRQ¿JXUDWLRQ YHUWLFDOO\ WKURXJK WKH URRI WKH IROORZLQJ
LQVWUXFWLRQVPXVWEHIROORZHG
7KHLQWDNHDLUDQGYHQWSLSHVPXVWSHQHWUDWHWKHVDPHVLGH
RIWKHURRIDVVKRZQLQ)LJXUH
7KHLQWDNHDLUDQGYHQWWHUPLQDWLRQVPXVWEHRULHQWHGIDFLQJ
GRZQZDUGDQGLQWKHVDPHGLUHFWLRQDVVKRZQLQ)LJXUH
7KHLQWDNHDLUDQGYHQWWHUPLQDWLRQVPXVWKDYHDPLQLPXP
VHSDUDWLRQRI´FPPHDVXUHGRQFHQWHUOLQHDVVKRZQ
LQ )LJXUH  ,Q FROGHU FOLPDWHV WKLV VHSDUDWLRQ VKRXOG EH
LQFUHDVHGWRDWOHDVWLQFKHVFP
7KH ERWWRP HGJH RI WKH LQWDNH DLU DQG YHQW WHUPLQDWLRQV
PXVWEHDPLQLPXPRILQFKHVFPLQFKHVFP
LQ &DQDGD DERYH WKH DYHUDJH RU H[SHFWHG VQRZ OHYHO DV
VKRZQLQ)LJXUHDQG)LJXUH
2” (5 cm)
MAXIMUM
FACTORY SUPPLIED
STANDARD TERMINATION
POINTED DOWN TOWARDS
THE GROUND
VERTICAL TERMINATION(S) INSTALLATION
INTAKE AIR AND/OR VENT (EXHAUST)
FIELD
SUPPLIED
90° ELBOW
FIELD
SUPPLIED
STRAP/SUPPORT
FIELD SUPPLIED
PLUMBING
ROOF BOOT
OR FLASHING
MAINTAIN 12” (30 cm)
18” (45 cm) FOR CANADA
MINIMUM CLEARANCE
ABOVE HIGHEST ANTICIPATED
SNOW LEVEL.
Figure 19
 :KHQ WKH LQWDNH DLU DQGRU YHQW SLSLQJ IURP PXOWLSOH
ZDWHU KHDWHUV ZLOO WHUPLQDWH LQ WKH VDPH ORFDWLRQ WKH YHQW
WHUPLQDWLRQV FDQ EH JURXSHG WRJHWKHU LQ FORVH SUR[LPLW\ 
LQFKHVWRXFKLQJ,QWDNHDLUWHUPLQDWLRQVFDQDOVREHJURXSHG
WRJHWKHULQFORVHSUR[LPLW\LQFKHVWRXFKLQJ
7KH GLVWDQFH EHWZHHQ WKH FORVHVW YHQW DQG LQWDNH DLU
WHUPLQDWLRQV PXVW EH D PLQLPXP RI  LQFKHV  FP DV
VKRZQLQ)LJXUH,QFROGHUFOLPDWHVWKLVVHSDUDWLRQVKRXOG
EHLQFUHDVHGWRDWOHDVWLQFKHVFP
 &XWDLQFKFPGLDPHWHUKROHIRULQFKSLSHRULQFK
FPGLDPHWHUKROHIRULQFKSLSHZKHUHWKHSLSHVZLOO
SDVVWKURXJKWKHURRI
NOTE:%HZDUHRIFRQFHDOHGZLULQJDQGSLSLQJZKHQFXWWLQJ
WKURXJKWKHURRI
 6XVSHQG WKH SLSHV WKURXJK FHQWHU RI KROH XVLQJ ¿HOG
VXSSOLHGPHWDOVWUDSSLQJRUHTXLYDOHQWVXSSRUWPDWHULDOVDV
VKRZQLQ)LJXUH
 6OLGH D URRI ERRW RU HTXLYDOHQW ÀDVKLQJ RYHU WKH SLSH DQG
VHFXUHURRIERRWRUHTXLYDOHQWÀDVKLQJWRURRIVHH)LJXUH
DQGVHDODURXQGWKHÀDVKLQJ

Table of Contents

Other manuals for A.O. Smith BTH 300

Related product manuals