EasyManua.ls Logo

AAON MHGRVX-A2 - Alarms; Figure 5: MHGRVX-B2 LED Locations and Descriptions

AAON MHGRVX-A2
35 pages
Print Icon
To Next Page IconTo Next Page
To Next Page IconTo Next Page
To Previous Page IconTo Previous Page
To Previous Page IconTo Previous Page
Loading...
22MHGRVX-B2 Module Technical Guide
TROUBLESHOOTING
Alarms
Supply Air Temperature Failure
Verify that the Supply Air Temperature Sensor is connected
to the SAT and GND on the MHGRVX-B2 or MODGAS
module (Stand-Alone Mode) or to AI2 and GND on the
AAON unit controller (communicating mode).
Remove SAT and GND wiring from MHGRVX-B2 and
ohm sensor out (this may indicate open or failed wiring).
Refer to chart in back of this guide for readings.
Verify the SAT OPTIONS jumper settings on the
MHGRVX-B2 for the Supply Air Temperature Sensor.
Communications Loss
Check COMM LED on MHGRVX-B2.
Verify 24 VAC power to all interconnected AAON unit
controllers.
Verify E-BUS connection between the MHGRVX-B2 and
associated AAON unit controllers.
In communication mode (connected to an AAON unit
controller with modular cable), conrm that module’s
MHGRVX-B2 status screen displays Position % and that
main screens show COMM MODE.
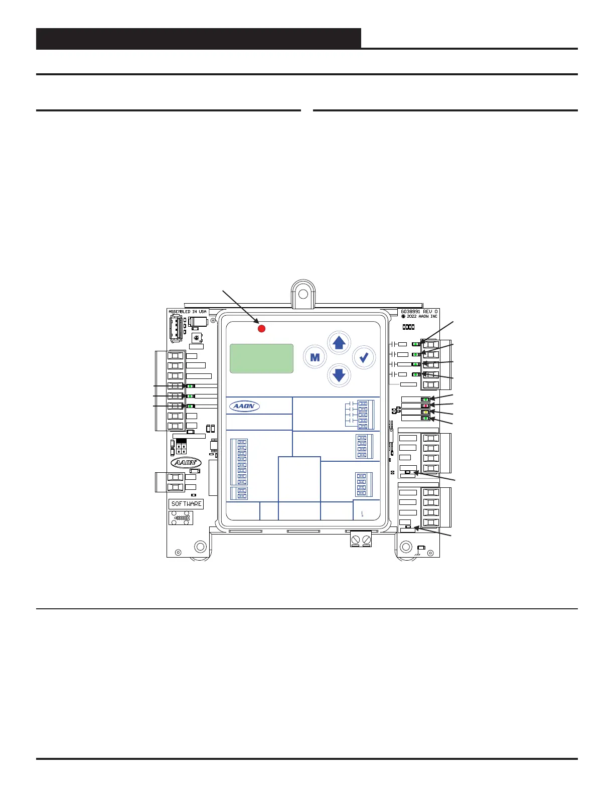
Figure 5: MHGRVX-B2 LED Locations and Descriptions
D15
J3
MODGASx
MODGAS
NORMAL
R59
R60
R60
U9
C46
R61
R75
SAT OPTIONS
SAT
GND
290
AOUT
GND
COOL OVRD
HEAT OVRD
REHEAT EN
RESET IN
AUX IN
GND
TB3
C18
R18
F1
V2
V3
V1
LC
FAN
COMP
VALVE
AUX
COMMON
TB2
STATUS
ALARM
COMM
POWER
CONDENSOR DRIVE
BLACK
WHITE
RED
GREEN
OPENING
TB4
REHEAT DRIVE
BLACK
WHITE
GREEN
RED
OPENING
TB5
C23
.01uF
SERIAL #
DISPLAY
R49
R48
R44
R42
R9
R4
U8
C38
R7
R8
C43
R6
10
ALARM
UP
ENTER
MENU
DOWN
www.aaon.com
AAON P/N: ASM06927
MHGRVX-B2
FAN
COMPRESSOR
CONDENSER
DRIVE TERMINALS
REHEAT VALVE
DRIVE TERMINALS
REHEAT VALVE
AUX
BLACK
GND
AUX INPUT (AI)
RESET SIG (AI)
RHT EN (BI)
SAT (AI)
0-10V VLV (AO)
HEAT OVR (BI)
COOL OVR (BI)
GND
GND
BLACK
WHITE
WHITE
RED
RED
GREEN
GREEN
COMMON
RELAY
OUTPUTS
INPUT/OUTPUT TERMINALS (TYPE)
CONTACT
RATING IS
1 AMP MAX
@ 24 VAC
GND
+24 VAC
LABEL P/N:
G112610
E-BUS
CONNECT
E-BUS
CONNECT
ALARM LED
REHEAT ENABLE LED
HEAT OVERRIDE LED
COOL OVERRIDE LED
FAN RELAY LED
COMPRESSOR
RELAY LED
VALVE RELAY LED
AUX RELAY LED
STATUS LED
ALARM LED
COMM LED
POWER LED
CONDENSER
DRIVE LED
REHEAT VALVE DRIVE
THREE-WAY VALVE LED

Table of Contents

Other manuals for AAON MHGRVX-A2

Related product manuals