EasyManua.ls Logo

AAON V3-E - Separated Combustion Venting; Table 9 - Equivalent DWV Fittings Length; Figure 31 - Open Combustion Venting

AAON V3-E
84 pages
Print Icon
To Next Page IconTo Next Page
To Next Page IconTo Next Page
To Previous Page IconTo Previous Page
To Previous Page IconTo Previous Page
Loading...
44
Table 9 - Equivalent DWV Fittings Length
Equivalent DWV Fittings Length
90° Elbow
5 ft
45° Elbow
2.5 ft
Tee 90° Turn
7.5 ft
Tee Pass Through
2.5 ft
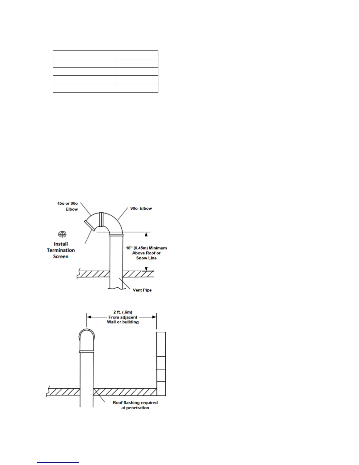
Vertical vents should terminate as shown in
Figure 31. Maintain proper spacing between
adjacent buildings and walls. The vent shall
not terminate over public walkways, near
soffit vents or crawl space vents or other
areas where condensate vapor could create a
nuisance or hazard or cause property damage;
or where condensate vapor could cause
damage or could be detrimental to the
operation of regulators, relief valves, or other
equipment.
Figure 31 - Open Combustion Venting
Separated Combustion Venting
A separated combustion gas heater requires a
two (2) pipe separated combustion vent
system with separate air intake and vent.
Combustion air is supplied from outdoors
into the furnace burner compartment through
a single properly sized pipe attached to the air
intake collar. These furnaces are Category IV
vented appliances. Vent piping must be gas
tight and water tight. Both the furnace and
vent system must be connected to a
condensate removal system.
The heating unit must include the following:
1.) For vent pipe and fittings conveying flue
gases, use only Category IV vent materials
listed to UL1738 / ULC S636 from same vent
manufacturer. DO NOT intermix vent system
parts from different vent manufacturers.
Follow instruction provided with approved
venting materials used.
2.) For combustion air piping, use PVC and
glue joints.
3.) Vent pipe and air inlet pipe size depends
on input rating of the furnace. Minimum vent
length is 5 ft.
4.) The inlet and outlet terminals must be
located in the same pressure zone to provide
for safe appliance operation.
The venting and combustion air supply must
be exclusive to a single furnace. The gas
heater is not approved for concentric venting.
Separated combustion systems may not be
common vented. Do not use dampers in vent
or combustion air pipes.

Table of Contents

Related product manuals