EasyManua.ls Logo

ABB ACH550 series - Install the Line Input Wiring; Line Input Connections - Vertical E-Clipse Bypass Configurations

ABB ACH550 series
108 pages
To Next Page IconTo Next Page
To Next Page IconTo Next Page
To Previous Page IconTo Previous Page
To Previous Page IconTo Previous Page
Loading...
14 E-Clipse Bypass Configurations for ACH550 Drives
Installation
Install the Line Input Wiring (Supplement to ACH550-UH Users Manual)
Line Input Connections – Vertical E-Clipse
Bypass Configurations
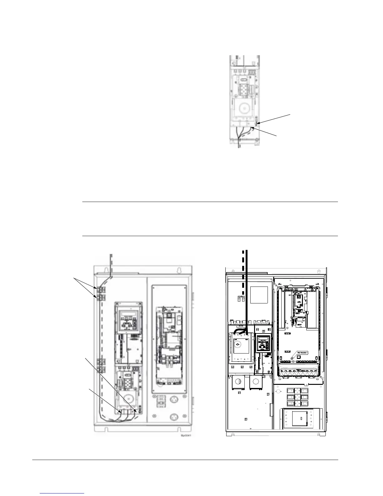
Connect the input power to the terminals at
the bottom of the disconnect switch or circuit
breaker as shown below. Also see
"Connection Diagrams – Vertical E-Clipse
Bypass" on page 10. Connect the equipment
grounding conductor to the ground lug near
the input power connection point.
Line Input Connections – Standard E-Clipse
Bypass Configurations (Wall Mounted)
Connect input power to the terminals of the disconnect switch or circuit breaker.
Connect the equipment grounding conductor to the ground lug at the top of the
enclosure. The figure below shows the connection points for Standard E-Clipse
Bypass configurations. Also see “Connection Diagrams – Standard E-Clipse
Bypass” on pages 10 and 11.
Note! Route cables through the cable guides on the left side of the enclosure. Use
separate conduits for input power and motor cables. Follow the guides to separate
the cables from each other.
Input Power Cables
Ground
Standard Configuration (B3)
Input
Gnd
Standard Configuration (B1/B2)
Power
Cables
User Power
Cable Guides

Table of Contents

Related product manuals