EasyManua.ls Logo

ABB ACS880-04XT - Page 277

ABB ACS880-04XT
664 pages
To Next Page IconTo Next Page
To Next Page IconTo Next Page
To Previous Page IconTo Previous Page
To Previous Page IconTo Previous Page
Loading...
Parameters 277
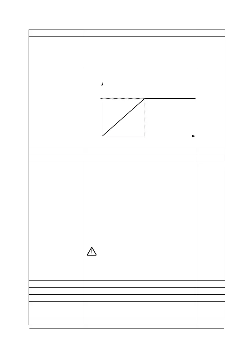
25.30 Flux adaption
enable
Enables/disables speed controller adaptation based on motor
flux reference (01.24 Flux actual %).
The proportional gain of the speed controller is multiplied by a
coefficient of 0…1 between 0…100% flux reference
respectively.
See also the block diagram on page 650.
Enable
Disable Speed controller adaptation based on flux reference disabled. 0
Enable Speed controller adaptation based on flux reference enabled. 1
25.33 Speed controller
autotune
Activates (or selects a source that activates) the speed
controller autotune function. See section Speed controller
autotune (page 81).
The autotune will automatically set parameters 25.02 Speed
proportional gain, 25.03 Speed integration time and 25.37
Mechanical time constant.
The prerequisites for performing the autotune routine are:
the motor identification run (ID run) has been successfully
completed
the speed and torque limits (parameter group 30 Limits)
have been set
speed feedback filtering (parameter group 90 Feedback
selection), speed error filtering (24 Speed reference
conditioning) and zero speed (21 Start/stop mode) have
been set, and
the drive has been started and is running in speed control
mode.
WARNING! The motor and machinery will run against
the torque and speed limits during the autotune
routine. MAKE SURE IT IS SAFE TO ACTIVATE THE
AUTOTUNE FUNCTION!
The autotune routine can be aborted by stopping the drive.
0
-
> 1 = Activate speed controller autotune
Note: The value does not revert to 0 automatically.
Off
Off 0. 0
On 1. 1
Other [bit] Source selection (see Terms and abbreviations on page 148). -
25.34 Speed controller
autotune mode
Defines a control preset for the speed controller autotune
function. The setting affects the way the torque reference will
respond to a speed reference step.
Normal
Smooth Slow but robust response. 0
No. Name/Value Description Def/FbEq16
Coefficient for K
p
(proportional gain)
Flux reference
(01.24)(%)
1.000
0
0.000
100

Table of Contents

Other manuals for ABB ACS880-04XT

Related product manuals