EasyManua.ls Logo

ABB C1900 Series - Page 16

ABB C1900 Series
20 pages
Print Icon
To Next Page IconTo Next Page
To Next Page IconTo Next Page
To Previous Page IconTo Previous Page
To Previous Page IconTo Previous Page
Loading...
14
*
*
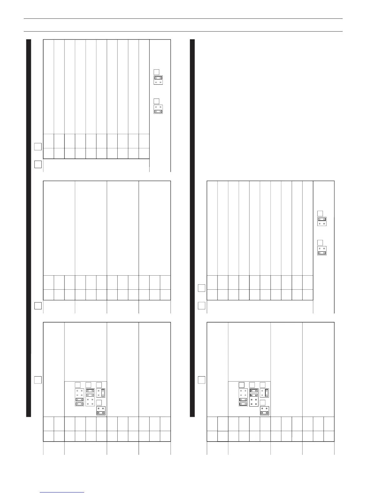
Link Positions
1
Logic I/Ps (Type 4) or Logic O/Ps (Type 5)
C
2
1
3
4
5
6
7 6
8
7
9
8
10
C
Module Type (Tick Box)
2
Position 6
NC
1
Analog
Output
Analog
Input
Logic
Inputs
Relay
Output
+
2
3
4
5
6
7
C
8
L1
9
L2
10
NO
1
C
12
*
*
*
Not available on Module Type 2
4
5
2
3
4
5
(Tick Box)
Type 4 Type 5
Link Positions
(Tick Boxes)
Link Positions
C
1
Relay
Output 1
Relay
Output 2
Relay
Output 3
Relay
Output 4
2
3
4
5
6
7
8
9
10
NC
1
NO
12
1
Logic I/Ps (Type 4) or Logic O?ps (Type 5)
C
2
1
3
4
5
6
7
6
8
7
9
8
10
C
Module Type (Tick Box)
2
Position 5
NC
1
Analog
Output
Analog
Input
Logic
Inputs
Relay
Output
+
2
3
4
5
6
7
C
8
L1
9
L2
10
NO
1
C
12
*
*
*
Not available on Module Type 2
3
4
5
C
NC
NO
C
NC
NO
C
NC
NO
2
3
4
5
(Tick Box)
Type 4 Type 5
Link Positions
(Tick Boxes)
…5 INSTALLATION RECORD

Other manuals for ABB C1900 Series

Related product manuals