EasyManua.ls Logo

ABB DMP 180-4 LD - Aufstellung auf dem Fundament; Kontrolle; Betonieren; Arbeiten nach dem Betonieren

ABB DMP 180-4 LD
52 pages
To Next Page IconTo Next Page
To Next Page IconTo Next Page
To Previous Page IconTo Previous Page
To Previous Page IconTo Previous Page
Loading...
9
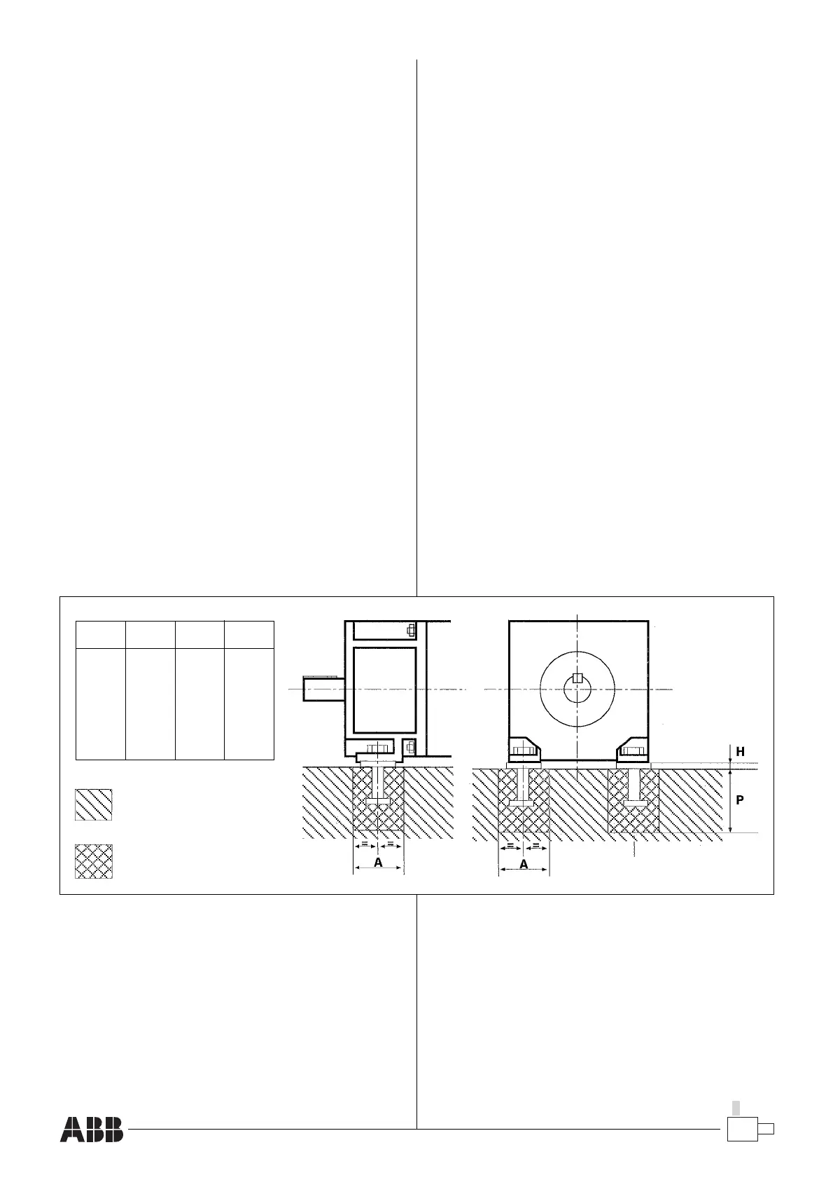
Aufstellung
auf dem Fundament
Kontrolle
Es ist zu kontrollieren, daß :
Das Fundament der gültigen Aufstellungszeichnung
entspricht.
Der Aufstellungsplatz sauber ist.
Der Aufstellungsplatz für die Installation der
elektrischen Kabel und den Anschluß der Kühlluft
usw. vorbereitet ist.
Die Maschine für Inspektion und Kundendienst
zugänglich ist.
Die Kühlluft frei zirkulieren kann.
Betonieren
Um ein gutes Resultat zu erhalten, empfiehlt sich die
schrumpffreie Betoniermasse EMBECCO 636. Bezüglich
der Verschalungs-und Betonierarbeiten befolge man die
EMBECO Arbeitsanleitung. Während des Betonierens
hängen die Befestigungsklötze oder Fußschrauben, die
an der Maschine angeschraubt sind, frei in den
Verankerungslöchern. Der gesamte Freiraum im Bereich
der Klötze soll mit Betoniermasse ausgefült werden. Es
ist wichtig, daß im Beton keine Lufteinschlüsse
vorkommen und seine Druckfestigkeit und Erstarrungszeit
mit den Angaben des Herstellers übereinstimmt. Liegt die
Umgebungstemperatur unter + 5° C soll nicht betoniert
werden.
Arbeiten nach dem Betonieren
Alle Luftkanäle und Anschlüsse von Betonresten und
anderen Verunreinigungen reinigen, die bei
Inbetriebnahme in die Maschine eingesaugt werden
könnten.
Luftkanäle mit betonierten Wänden sollen mit Betonfarbe
gestrichen werden um den Betonstaub zu binden.
Erection
on the foundation
Inspection
The following inspections are recommended:
The foundation corresponds to the certified
foundation drawing.
The erection site is clean.
The erection site is prepared for installation, which
means that cable and cooling ducts have been
provided in the foundation.
Accessibility is provided for inspection and mainte-
nance of the machine.
Make sure that cooling air can freely circulate.
Grouting
To ensure satisfactory results, it is recommended to use
shrink-free concrete, for example EMBECO 636. The
instructions supplied by the manufacturer of the shrink-
free concrete should be followed. Mounting blocks or
foundation bolts which are bolted to the machine hang
freely in the mounting holes during grouting. Make sure
that there are no air pockets in the poured concrete.
Check that the compression strength of the concrete and
the curing time are in accordance with the manufacturers
instructions. Grouting is not permitted if the ambient
temperature is below + 5°C.
Work after grouting
Check that all air ducts and other cavities, which are part
of the machine installation, are free from concrete and
other foreign matter which could be sucked into the
machine during start-up. Air ducts with concrete walls
should be painted with suitable paint to bind the concrete
dust and other particles.
Eisenbeton
Steel reinforced concrete
Spannbeton
Non-shrinking concrete
DMP A H P
112 90 8 200
132 90 8 200
160 110 10 220
180 110 10 220
180-4LD
140 10 250

Table of Contents

Related product manuals