EasyManua.ls Logo

ABB EM01 - 03. Installation and wiring; M10 x Terminal Layout Example

ABB EM01
99 pages
Print Icon
To Next Page IconTo Next Page
To Next Page IconTo Next Page
To Previous Page IconTo Previous Page
To Previous Page IconTo Previous Page
Loading...
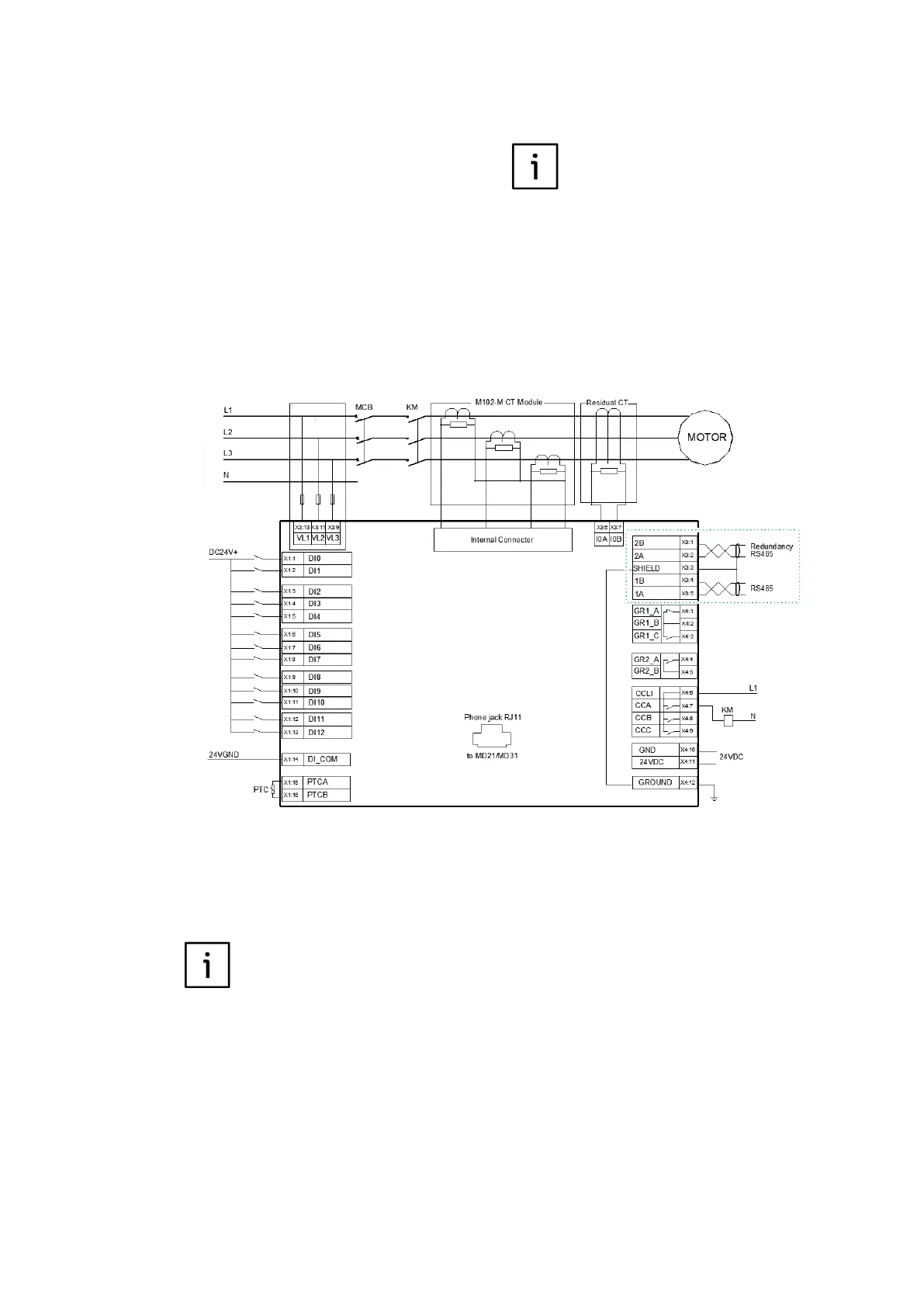
Shield and Ground (X4:12) are
connected internal of M10x.
Shield and Ground (X4:12) are
connected internally in all
M10x types.
12 Typical wiring diagram for M102-M (24VDC type)
Terminal layout example
The terminal layout of M102-M 24VDC
product type is shown as an example in
Fig 12. The terminal blocks may have dif-
ferent definitions and available terminals
depending on the selected product type.
The details are explained in terminal des-
ignations above.
M10x device is certified to work un-
der EMC environment according to
relevant IEC standards. However a
network exposed to high electro-
magnetic disturbance may still
cause an unstable system and mal-
function devices.
In applications that variable speed drives
are used in a large scale, harmonic filter de-
vices shall be required in system design to
reduce impact to the network.
20 MOTOR CONTROL AND PROTECTION UNIT M10X USER GUIDE

Table of Contents

Related product manuals