EasyManua.ls Logo

ABB EM01 - REV-Softstarter (M102 Only); Operating Sequence in REV-Softstarter

ABB EM01
99 pages
Print Icon
To Next Page IconTo Next Page
To Next Page IconTo Next Page
To Previous Page IconTo Previous Page
To Previous Page IconTo Previous Page
Loading...
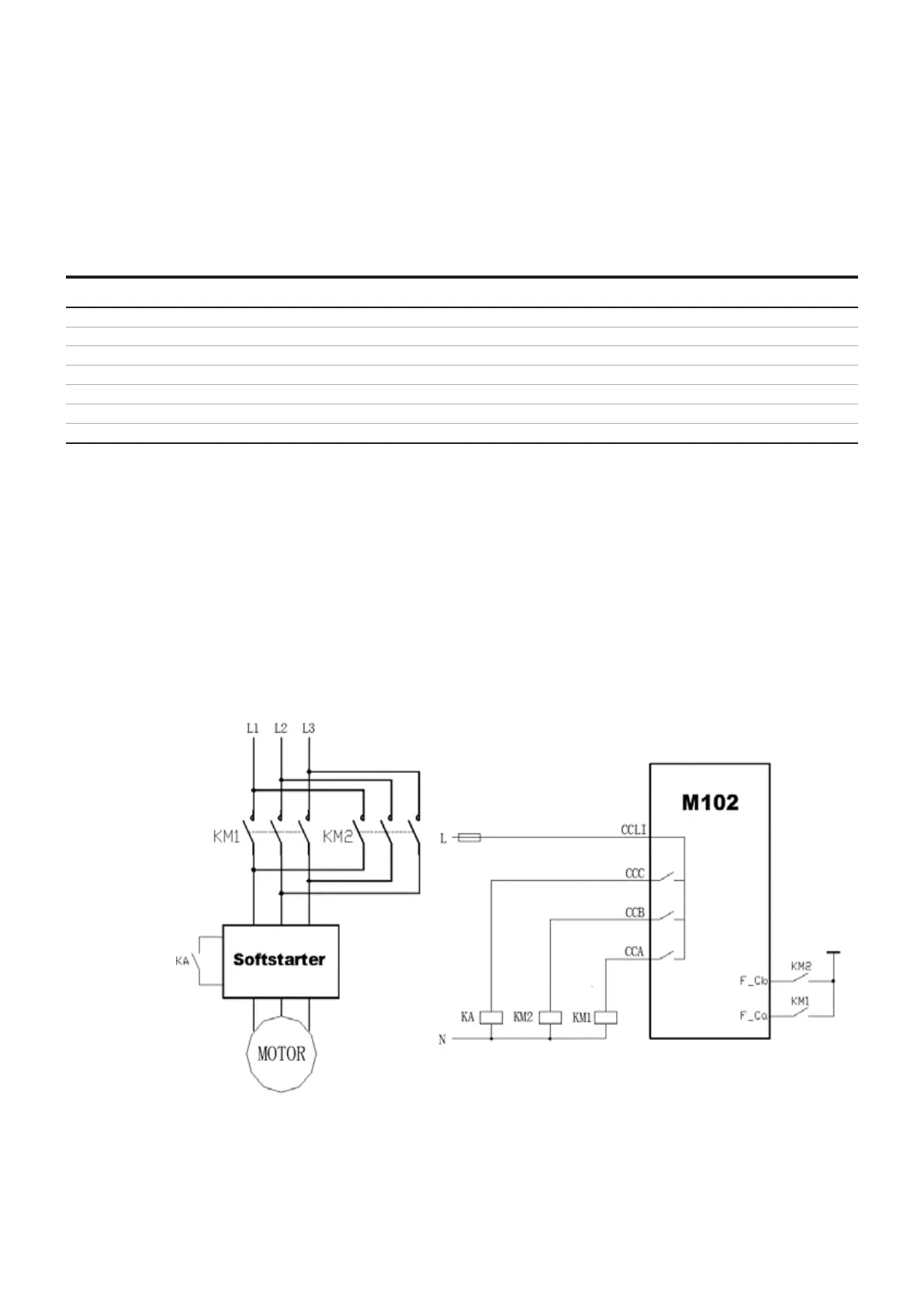
REV-softstarter (M102 Only)
This starter is of similar functionality as the NR-
softstarter starter, with additional function to
support reversing the motor.
Name Pin Description
CCLI X4:6 Contactor control voltage input
CCA X4:7 Contactor control A
CCB X4:8 Contactor control B
CCC X4:9 Contactor control C
DI5 (Loc/R) X1:6 Local/Remote control switch input
DI6 (F_Ca) X1:7 Contactor control A feedback
DI7 (F_Cb) X1:8 Contactor control B feedback

Operating sequence in REV-softstarter
Motor is stopped Start1 CCA closes CCC
closes
Motor is stopped Start2 CCB closes CCC
closes
Motor is running Stop CCC opens ramp
down time CCA & CCB opens
27 Control circuit for REV-softstarter
* The assigned DI and PIN code may change in actual design
0 4 . MOTOR STARTERS CONTROL 35

Table of Contents

Related product manuals