EasyManua.ls Logo

ABB PFEA 111 - Dimension Drawing, 3 BSE008724, Rev. F

ABB PFEA 111
216 pages
Print Icon
To Next Page IconTo Next Page
To Next Page IconTo Next Page
To Previous Page IconTo Previous Page
To Previous Page IconTo Previous Page
Loading...
Tension Electronics PFEA111/112, User Manual
Section G.13 Dimension Drawing, 3BSE008724, Rev. F
3BSE029380R0101 Rev C G-17
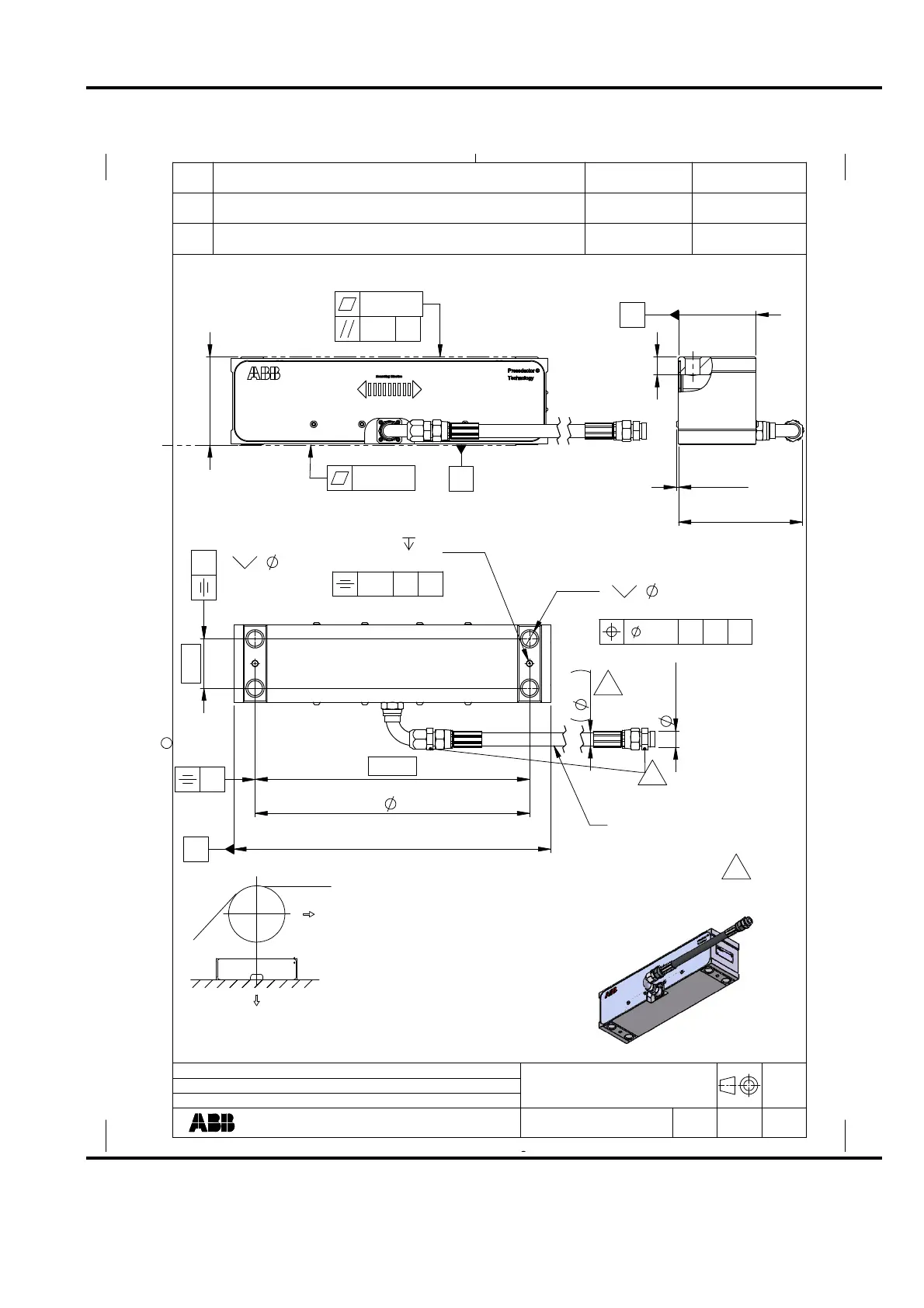
G.13 Dimension Drawing, 3BSE008724, Rev. F
125 - 0,2
0
0,1 CZ
0,1 CZ
0,2 A
A
25
110 ±0,5
4max.
180 max.
C
F
390
450 ±0,2
(For holes 8) 390 ±0,1
70
Near Side
26 X 90°
8 x M24 - 6H
9 X 90°, Near Side
4 x Ø8.0 0
+0,058
DRILL 10
Pg 16
19
Cable with flexible
protection hose.
Min bending
radius 85 mm.
Max length of protection
hose 20 m.
F
F
B
C
0,4 A BC
0,2 B C
B
7UDQVYHUVHIRUFHFRPSRQHQW
QRWPHDVXUHG
5
)
)
)
)
9
0HDVXUHGIRUFHFRPSRQHQW
9
5
General tolerances according to SS-ISO2768-m
REV DESCRIPTION DATE DEPT./INIT.
E
Redrawn and uppdated in Solid Works. Previous revision table
remowed, exist on revision D.
2012-01-25 PA/FM/GF/LEN
F Adapter for hose added. Ø19 was 25 and radius 85 was 150 2017-01-09 IAMA/OE/SF
C
duction, use or disclosure to third parties
without express authority is strictly forbidden.
ABB AB
We reserve all rights in this document and
in the information contained therein. Repro-
IAMA
IAMA
IAMA
3BSE008724
CAD outline drawing
Load cell PFTL 201CE
Lastcell PFTL 201CE
en
F
1
1
Sven Fischer 2017-01-12
Jan-Olov Skogqvist
ABB AB
661130 Bansp.mätare VPBT/HPBT Product family :
Resp.dept
Prep.
Appr.
Document number
Project or order number :
Rev.Lang. Sheet
No of sh.
Cont.sh./
2017-01-16
OE
OE
FMOE
Approved
Document status:
C
/
/
/

Table of Contents

Related product manuals