EasyManua.ls Logo

ABB PFEA 111 - Dimension Drawing, 3 BSE008917, Rev. H

ABB PFEA 111
216 pages
Print Icon
To Next Page IconTo Next Page
To Next Page IconTo Next Page
To Previous Page IconTo Previous Page
To Previous Page IconTo Previous Page
Loading...
Tension Electronics PFEA111/112, User Manual
Section G.15 Dimension Drawing, 3BSE008917, Rev. H
3BSE029380R0101 Rev C G-19
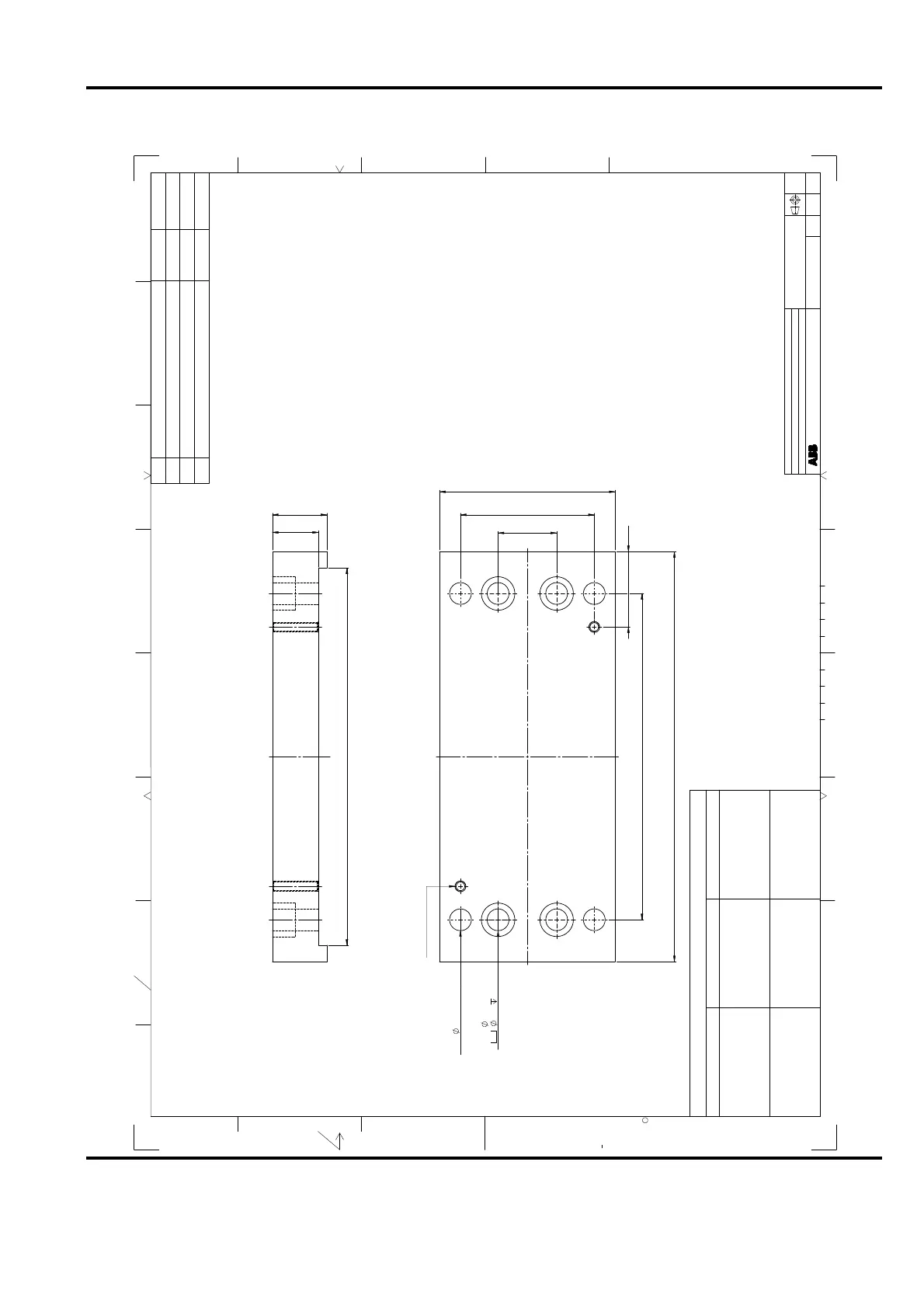
G.15 Dimension Drawing, 3BSE008917, Rev. H
Mass (weight) : App. 50kg
Manufacturing drawing: 3BSE030638D3300
REV DESCRIPTION DATE DEPT./INIT.
F Change to all english version, redrawn. 2009-04-23 PA/FM/GF/JK
G Drawing in S.W. was autocad. 2011-04-13 PA/FM/GF/SF
H Table "Technical material" added 2012-12-18 PA/FM/GF/SF
Technical material
Material description Material specification Material designation
Steel, through
hardened
Hardness 300-400 HB
Yield stress > 500MPa (N/mm²)
CTE 11-13 μm/m/°C
Remanent magnetism of
finished detail must be less
than 2 Gauss (0-0,2mT)
34CrNiMo6+QT900
Toolox 33, Toolox 44
S690(+QT)
W.nr. 1.6582+QT900
ASTM 4340
or equivalent
Martensitic stainless
Steel
Hardness 300-400 HB
Yield stress > 400MPa (N/mm²)
CTE 11-13 μm/m/°C
Remanent magnetism of
finished detail must be less
than 2 Gauss (0-0,2mT)
X12CrMoS13+AT
X20Cr13+A
W.nr.1.4005+AT, 1.4021+A
ASTM 416, 420
or equivalent
!
!!
!
"
""
"
!
!!
!
C
duction, use or disclosure to third parties
without express authority is strictly forbidden.
ABB AB
We reserve all rights in this document and
in the information contained therein. Repro-
"
""
"
2012-12-20
Cont.sh./
No of sh.
SheetLang. Rev.
Project or order number :
Modify date :
Document number
Appr.
Prep.
Resp.dept
Product type designation :
Product information :
Product family :
661130 Bansp.mätare VPBT/HPBT
ABB AB
Håkan F Wintzell
2012-12-19Sven Fischer
1
1H
en
Adapterplatta PFTL 201C/CE
Adapter plate PFTL201C/CE
Dimension drawing
3BSE008917
PA
PA
PA
FM/GF
FM/GF
FM/GF
Document status:
Approved
/
/
/
Customer erference :
490
for lifting eye bolt
(2x) M12
40 27
(4x) 26 THRU
(4x) 26 THRU
70
160
210
390
90
55
65
451

Table of Contents

Related product manuals