EasyManua.ls Logo

ABB Unitrol 1000-PM40 - Functional Description; Power Module Operation; Control and Communication; Alarm Output and LED Indicators

ABB Unitrol 1000-PM40
19 pages
To Next Page IconTo Next Page
To Next Page IconTo Next Page
To Previous Page IconTo Previous Page
To Previous Page IconTo Previous Page
Loading...
Document number Lang. Rev. ind. Page
ABB Switzerland Ltd
3BHS200200 E80
en A 10
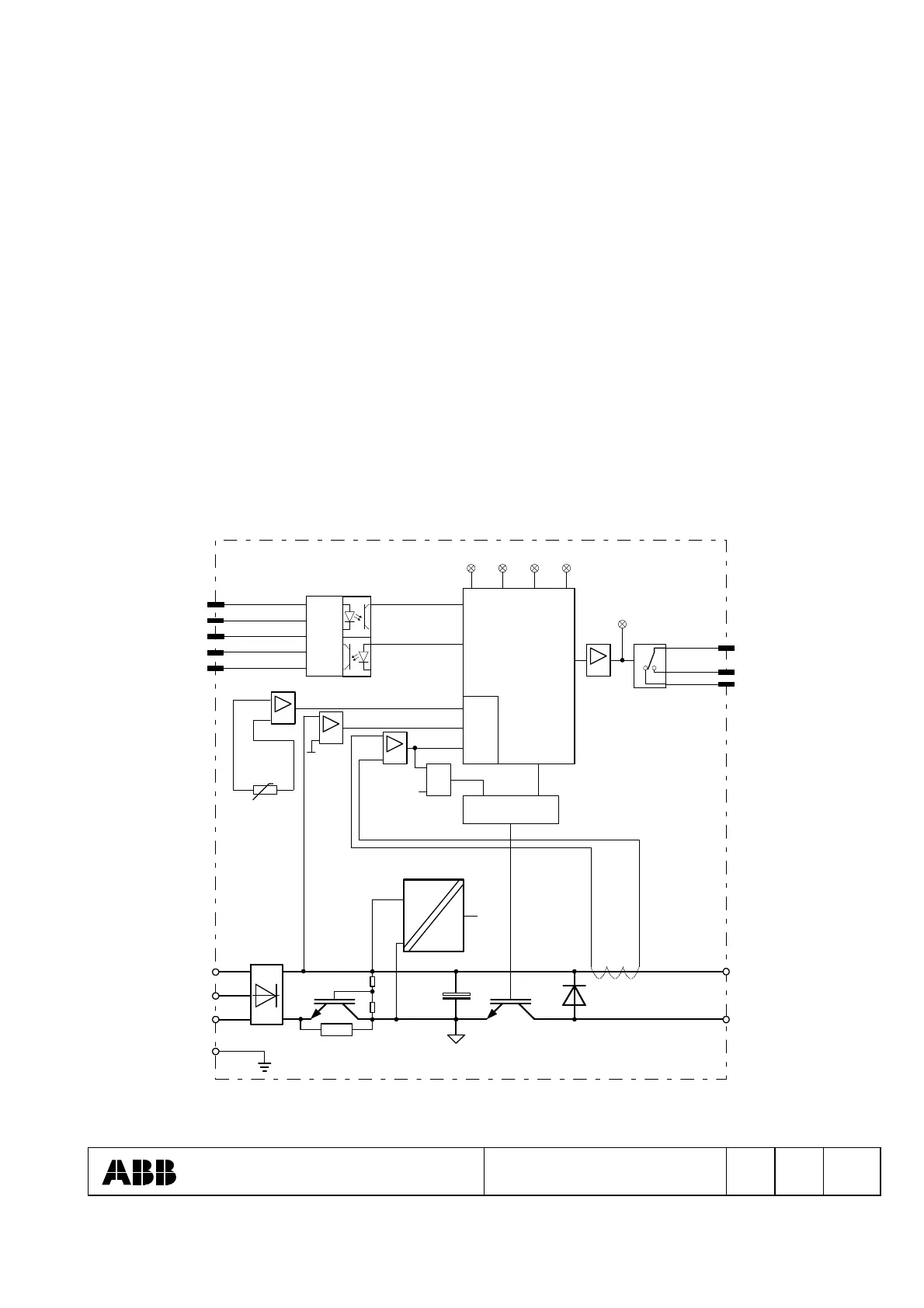
2.3.2 Functional Description
Power Module:
The power module consists of an input rectifier, soft start facility for the current-limited loading of the
intermediate circuit, the IGBT power semiconductor with free-wheeling diode and over voltage
protection.
The average value of the output voltage is always positive. The output is current-limited and thus short-
circuit-proof.
Control and Monitoring:
The voltage regulator UNITROL 1000-15 does the communication between machine and excitation
systems. In this unit all machine data is set, feedbacks processed and the necessary parameters
adjusted. For the power module no special parameters are to be adjusted in the voltage regulator. The
transmission of the control signals to the power module is made by CAN Bus.
Alarm output:
A potential free relay contact is available.
LED display:
Five LED's inform about the operating condition of the unit. See description in section 2.3.5.
DSP
Power Module 40 A
+Ie
X102:4
T
IGBT
X102:5
X103:1
X103:2
A/D
X103:3
>
Driver
Overcurrent lim
Power ON
Excitation ON
Alarm
X102:3
X102:2
X102:1
U
pwr
Overcurrent
Overtemperature
CAN_GND
CAN_L
L1
L2
L3
PE
CAN_SHIELD
CAN_H
CAN_POWER
Alarm
CAN
Aux. Power
-Ie
Soft start intermediate circuit
+
CAN
Temperature measurement
Voltage measurement
measurement
Current
NO
COM
NC

Related product manuals