EasyManua.ls Logo

Abicor Binzel BRS-LC - Technische Daten

Abicor Binzel BRS-LC
Print Icon
To Next Page IconTo Next Page
To Next Page IconTo Next Page
To Previous Page IconTo Previous Page
To Previous Page IconTo Previous Page
Loading...
DE - 6 BAL.0030.0 • 2021-01-19
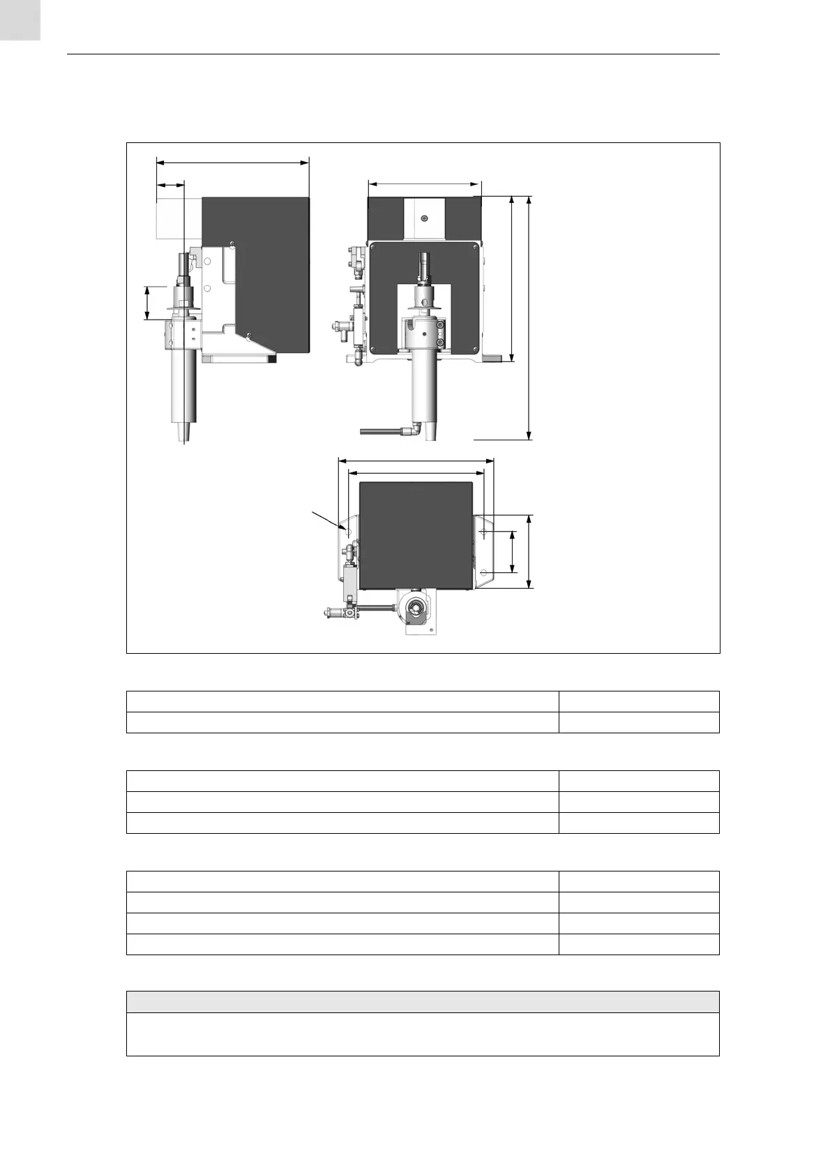
3 Produktbeschreibung BRS-LC
3.1 Technische Daten
Abb. 1 Technische Daten
Temperatur der Umgebungsluft +5 °C bis +50 °C
Relative Luftfeuchtigkeit bis 90 % bei 20 °C
Tab. 1 Umgebungsbedingungen im Betrieb
Lagerung im geschlossenen Raum, Temperatur der Umgebungsluft +5 °C bis +50 °C
Transport, Temperatur der Umgebungsluft −25 °C bis +55 °C
Relative Luftfeuchtigkeit bis 90 % bei 20 °C
Tab. 2 Umgebungsbedingungen Transport und Lagerung
Gewicht 10 kg
Abmessung L × B × H 230 × 220 × 390
Schutzart nach DIN 40050 IP 21
Schutzklasse nach DIN EN 61140 1
Tab. 3 Allgemeine Angaben
HINWEIS
Um die maximale Leistung und Standzeit der Brennerreinigungsstation zu gewährleisten, betreiben Sie diese mit
gereinigter und geölter Luft.
170
160
27
245
ca. 390
50
230
200
60
11 0
Ø
9

Table of Contents

Related product manuals