EasyManua.ls Logo

Acrosser Technology AR-B1579 - Dimensions

Acrosser Technology AR-B1579
61 pages
Print Icon
To Next Page IconTo Next Page
To Next Page IconTo Next Page
To Previous Page IconTo Previous Page
To Previous Page IconTo Previous Page
Loading...
AR-B1579 Users Guide
7-2
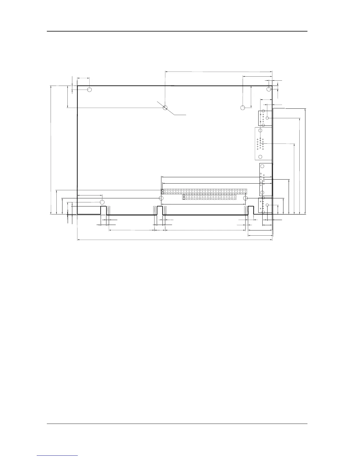
7.2 DIMENSIONS
265
3590
445
2635
255
370
95
210
1300
345
900
4100
940
7−∅138
7−∅1387−∅138
7−∅138
825
600
3950
25
4800
7280
130
825
150
600
450
300
210
95
1700
400
210
95
3000
905
930
4150
3150
455
4000
1100
125
Unit: mil (1 inch = 25.4 mm = 1000 mil)

Table of Contents