EasyManua.ls Logo

ActronAir ESP Digital SRD173C - Srd191 C

ActronAir ESP Digital SRD173C
48 pages
Print Icon
To Next Page IconTo Next Page
To Next Page IconTo Next Page
To Previous Page IconTo Previous Page
To Previous Page IconTo Previous Page
Loading...
Installation and Commissioning Guide
Split Ducted ESP Digital
Installation and Commissioning Guide - Split Ducted ESP Digital Units
Doc. No.0525-077 Ver. 2 200129
13
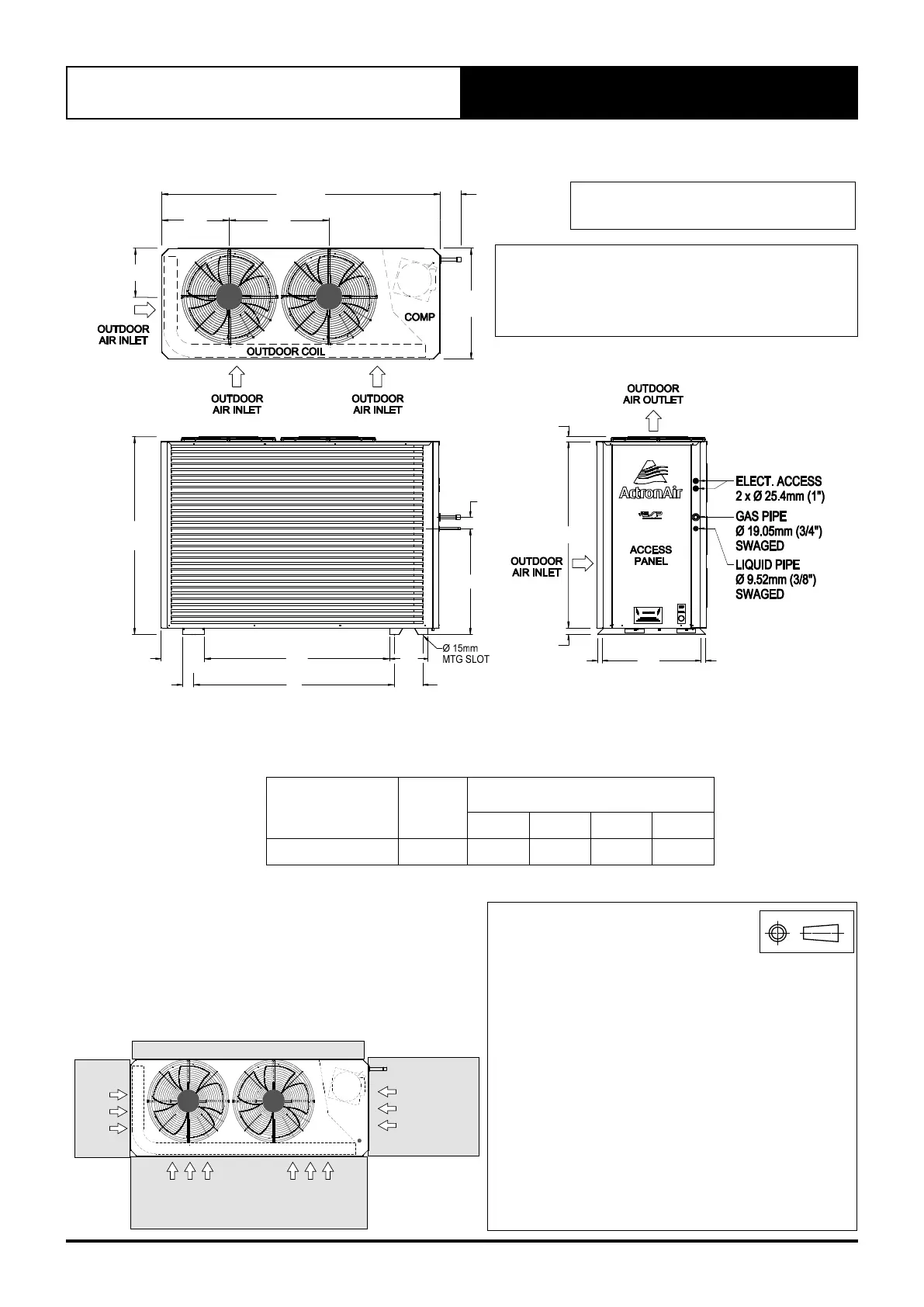
07.04. SRD191C
NOTES:
1. Do not scale drawing. All dimensions are in mm unless specified. Refer
to corresponding unit dimensional drawing for mounting hole details.
2. Service Access Areas and Spaces for Airflow Clearances given above are
suggested minimum based on the condition that the spaces around the
units are free from any obstructions and a walkway passage of 1000mm
between the units or between the unit and the outside perimeter is
available.
3. Minimum service access areas and spaces for airflow clearances are
responsibilities of the installer, ActronAir will not be held liable for any
extra charges incurred due to lack of access and space for airflow.
4. Under all circumstances, condenser air must not recirculate back onto
condenser coil. Keep all clearance free of any obstructions.
5. Maximum External Static of Outdoor Fans is 5 Pa.
6. STACKING OF UNITS: Ensure that minimum airflow and clearances are
met.
7. Refer to Pipe Connection Details on Specifications Sheet.
8. MTG C-C DIST = Mounting Centre to Centre Distance.
9. Use M12 bolt for feet mounting.
THIRD ANGLE
PROJECTION
A
B
C
D
600 mm
SERVICE
CLEARANCE
(COMPRESSOR
AND
ELECTRICALS)
400 mm
SERVICE / AIRFLOW CLEARANCE
NIL - TO - MINIMUM SERVICE CLEARANCE
OUTDOOR COIL
COMP
300 mm
SERVICE / AIRFLOW
CLEARANCE
MINIMUM SERVICE ACCESS AREAS
AND AIRFLOW CLEARANCES
HEIGHT CLEARANCE
= 1500 mm
UNIT MODEL
NUMBER
UNIT
WEIGHT
(kg)
CORNER WEIGHTS (kg)
A B C D
SRD191C 200 47.8 55.4 8.6 88.2
OVERALL NOMINAL DIMENSION H X W X L
= 1045 X 1460 X 580
PLEASE NOTE THAT UNDER ALL CIRCUMSTANCES,
CONDENSER AIR MUST NOT RECIRCULATE BACK ONTO
CONDENSER COIL. KEEP ALL CLEARANCES FREE OF
ANY OBSTRUCTIONS
1460 O/A
355 525
580
O/A
255
1045
O/A
575
980
517
(MTG C-C DIST)
910
1005
(MTG C-C DIST)
67
195
(MTG C-C DIST)
270
108
110 115
57.5
30
35
25
25
585
FRONT VIEW
SIDE VIEW
TOP VIEW
55
340
500

Related product manuals